2023 N Circle Drive, Colorado Springs, CO, 80909

Image Count: 34

$390,000

  • Highlights
  • Single Family
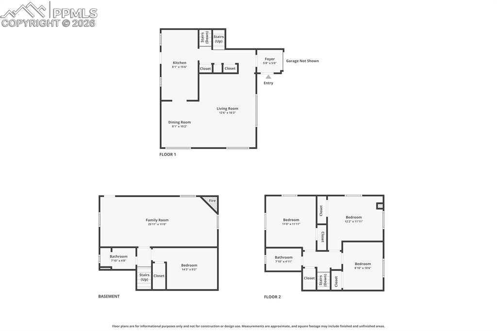
  • 4 bd | 2 ba | 1,716 sqft
  • 2023 N Circle Drive, Colorado Springs, CO, 80909 listed by Marisa Lindsay
  • Active
  • MLS#: 4578136
  • View on Map
Space maker

Property Description

With views of Palmer Park, close proximity to coffee shops, grocery shopping this immaculately taken care of home with tons of natural light is ready for new owners. Thanks to beautiful shade trees in the front yard, the home stays cool all summer long. As soon as you walk in, the hardwood flooring made of red oak trees adds amazing character. Upgraded light fixtures add the perfect modern touch. Opening up to the dining room where you have views of Pikes Peak 365 days a year, Enjoy dinner with a view in your own home. The kitchen offers new LVP flooring, plenty of space for prep work and cooking, including a pantry! Installed is a reverse osmosis water system, adding in electrolytes and producing alkaline water for staying hydrated in the higher elevations of Colorado Springs. Walking upstairs you're greeted with 3 bedrooms and a full bathroom. Each of the closets upstairs feature built ins for added organization. On the lower level, enjoy an additional bedroom, bathroom, and the wood burning fireplace - imagine cuddling up on the couch with a book in the winter time with the crackling sound of fire. With easy access to backyard from the basement, endless opportunities for renting the space out, or a home business. The backyard offers privacy yet the perfect space for hosting, and with an alleyway behind and a shed for extra storage space. You can access the backyard from the kitchen, garage, or the basement. Most of the furniture in the home is negotiable! With easy access to all 4 military bases in Colorado Springs, this one is a true gem. LVP in kitchen installed 2026, hot water heater, electrical panel, carpet and roof installed 2023.

Property Listed By

Picture of REALTOR Listing Property
  • Marisa Lindsay
  • 4897-733-917  Call the Agent 
Picture of Office Listing Property
  • The Cutting Edge
  • 7605-999-917  Call the Agent 

Property Details

    General Features

  • Property: Single Family, Tri-Level
  • Year Built: 1958
  • List Price: $390,000
  • County: El Paso
  • School District: Colorado Springs 11

    Rooms

  • Master: Main Level, 12 x 12
  • Bedrooms: 4
  • Baths: 1 full bath; 1 3/4 bath;
  • Laundry: Lower

    Structure

  • Foundation: Crawl Space, Full Basement
  • Heating: Forced Air
  • Cooling: Ceiling Fan
  • Garage/Parking #: 1 vehicle(s), Attached
  • Garage Amenities: Garage Door Opener, Workshop
  • Total SqFt: 1,716
  • Finished SqFt: 1,716
  • Construction Status: Existing Home
  • Siding: Stucco
  • Structure: Framed on Lot

    Features

  • Appliances: 220v in Kitchen, Dishwasher, Disposal, Dryer, Gas in Kitchen, Microwave Oven, Oven, Range, Refrigerator, Self Cleaning Oven, Washer
  • Floors: Carpet, Wood
  • Entry: Natural Wood
  • Fireplace: Lower Level, Wood Burning
  • Additional Items: Reverse Osmosis System
  • Laundry: Lower

    Taxes, Utilities, Lot

  • Tax: $1,107
  • Lot Size: 0.14 Acres, 6,000 SqFt
  • Fence: Rear
  • Driveway: Concrete
  • Alley: Paved
  • Lot Location: Near Park
  • Lot Description: Level, Mountain View
  • Existing Utilities: Electricity Connected, Natural Gas Connected
  • Existing Water: Municipal

    Community

    Additional Information


      Disclaimer
      The real estate listing information and related content displayed on this site is provided exclusively for consumers’ personal, non-commercial use and may not be used for any purpose other than to identify prospective properties consumers may be interested in purchasing.
      PPAR.com Website

      2023 N Circle Drive, Colorado Springs, CO, 80909

      Image 1 of 34: Front of Structure

      Front of Structure

      Image 2 of 34: Front of Structure

      Front of Structure

      Image 3 of 34: Front of Structure

      Front of Structure

      Image 4 of 34: Front of Structure

      Front of Structure

      Image 5 of 34: Entry

      Entry

      Image 6 of 34: Living Room

      Living Room

      Image 7 of 34: Living Room

      Living Room

      Image 8 of 34: Living Room

      Living Room

      Image 9 of 34: Dining Area

      Dining Area

      Image 10 of 34: Dining Area

      Dining Area

      Image 11 of 34: Kitchen

      Kitchen

      Image 12 of 34: Kitchen

      Kitchen

      Image 13 of 34: Kitchen

      Kitchen

      Image 14 of 34: Kitchen

      Kitchen

      Image 15 of 34: Master Bedroom

      Master Bedroom

      Image 16 of 34: Basement

      Basement

      Image 17 of 34: Basement

      Basement

      Image 18 of 34: Bedroom

      Bedroom

      Image 19 of 34: Bathroom

      Bathroom

      Image 20 of 34: Bedroom

      Bedroom

      Image 21 of 34: Bathroom

      Bathroom

      Image 22 of 34: Bedroom

      Bedroom

      Image 23 of 34: Laundry

      Laundry

      Image 24 of 34: Back of Structure

      Back of Structure

      Image 25 of 34: Yard

      Yard

      Image 26 of 34: Front of Structure

      Front of Structure

      Image 27 of 34: Front of Structure

      Front of Structure

      Image 28 of 34: Aerial View

      Aerial View

      Image 29 of 34: Other

      Other

      Image 30 of 34: Aerial View

      Aerial View

      Image 31 of 34: Aerial View

      Aerial View

      Image 32 of 34: Aerial View

      Aerial View

      Image 33 of 34: Aerial View

      Aerial View

      Image 34 of 34: Floor Plan

      Floor Plan

      Disclaimer: The real estate listing information and related content displayed on this site is provided exclusively for consumers’ personal, non-commercial use and may not be used for any purpose other than to identify prospective properties consumers may be interested in purchasing.