6798 Bitterroot Drive, Colorado Springs, CO, 80923

Nestled on a well-kept street beneath a blue Colorado sky, the home's layered stonework and thoughtfully maintained landscaping make an undeniable first impression.

Soaring ceilings and gleaming hardwood floors welcome you into a bright, airy foyer where a classic pendant lantern casts a warm glow, setting an elegant tone for everything that follows.

The front living room is a peaceful retreat filled with natural light, featuring plush carpet, classic furnishings, and a vibrant landscape painting that nods to the Colorado outdoors just beyond the windows.

The home opens beautifully into a connected living and formal dining space, where the eye-catching blue tray ceiling over the dining area becomes a bold design statement anchoring the heart of the home.

Bathed in afternoon light pouring through oversized windows, the spacious living room comfortably accommodates multiple seating.

The formal dining room steals the show with its dramatic deep-blue tray ceiling, a stylish chandelier, and a large farmhouse table that practically begs for holiday gatherings and dinner parties.

From the dining room, the kitchen comes fully into view, illustrating the home's open and connected layout — a thoughtful flow that keeps hosts and guests effortlessly together.

The chef's kitchen showcases a stainless double wall oven, a French door refrigerator, and rich espresso cabinetry topped with granite — a serious kitchen for serious cooks.

Looking down the length of the kitchen from the island, the thoughtful layout unfolds with abundant counter space, stainless appliances, and a clear sightline to the casual dining area beyond.

A full view of the kitchen reveals its impressive scale — U-shaped with a center island, gas cooktop, subway tile backsplash, and plentiful cabinetry that makes storage and style work hand in hand.

A closer look at the kitchen's clean lines highlights the granite countertops, subway tile backsplash, and stainless steel appliances that give this space a polished, timeless finish.

The double undermount sink is positioned beneath a window framing a leafy backyard view, making even the everyday task of washing up feel connected to the outdoors.

The updated kitchen and dining nook together form the true center of this home, where dark espresso cabinetry, granite countertops, and a backyard view through the sliding door make every meal feel special.

A sun-drenched dining nook off the kitchen features hardwood floors, a pendant chandelier, and a sliding glass door that opens directly to the backyard — morning coffee here is simply unmatched.

The kitchen nook captures its seamless transition to both the kitchen and the family room below, a naturally lit space that keeps everyone connected no matter the time of day.

The family room is anchored by a stunning floor-to-ceiling stacked-stone fireplace, creating an irresistible focal point where warm fires and comfortable sofas invite everyone to slow down.

The stacked-stone fireplace surround, flanked by craftsman-style wood cabinetry and live plants, glows with a crackling fire — the kind of feature that makes a house feel unmistakably like home.

Flooded with natural light from a wall of windows, the family room comfortably fits multiple seating groups while the stone fireplace and warm wood accents keep the space grounded and inviting.

The family room's generous square footage, ceiling fan, and abundant window light make it a room that works as hard in summer as it does in winter, offering year-round comfort and gathering space.

Tucked behind French doors, the main-level home office features built-in shelving, wood-look tile floors, and room for two workstations — a private and productive space for today's work-from-home lifestyle.

The primary bedroom is a generous, light-filled sanctuary featuring vaulted ceilings, a ceiling fan, and private slider access to the upper deck, where the first breath of morning air is just steps away.

Sunlight streams through the sliding glass door and windows in the primary bedroom, highlighting its spacious layout and private balcony access — the perfect place to end and begin each day.

The spa-like primary bathroom features a deep soaking tub framed in subway tile alongside a frameless glass walk-in shower with a pebble floor — a daily ritual elevated into pure luxury.

The soaking tub reveals its beautifully appointed fixtures, frosted privacy window, and fresh floral accents — a detail that speaks to the care and intention throughout this home.

The full primary bath showcases a double vanity with granite countertops and white cabinetry, the soaking tub, and the frameless glass shower all together in one serene, spa-inspired space.

A cheerful and personality-filled secondary bedroom.

A well-appointed hall bath serves the secondary bedrooms with a wide vanity and large mirror.

A restful third bedroom is a comfortable retreat with just the right amount of natural light for restful nights and productive days.

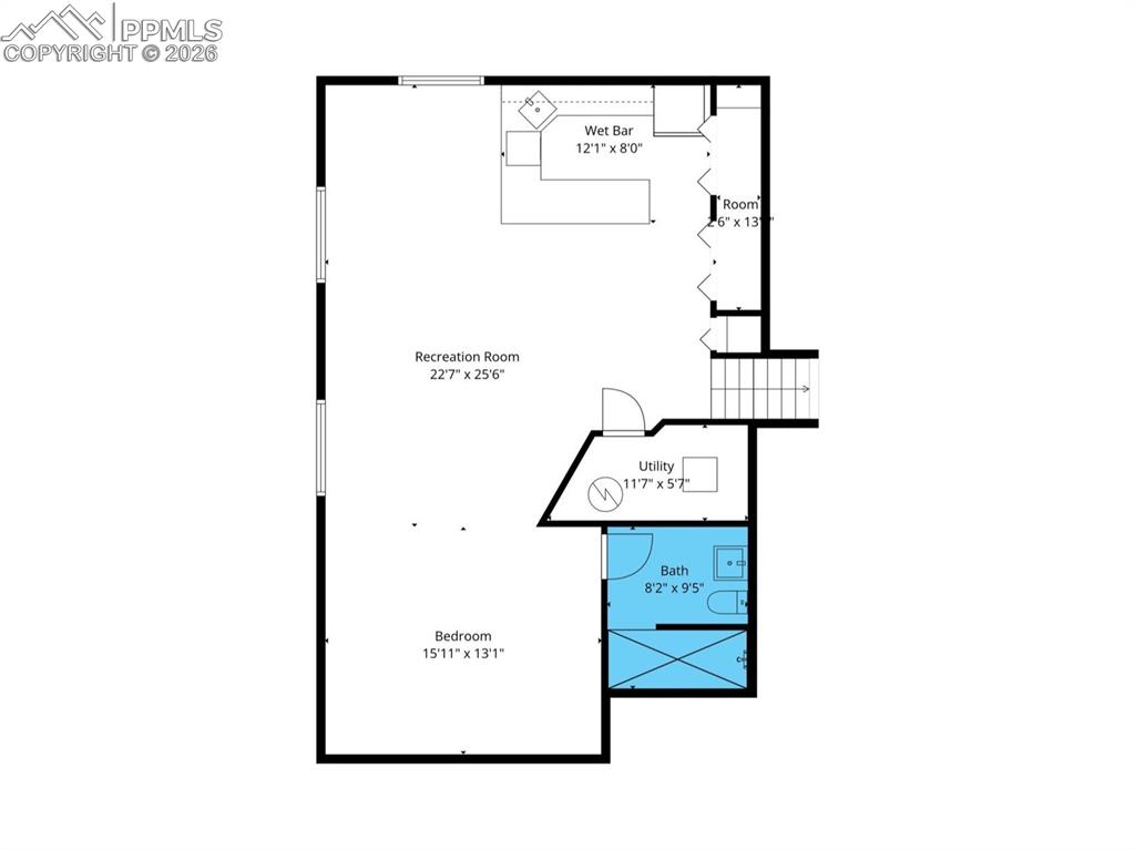
The spacious basement bedroom offers recessed lighting, plush carpet, and direct access to its own bathroom, making it an ideal guest suite, in-law quarters, or flex living space.

The basement bathroom features a pedestal sink, a round mirror, and a colorful shower curtain that brings a retro-chic energy to this functional and well-placed full bath.

The expansive basement rec room offers endless possibilities with a card table, a full wet bar, and room for games, art projects, and movie nights — a true gathering place for every age.

Downstairs, a handsome wood-topped bar with seating for four sets the tone for the ultimate entertainment space, complete with cabinetry, a wine glass rack, and a full-size refrigerator.

Granite countertops, warm oak cabinetry, and pendant lighting give the basement bar a polished, purposeful finish that elevates everyday entertaining into something special.

The balcony off the primary bedroom is a private perch above the treetops.

Glimpses of Colorado's Front Range mountains peek through the trees, reminding you that the lifestyle here is as spectacular as the home itself.

Balcony

Balcony

The fully fenced backyard is a private outdoor haven, featuring a lush green lawn, mature trees, a stamped concrete patio, and a covered pergola — everything needed for a Colorado summer well-lived.

Looking across the wide, well-landscaped backyard, the home's rear elevation reveals a seamless blend of indoor and outdoor living spaces framed by privacy fencing and mature plantings.

A full view of the rear of the home showcases the two-level outdoor living setup — a main-floor patio below and an upper balcony above — along with solar panels that speak to this home's thoughtful efficiency.

A closer look at the covered patio beneath the pergola reveals its connection to the lawn and gardens, where evergreen trees provide natural privacy and the stage is set for year-round outdoor enjoyment.

The ideal setting for long Colorado evenings with friends and family.

Paid in Full Solar Panels

Aerial View

Just minutes from home, Cottonwood Park delivers an impressive spread of athletic fields, tennis courts, a skate park, and playground equipment — all set against a sweeping backdrop of Pikes Peak and the Front Range that reminds you exactly why people fall in love with Colorado living.

This bird's-eye view of the surrounding neighborhood captures the park's playground and open green space nestled comfortably within a mature, tree-lined community — a place where kids play, neighbors connect, and the best of Colorado's active outdoor lifestyle is truly right around the corner.

Floor Plan

Floor Plan

Floor Plan
Disclaimer: The real estate listing information and related content displayed on this site is provided exclusively for consumers’ personal, non-commercial use and may not be used for any purpose other than to identify prospective properties consumers may be interested in purchasing.