6992 Oak Valley Drive, Colorado Springs, CO, 80919

Image Count: 41

$825,000

  • Highlights
  • Single Family
  • 5 bd | 4 ba | 4,370 sqft
  • 6992 Oak Valley Drive, Colorado Springs, CO, 80919 listed by Nathan Johnson ABR CRS GRI MRP
  • Active
  • MLS#: 3403104
  • Tour #1 | Tour #2
  • View on Map
Space maker

Property Description

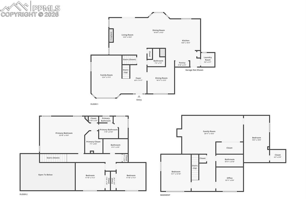
Situated on a private 1-acre hillside lot surrounded by nature in District 20, this spacious 5-bedroom, 4-bath two-story home with 4,370 total square feet and a finished basement offers a rare blend of privacy, space, and updates. The home features three bedrooms upstairs including a very large primary suite with updated 5-piece bath and walk-in closet, hardwood floors on the main level, granite kitchen with breakfast bar and walkout to the backyard, main-level laundry, and a stunning built-in bookcase perfect for a home library. Major improvements include newer windows on the main and upper levels, restored and refinished hardwood flooring, newer upstairs carpet, composite deck with new railings, solar panels, EV-ready garage setup, updated electrical panel, newer water heater, and kitchen appliances under five years old. The main level offers a family room with fireplace and wood flooring, a formal dining room with space for a large table and china cabinet, and a bright kitchen designed for everyday living and entertaining. Upstairs includes the oversized primary suite plus two additional large bedrooms with generous closets and a full guest bath, while the finished basement adds two additional bedrooms, a dedicated office space, and an oversized second family room perfect for entertaining or flexible living. Additional highlights include a composite deck, hot-tub pad with hookup nearby, newer A/C (under 10 years old), serviced chimney, upgraded garage door motor with vertical-lift capability for car-lift flexibility, and a District 20 bus stop at the end of the street—a standout combination of acreage, comfort, and functionality in a highly desirable setting.

Property Listed By

Picture of REALTOR Listing Property
  • Nathan Johnson ABR CRS GRI MRP
  • 6135-902-917  Call the Agent 
Picture of Office Listing Property
  • RE/MAX Real Estate Group LLC
  • 0097-435-917  Call the Agent 

Property Details

    General Features

  • Property: Single Family, 2 Story
  • Year Built: 1986
  • List Price: $825,000
  • County: El Paso
  • School District: Academy-20

    Rooms

  • Master: Upper Level, 17 x 19
  • Bedrooms: 5
  • Baths: 2 full bath; 1 1/2 bath; 1 3/4 bath;
  • Master Bathroom Amenities: 5-Pc Bath, Double Vanity, Free-standing Shower, Tub
  • Laundry: Electric Hook-up, Main

    Structure

  • Foundation: Full Basement
  • Heating: Forced Air
  • Cooling: Ceiling Fan, Central Air
  • Garage/Parking #: 3 vehicle(s), Attached
  • Total SqFt: 4,370
  • Finished SqFt: 4,309
  • Basement SqFt: 1,212
  • Basement % Fin: 95
  • Construction Status: Existing Home
  • Siding: Brick, Masonite Type
  • Structure: Framed on Lot, Frame

    Features

  • Appliances: 220v in Kitchen, Dishwasher, Dryer, Kitchen Vent Fan, Oven, Range, Refrigerator, Washer
  • Floors: Carpet, Tile, Vinyl/Linoleum, Wood
  • Entry: Natural Wood
  • Fireplace: Main Level, One, Wood Burning
  • Interior Features: 5-Pc Bath, 9Ft + Ceilings, Great Room, Vaulted Ceilings
  • Laundry: Electric Hook-up, Main

    Taxes, Utilities, Lot

  • Tax: $3,325
  • Lot Size: 1.00 Acres, 43,560 SqFt
  • Lot Description: View of Rock Formations
  • Existing Utilities: Cable Connected, Electricity Connected, Natural Gas Connected, Solar
  • Existing Water: Municipal

    Community

    Additional Information


      Disclaimer
      The real estate listing information and related content displayed on this site is provided exclusively for consumers’ personal, non-commercial use and may not be used for any purpose other than to identify prospective properties consumers may be interested in purchasing.
      PPAR.com Website

      6992 Oak Valley Drive, Colorado Springs, CO, 80919

      Image 1 of 41: Front of Structure

      Front of Structure

      Image 2 of 41: Other

      Other

      Image 3 of 41: Sitting Room

      Sitting Room

      Image 4 of 41: Sitting Room

      Sitting Room

      Image 5 of 41: Living Room

      Living Room

      Image 6 of 41: Dining Area

      Dining Area

      Image 7 of 41: Dining Area

      Dining Area

      Image 8 of 41: Kitchen

      Kitchen

      Image 9 of 41: Kitchen

      Kitchen

      Image 10 of 41: Kitchen

      Kitchen

      Image 11 of 41: Kitchen

      Kitchen

      Image 12 of 41: Kitchen

      Kitchen

      Image 13 of 41: Living Room

      Living Room

      Image 14 of 41: Living Room

      Living Room

      Image 15 of 41: Laundry

      Laundry

      Image 16 of 41: Bathroom

      Bathroom

      Image 17 of 41: Bedroom

      Bedroom

      Image 18 of 41: Bedroom

      Bedroom

      Image 19 of 41: Bedroom

      Bedroom

      Image 20 of 41: Bathroom

      Bathroom

      Image 21 of 41: Bathroom

      Bathroom

      Image 22 of 41: Bathroom

      Bathroom

      Image 23 of 41: Bathroom

      Bathroom

      Image 24 of 41: Bedroom

      Bedroom

      Image 25 of 41: Bedroom

      Bedroom

      Image 26 of 41: Bedroom

      Bedroom

      Image 27 of 41: Office

      Office

      Image 28 of 41: Game Room

      Game Room

      Image 29 of 41: Exercise Room

      Exercise Room

      Image 30 of 41: Bathroom

      Bathroom

      Image 31 of 41: Deck

      Deck

      Image 32 of 41: Deck

      Deck

      Image 33 of 41: Deck

      Deck

      Image 34 of 41: Deck

      Deck

      Image 35 of 41: Back of Structure

      Back of Structure

      Image 36 of 41: Back of Structure

      Back of Structure

      Image 37 of 41: Front of Structure

      Front of Structure

      Image 38 of 41: Aerial View

      Aerial View

      Image 39 of 41: Aerial View

      Aerial View

      Image 40 of 41: Aerial View

      Aerial View

      Image 41 of 41: Floor Plan

      Floor Plan

      Disclaimer: The real estate listing information and related content displayed on this site is provided exclusively for consumers’ personal, non-commercial use and may not be used for any purpose other than to identify prospective properties consumers may be interested in purchasing.