3757 Homestead Mesa Heights, Colorado Springs, CO, 80917

Image Count: 25

$343,900

  • Highlights
  • Townhouse
  • 2 bd | 2 ba | 1,767 sqft
  • 3757 Homestead Mesa Heights, Colorado Springs, CO, 80917 listed by Denise Brenner
  • Active
  • MLS#: 8479711
  • View on Map
Space maker

Property Description

LOCATION, LOCATION, LOCATION! This well-maintained townhome is just minutes from the Powers Corridor, offering easy access to entertainment, shopping, dining, health facility, and trails - all while tucked away in a quiet, low-traffic community with the unit is situated in a cul-de-sac which looks West onto open space making access to many miles of city walking and biking trails. Enter inside the home to a bright open layout where the kitchen features granite/stone countertops, stainless steel appliances, and a breakfast bar. Living room hosts a gas fireplace - walkout to a cozy balcony with a wonderful view of the city. This unit has been well maintianed - custom paint in entry and kitchen, maple cabinets throughout; carpet, tile and wood floors. The master bedroom is a true retreat, with an adjoinging bath, dual sinks, and skylight. Upstairs laundry room for extra convenience. Unfinished walk-out basement allows for lots of storage or a clean slate to design your own space as an additional bedroom or family room. Plumbed in for addtional 3rd bathroom as well. It's an unbeatable location, must see to appreciate. Don't miss out!

Property Listed By

Picture of REALTOR Listing Property
  • Denise Brenner
  • 4528-166-917  Call the Agent 
Picture of Office Listing Property
  • HomeSmart
  • 0018-858-303  Call the Agent 

Property Details

    General Features

  • Property: Townhouse, 2 Story
  • Attached: Yes
  • Year Built: 2007
  • List Price: $343,900
  • County: El Paso
  • School District: Colorado Springs 11

    Rooms

  • Master: Upper Level, 14 x 11
  • Bedrooms: 2
  • Baths: 1 full bath; 1 1/2 bath;
  • Master Bathroom Amenities: Carpet, Double Vanity, Skylight, Tub/Shower
  • Laundry: Upper

    Structure

  • Unit Description: Inside Unit
  • Foundation: Full Basement, Walk Out
  • Heating: Forced Air
  • Cooling: Ceiling Fan, Central Air
  • Garage/Parking #: 1 vehicle(s), Attached
  • Garage Amenities: Garage Door Opener
  • Patio Description: Composite
  • Total SqFt: 1,767
  • Finished SqFt: 1,189
  • Basement SqFt: 578
  • Construction Status: Existing Home
  • Siding: Stone, Stucco
  • Structure: Frame

    Features

  • Appliances: Dishwasher, Disposal, Dryer, Kitchen Vent Fan, Microwave Oven, Oven, Range, Refrigerator, Self Cleaning Oven, Washer
  • Floors: Carpet, Ceramic Tile, Wood
  • Entry: Natural Wood
  • Fireplace: Gas
  • Additional Items: Attached shelf in garage
  • Interior Features: Skylight
  • Laundry: Upper

    Taxes, Utilities, Lot

  • Tax: $1,046
  • Lot Size: 0.02 Acres, 935 SqFt
  • Driveway: Concrete
  • Lot Location: Hiking Trail, Near Fire Station
  • Lot Description: City View, Mountain View, Sloping
  • Restrictions: Architectural Control, No Mobile
  • Existing Utilities: Electricity Connected, Natural Gas Connected

    Community

  • Covenants: Yes
  • HOA Dues: $360
  • HOA Frequency: Monthly
  • HOA Fee Includes: Common Utilities, Covenant Enforcement, Insurance, Lawn, Maintenance Grounds, Management, Snow Removal, Trash Removal
  • Complex Amenities: Landscape Maintenance
  • Pet Type: Cat, Dog

    Additional Information

  • Notices: Broker Owned

      Disclaimer
      The real estate listing information and related content displayed on this site is provided exclusively for consumers’ personal, non-commercial use and may not be used for any purpose other than to identify prospective properties consumers may be interested in purchasing.
      PPAR.com Website

      3757 Homestead Mesa Heights, Colorado Springs, CO, 80917

      Image 1 of 25: Front of Structure

      Front of Structure

      Image 2 of 25: Garage/driveway view

      Garage/driveway view

      Image 3 of 25: Entry

      Entry

      Image 4 of 25: Entrance Foyer

      Entrance Foyer

      Image 5 of 25: Kitchen

      Kitchen

      Image 6 of 25: Kitchen

      Kitchen

      Image 7 of 25: Kitchen

      Kitchen

      Image 8 of 25: Kitchen

      Kitchen

      Image 9 of 25: Living Room

      Living Room

      Image 10 of 25: Living Room

      Living Room

      Image 11 of 25: Living Room

      Living Room

      Image 12 of 25: Living Room

      Living Room

      Image 13 of 25: Living Room

      Living Room

      Image 14 of 25: Bedroom

      Bedroom

      Image 15 of 25: Bedroom

      Bedroom

      Image 16 of 25: Bedroom

      Bedroom

      Image 17 of 25: Bathroom

      Bathroom

      Image 18 of 25: Bedroom

      Bedroom

      Image 19 of 25: Bedroom

      Bedroom

      Image 20 of 25: Bedroom

      Bedroom

      Image 21 of 25: View from front bedroom window

      View from front bedroom window

      Image 22 of 25: Balcony

      Balcony

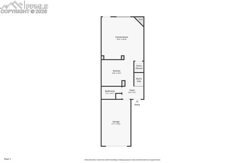
      Image 23 of 25: Floor Plan

      Floor Plan

      Image 24 of 25: Floor Plan

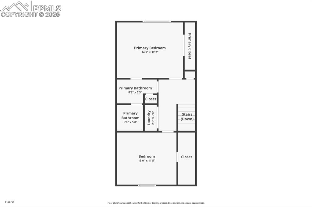
      Floor Plan

      Image 25 of 25: Floor Plan

      Floor Plan

      Disclaimer: The real estate listing information and related content displayed on this site is provided exclusively for consumers’ personal, non-commercial use and may not be used for any purpose other than to identify prospective properties consumers may be interested in purchasing.