201 E Las Animas Street 313, Colorado Springs, CO, 80903

Welcome to the Poet Lofts

Front of Structure

Entry

Virtually staged

Living Room

Virtually Staged

Kitchen

Kitchen

Kitchen

Kitchen

Kitchen

Kitchen

Kitchen

Great pantry with roll out shelves and wire baskets

Large broom closet with mop sink conveniently located adjacent to the kitchen

Virtually staged

Dining Room

Spacious main level primary suite. Virtually staged

Master Bedroom

Primary bedroom walk-in closet

Updated primary bathroom

Renovated primary bath with dual head plus rain head oversized shower

Main level secondary bedroom. Virtually staged

Secondary bedroom

Main level guest bath

Main level guest bath

Laundry is conveniently located on the main level

Upper level loft area. Virtually staged.

Upper level loft area. Virtually staged.

Upper level loft area. Virtually staged.

Upper level full 3rd bathroom

Walk-in closet adjacent to upper level 3rd bedroom

Bonus storage room on the upper level

Access from rear of the unit to emergency exit stairs

Rear of the unit with emergency exit coordiro

Common area entry was just renovated with new paint and flooring

Private underground heated garage with 2 parking spaces

Aerial View

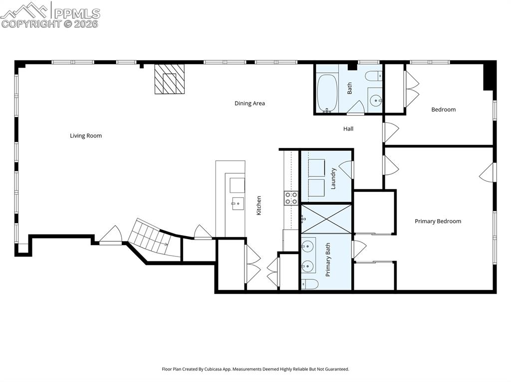
Floor Plan

Floor Plan

Floor Plan

Living Room

Dining Room

Living Room

Living Room

Master Bedroom

Main level secondary bedroom

Upper level loft area

Loft

Loft
Disclaimer: The real estate listing information and related content displayed on this site is provided exclusively for consumers’ personal, non-commercial use and may not be used for any purpose other than to identify prospective properties consumers may be interested in purchasing.