2510 Mirror Lake Court, Colorado Springs, CO, 80919

View of front of home featuring stucco siding, a front lawn, and stone siding

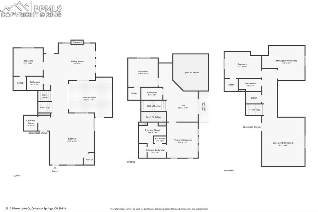
FLOOR PLANS

Entrance to property with stucco siding and stone siding

FLOOR PLANS

Living room featuring a fireplace, a chandelier, plenty of natural light, and vaulted ceiling

FLOOR PLANS

Living room featuring a stone fireplace, hanging lights, wood finished floors, and a high ceiling

FLOOR PLANS

Carpeted living area with a high ceiling and recessed lighting

Carpeted living area featuring a stone fireplace and baseboards

Office area with dark wood finished floors and recessed lighting

Dining space with dark wood-style flooring, a large fireplace, and recessed lighting

Half bath featuring vanity and dark wood-type flooring

View of patio with a mountain view and a residential view

Dining room featuring light wood-style floors and hanging lights

Dining room with healthy amount of natural light, wood finished floors, and hanging lights

Kitchen featuring wood finish cabinetry, glass insert cabinets, dishwasher, a breakfast bar area, and pendant lighting

Kitchen with stainless steel appliances, wood finish cabinetry, a breakfast bar, and dark wood-type flooring

Kitchen featuring glass insert cabinets, stainless steel appliances, a center island, light stone counters, and dark wood-style floors

Kitchen featuring stainless steel appliances, wood finish cabinetry, light stone counters, glass fronted cabinets, and dark wood-type flooring

Kitchen view of backsplash, light stone countertops, and wood finish cabinets

Laundry area with washing machine and clothes dryer

Workout area featuring light carpet and a chandelier

Balcony featuring a mountain view and a residential view

Bedroom with ceiling fan and light colored carpet

View of bedroom

Bedroom with connected bathroom, light carpet, and a ceiling fan

Bedroom with light carpet, connected bathroom, and ceiling fan

Bathroom with a stall shower, double vanity, a walk in closet, and light tile patterned floors

Walk in closet with light carpet

Bedroom with a crib, light colored carpet, lofted ceiling, and recessed lighting

Bedroom with light carpet and vaulted ceiling

Bedroom featuring light carpet

Bathroom featuring vanity, shower / bathtub combination with curtain, and light tile patterned floors

Living area with light carpet and hanging lights

Living area with light colored carpet and recessed lighting

Full bath featuring vanity and a stall shower

Bedroom with light colored carpet

Bedroom featuring light carpet and baseboards

View of storage

Garage with a garage door opener

View of front facade with stucco siding, a garage, concrete driveway, stone siding, and a front yard

View of front of house featuring stone siding, an attached garage, and stucco siding

Doorway to property featuring stucco siding and stone siding

View of patio with a residential view

View of side of home with stucco siding

Aerial view of residential area

Aerial view of residential area featuring a mountainous background

Aerial view of residential area featuring a mountainous background

Other
Disclaimer: The real estate listing information and related content displayed on this site is provided exclusively for consumers’ personal, non-commercial use and may not be used for any purpose other than to identify prospective properties consumers may be interested in purchasing.