713 N 23rd Street, Colorado Springs, CO, 80904

Image Count: 35

$465,000

  • Highlights
  • Single Family
  • 3 bd | 2 ba | 1,809 sqft
  • 713 N 23rd Street, Colorado Springs, CO, 80904 listed by Lana Rodriguez
  • Active
  • MLS#: 5660584
  • Tour #1
  • View on Map
Space maker

Property Description

Welcome home to this light, bright, and inviting Westside rancher! Perfectly situated on a spacious corner lot with desirable R2 zoning, this cozy yet functional home offers both comfort and opportunity. Step inside to a thoughtfully designed floor plan featuring two bedrooms on the main level and an additional bedroom in the finished basement, ideal for guests, a home office, or extended living space. The vaulted ceilings and skylights fill the spacious family room with natural light, creating an airy and welcoming atmosphere centered around a gas fireplace- perfect for cozy Colorado evenings. The kitchen offers an open-concept layout, seamlessly connecting to the dining area for easy everyday living and entertaining. Enjoy the convenience of a one-car detached garage for parking or extra storage, along with fenced front and back yard spaces, offering flexibility for pets, gardening, or outdoor relaxation. Location truly sets this home apart- just a short walk to Thorndale Park and minutes from some of Colorado Springs’ most iconic destinations, including downtown Old Colorado City, Garden of the Gods, Manitou Springs, and Red Rock Canyon Open Space. If you’ve been dreaming of Westside living, this is your chance to experience why so many say it’s the best side. Schedule your showing today

Property Listed By

Picture of REALTOR Listing Property
  • Lana Rodriguez
  • 0098-446-917  Call the Agent 
Picture of Office Listing Property
  • Real Broker, LLC DBA Real
  • 0982-708-027  Call the Agent 

Property Details

    General Features

  • Property: Single Family, Ranch
  • Year Built: 1970
  • List Price: $465,000
  • County: El Paso
  • School District: Colorado Springs 11

    Rooms

  • Bedrooms: 3
  • Baths: 1 full bath; 1 3/4 bath;
  • Laundry: Basement

    Structure

  • Foundation: Full Basement
  • Heating: Forced Air, Hot Water
  • Cooling: Central Air
  • Garage/Parking #: 1 vehicle(s), Detached
  • Total SqFt: 1,809
  • Finished SqFt: 1,737
  • Basement SqFt: 720
  • Basement % Fin: 90
  • Construction Status: Existing Home
  • Siding: Wood
  • Structure: Frame

    Features

  • Appliances: Dishwasher, Dryer, Microwave Oven, Range, Refrigerator, Washer
  • Floors: Carpet, Tile, Vinyl/Linoleum
  • Fireplace: Gas, Main Level, One
  • Additional Items: Washer/Dryer is older and is SOLD as IS.
  • Laundry: Basement

    Taxes, Utilities, Lot

  • Tax: $1,534
  • Lot Size: 0.19 Acres, 8,244 SqFt
  • Lot Description: Corner, Mountain View, View of Pikes Peak
  • Existing Utilities: Electricity Connected, Natural Gas Connected
  • Existing Water: Municipal

    Community

    Additional Information

  • Notices: Broker Owned

      Disclaimer
      The real estate listing information and related content displayed on this site is provided exclusively for consumers’ personal, non-commercial use and may not be used for any purpose other than to identify prospective properties consumers may be interested in purchasing.
      PPAR.com Website

      713 N 23rd Street, Colorado Springs, CO, 80904

      Image 1 of 35: Front of Structure

      Front of Structure

      Image 2 of 35: Front of Structure

      Front of Structure

      Image 3 of 35: Back of Structure

      Back of Structure

      Image 4 of 35: Front of Structure

      Front of Structure

      Image 5 of 35: Living Room

      Living Room

      Image 6 of 35: Living Room

      Living Room

      Image 7 of 35: Living Room

      Living Room

      Image 8 of 35: Living Room

      Living Room

      Image 9 of 35: Kitchen

      Kitchen

      Image 10 of 35: Kitchen

      Kitchen

      Image 11 of 35: Kitchen

      Kitchen

      Image 12 of 35: Kitchen

      Kitchen

      Image 13 of 35: Dining Area

      Dining Area

      Image 14 of 35: Dining Area

      Dining Area

      Image 15 of 35: Entry

      Entry

      Image 16 of 35: Other

      Other

      Image 17 of 35: Bedroom

      Bedroom

      Image 18 of 35: Other

      Other

      Image 19 of 35: Bedroom

      Bedroom

      Image 20 of 35: Bathroom

      Bathroom

      Image 21 of 35: Basement

      Basement

      Image 22 of 35: Basement

      Basement

      Image 23 of 35: Other

      Other

      Image 24 of 35: Bedroom

      Bedroom

      Image 25 of 35: Bathroom

      Bathroom

      Image 26 of 35: Front of Structure

      Front of Structure

      Image 27 of 35: Community

      Community

      Image 28 of 35: Yard

      Yard

      Image 29 of 35: Back of Structure

      Back of Structure

      Image 30 of 35: Back of Structure

      Back of Structure

      Image 31 of 35: Patio

      Patio

      Image 32 of 35: Garage

      Garage

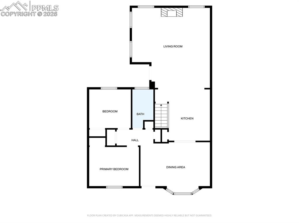
      Image 33 of 35: Floor Plan

      Floor Plan

      Image 34 of 35: Floor Plan

      Floor Plan

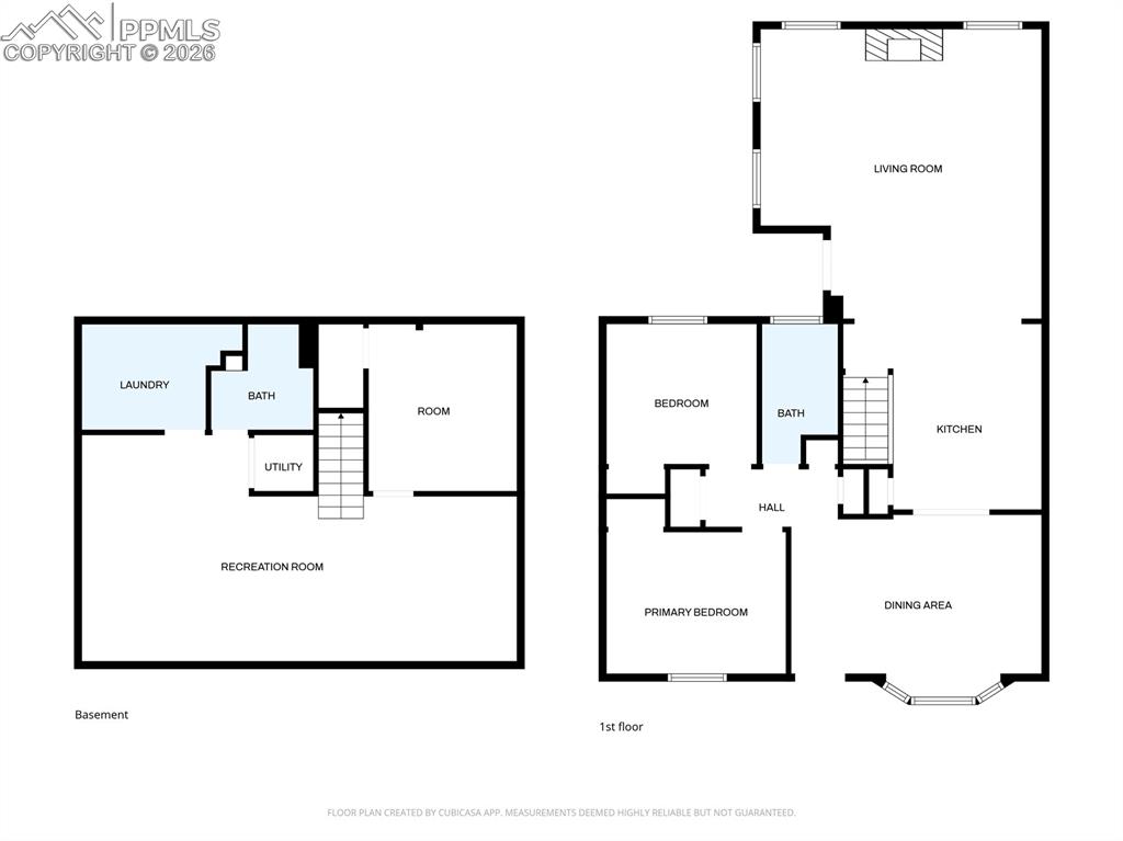
      Image 35 of 35: Floor Plan

      Floor Plan

      Disclaimer: The real estate listing information and related content displayed on this site is provided exclusively for consumers’ personal, non-commercial use and may not be used for any purpose other than to identify prospective properties consumers may be interested in purchasing.