1749 Victorian Point, Colorado Springs, CO, 80905

Image Count: 31

$379,000

  • Highlights
  • Condo
  • 3 bd | 3 ba | 1,691 sqft
  • 1749 Victorian Point, Colorado Springs, CO, 80905 listed by Dianna Doyle CDPE
  • Active
  • MLS#: 9197685
  • Tour #1 | Tour #2
  • View on Map
Space maker

Property Description

One of the best locations in the complex! This spacious two-story condo offers exceptional convenience with easy access to I-25, shopping, and is ideally situated just south of Old Colorado City on the west side of Colorado Springs. Enjoy being within walking distance to Bear Creek Open Space, complete with a large, well-maintained dog park. The main level welcomes you with a bright, open living area featuring soaring vaulted ceilings and a stunning three-sided gas fireplace that elegantly connects the living and dining spaces. A formal dining room sits just off the kitchen, while a separate breakfast nook provides the perfect spot for casual meals. The kitchen is designed to impress, offering ample space for cooking and baking, along with a dedicated pantry for added storage. A convenient half bath and direct access to the attached two-car garage complete the main level. Upstairs, the generously sized primary suite offers room for a sitting area or exercise space, along with an expansive walk-in closet and a private en-suite bath. Two additional bedrooms share a full bathroom, and the upper-level laundry room adds everyday convenience. Recent updates include new carpet upstairs that pairs beautifully with the newer LVP flooring. The HOA takes care of exterior maintenance, groundskeeping, and trash removal—making for low-maintenance living in a prime location.

Property Listed By

Picture of REALTOR Listing Property
  • Dianna Doyle CDPE
  • 5243-933-917  Call the Agent 
Picture of Office Listing Property
  • RE/MAX Real Estate Group LLC
  • 0097-435-917  Call the Agent 
My real estate career started with a passion for helping those facing foreclosure. I ventured into investing from there and got my real estate license shortly thereafter. I have been helping people for 18 years now and the fun never stops! I love the challenge in selling and look forward to finding the perfect home for you!

Property Details

    General Features

  • Property: Condo, 2 Story
  • Attached: Yes
  • Year Built: 1997
  • List Price: $379,000
  • County: El Paso
  • School District: Colorado Springs 11

    Rooms

  • Master: Upper Level, 21 x 14
  • Bedrooms: 3
  • Baths: 1 full bath; 1 1/2 bath; 1 3/4 bath;
  • Master Bathroom Amenities: Double Vanity, Free-standing Shower
  • Laundry: Electric Hook-up, Upper

    Structure

  • Unit Description: Inside Unit
  • Foundation: Crawl Space
  • Heating: Forced Air, Natural Gas
  • Cooling: Central Air
  • Garage/Parking #: 2 vehicle(s), Attached
  • Patio Description: Wood Deck
  • Total SqFt: 1,691
  • Finished SqFt: 1,691
  • Construction Status: Existing Home
  • Siding: Alum/Vinyl/Steel
  • Structure: Framed on Lot, Frame

    Features

  • Appliances: 220v in Kitchen, Dishwasher, Disposal, Dryer, Microwave Oven, Range, Refrigerator, Washer
  • Floors: Carpet
  • Fireplace: Gas, Main Level, One
  • Additional Items: New carpet!
  • Interior Features: 9Ft + Ceilings, Great Room
  • Laundry: Electric Hook-up, Upper

    Taxes, Utilities, Lot

  • Tax: $1,154
  • Existing Utilities: Electricity Connected, Natural Gas Connected
  • Existing Water: Municipal

    Community

  • Covenants: Yes
  • HOA Dues: $295
  • HOA Frequency: Monthly
  • HOA Fee Includes: Common Utilities, Covenant Enforcement, Lawn, Maintenance Grounds, Management, Snow Removal, Trash Removal
  • Complex Amenities: Club House, Green Areas, Landscape Maintenance

    Additional Information


      Disclaimer
      The real estate listing information and related content displayed on this site is provided exclusively for consumers’ personal, non-commercial use and may not be used for any purpose other than to identify prospective properties consumers may be interested in purchasing.
      PPAR.com Website

      1749 Victorian Point, Colorado Springs, CO, 80905

      Image 1 of 31: Front of Structure

      Front of Structure

      Image 2 of 31: Front of Structure

      Front of Structure

      Image 3 of 31: Front of Structure

      Front of Structure

      Image 4 of 31: Front of Structure

      Front of Structure

      Image 5 of 31: Other

      Other

      Image 6 of 31: Entry

      Entry

      Image 7 of 31: Kitchen

      Kitchen

      Image 8 of 31: Kitchen

      Kitchen

      Image 9 of 31: Kitchen

      Kitchen

      Image 10 of 31: Dining Area

      Dining Area

      Image 11 of 31: Dining Area

      Dining Area

      Image 12 of 31: Dining Area

      Dining Area

      Image 13 of 31: Living Room

      Living Room

      Image 14 of 31: Deck

      Deck

      Image 15 of 31: Side of Structure

      Side of Structure

      Image 16 of 31: Living Room

      Living Room

      Image 17 of 31: Bathroom

      Bathroom

      Image 18 of 31: Laundry

      Laundry

      Image 19 of 31: Master Bedroom

      Master Bedroom

      Image 20 of 31: Master Bedroom

      Master Bedroom

      Image 21 of 31: Bathroom

      Bathroom

      Image 22 of 31: Bedroom

      Bedroom

      Image 23 of 31: Bedroom

      Bedroom

      Image 24 of 31: Bedroom

      Bedroom

      Image 25 of 31: Bedroom

      Bedroom

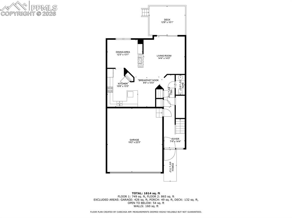
      Image 26 of 31: Floor Plan

      Floor Plan

      Image 27 of 31: Floor Plan

      Floor Plan

      Image 28 of 31: Back of Structure

      Back of Structure

      Image 29 of 31: Back of Structure

      Back of Structure

      Image 30 of 31: Back of Structure

      Back of Structure

      Image 31 of 31: Back of Structure

      Back of Structure

      Disclaimer: The real estate listing information and related content displayed on this site is provided exclusively for consumers’ personal, non-commercial use and may not be used for any purpose other than to identify prospective properties consumers may be interested in purchasing.