7961 Buffalo Horn Drive, Colorado Springs, CO, 80925

Professionally landscaped front of home

View of the property capturing the open space and mountains

Side view front of home

Front entry and patio

Entry way

Front sitting room/flex space at entry

Living room with view from entry and sitting room

Living room with views of beautiful open space

Living room with exterior view of open space and interior view of dining area and kitchen

Dining room with view of open space

Dining area with view of mudroom leading to garage, stairs leading to upper level, stairs leading to lower level, and living room

Gourmet kitchen with oversized stone island

Open concept kitchen with with high end appliances

Buttler's pantry with generous counter space, cabinets and overhead shelving

Mud room with custom storage built-ins. Garage entry

View from front of living room to the kitchen

Primary bedroom with beautiful open view

Primary bedroom with view to primary bath and loft

Primary bedroom with endless view of open space and beautiful mountains (to the right)

Primary bathroom with double vanity and spacious walkin shower

Primary bathroom with private toilet room

Loft reading corner and flex space with view to second bedroom

Second bedroom with large window allowing for an abundance of natural light

Loft flex space with view to third bedroom entry, full guest bath, and laundry room

Third bedroom with beautiful view of open space

Full bath upstairs

Conveniently located laundry room on upper floor near bedrooms

Basement theater room complete with 76" wall mounted flatscreen with concealed wiring

Spacious basement theater

Theater with large open area

Fourth bedroom in private basement area

Fourth bath located in basement

Professionally landscaped backyard complete with sprinkler system

View of backyard and concrete patio

View of the property, open space, and mountains

Aerial perspective of suburban area with a mountain backdrop

Coveted Colorado open space

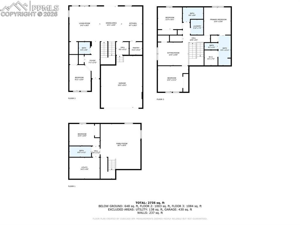
Floor Plan

Floor Plan

Floor Plan

Floor Plan
Disclaimer: The real estate listing information and related content displayed on this site is provided exclusively for consumers’ personal, non-commercial use and may not be used for any purpose other than to identify prospective properties consumers may be interested in purchasing.