4090 Sod House Trail, Colorado Springs, CO, 80917

Front of Home

Front of Structure

Mountain Views can be seen from home!

Living Room with Bay Window!

Living Room with Ceiling Fan

Dining Area w/Walk-out

Chair-lift to Basement Included!

Kitchen

Kitchen

Master Bedroom

Master Bedroom

Master Bedroom with Adjoining Bath

Hall Bathroom which adjoins Master Bedroom

Hall Bathroom

Bedroom #2

Bedroom #2

Bedroom #3

Basement Family Room

Basement Family Room

Basement Bedroom #4

Basement Bathroom

Laundry room/ Utility Room

Store Room which can be converted to a 5th Bedroom

Store Room

Huge Back Yard

Back of home and Yard

Back Yard

Back Yard!

Back Yard

Back Yard

Back Yard Mountain View!

Beautiful View of Pikes Peak!

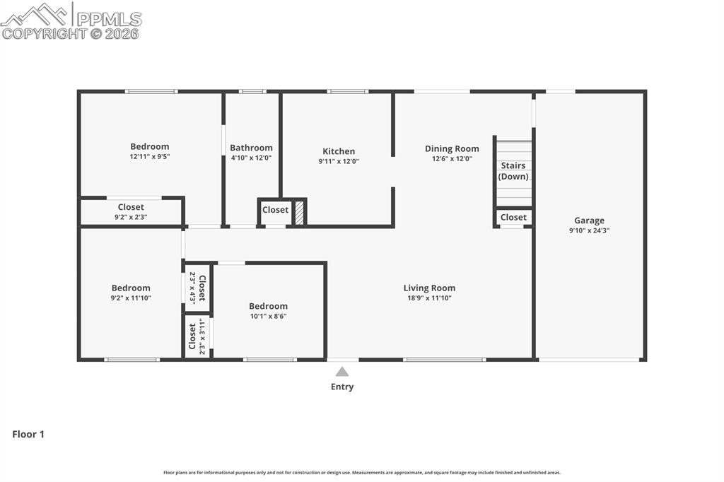
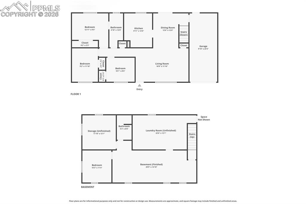
Main Level Floor Plan

Basement Floor Plan

Both Floor Plans
Disclaimer: The real estate listing information and related content displayed on this site is provided exclusively for consumers’ personal, non-commercial use and may not be used for any purpose other than to identify prospective properties consumers may be interested in purchasing.