4774 San Amels Way, Colorado Springs, CO, 80911

View of front of property featuring a porch, a garage, concrete driveway, stone siding, and roof with shingles

Craftsman-style home featuring concrete driveway, a porch, an attached garage, and stone siding

View of front of house featuring a porch, concrete driveway, an attached garage, and stone siding

Property entrance featuring stone siding and a porch

Office space with light carpet and baseboards

Bathroom featuring vanity and shower / tub combo with curtain

Spare room featuring light colored carpet and baseboards

Living room featuring ceiling fan, light wood-style floors, and a chandelier

Living area featuring light wood-style floors, a ceiling fan, and a glass covered fireplace

Kitchen featuring an island with sink, stainless steel appliances, dark stone counters, a chandelier, and light wood finished floors

Dining space featuring suspended lighting, light wood-style flooring, and vaulted ceiling

Kitchen featuring decorative backsplash, stainless steel appliances, light wood-type flooring, vaulted ceiling, and dark stone countertops

Laundry room featuring washer and clothes dryer

Rec room featuring billiards table, concrete floors, and recessed lighting

Indoor dry bar featuring butcher block countertops, wood finish cabinets, and recessed lighting

Bathroom with double vanity, dark wood-style flooring, and shower / bath combo with shower curtain

Bedroom featuring carpet flooring, a desk, and recessed lighting

Bedroom featuring light carpet and recessed lighting

Bedroom featuring light colored carpet and a ceiling fan

Bedroom with light colored carpet and ceiling fan

Full bath featuring vanity, shower / tub combo with curtain, and a walk in closet

Rear view of property with a patio area and a fenced backyard

Back of house featuring a patio and a fenced backyard

Rear view of house featuring a patio area and a fenced backyard

Rear view of house with a fenced backyard and a residential view

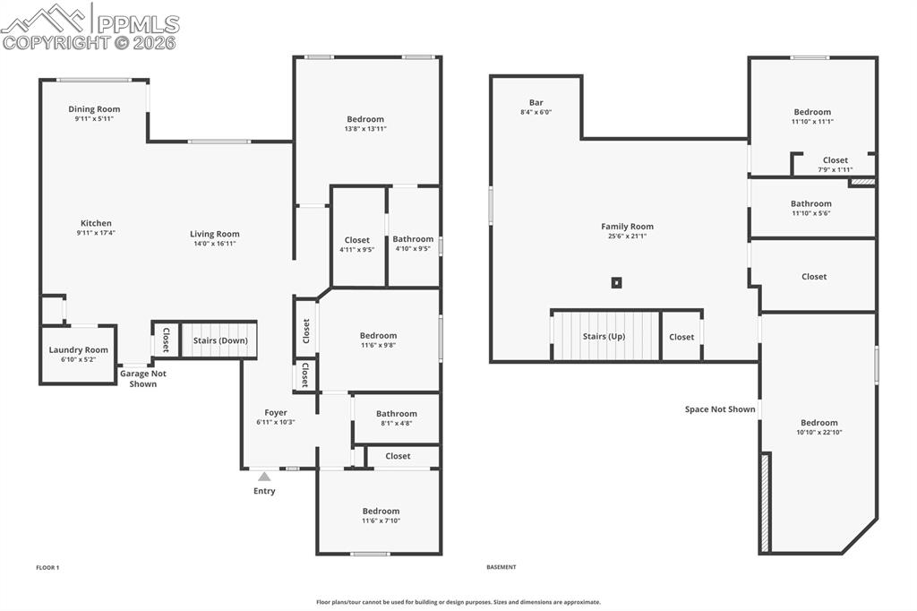
View of property floor plan

View of room layout

View of floor plan / room layout
Disclaimer: The real estate listing information and related content displayed on this site is provided exclusively for consumers’ personal, non-commercial use and may not be used for any purpose other than to identify prospective properties consumers may be interested in purchasing.