2960 Tenderfoot Hill Street, Colorado Springs, CO, 80906

Welcome home to this beautiful, updated, exquisite home with a walk-out!

Front of Structure

Front patio area

Featuring new carpeting, new paint, new upper window, new plantation shutters!

The living room features built-in book shelves and a bar!

Living Room

Living Room

Featuring a beautiful gas fireplace! This room could also be used as a formal dining room.

Living Room

New stainless appliances including a new wine frig, plus new granite countertops and backsplash!

Kitchen

Kitchen

Kitchen

Dining Area

Dining Area

Main level half bath

Main level half bath

Laundry

Laundry

Master Bedroom

Master Bedroom

Master Bedroom

Beautiful updated five piece primary bath

Enjoy soaking in this huge tub!

Newly tiled shower in the primary bath

Large walk-in closet in the primary bedroom

2nd Bedroom with attached full bath

2nd Bedroom

Full bath is attached to the second bedroom

Let's go downstairs...

Stairs to the basement level

Family Room

Family Room

The family room features a nice walk-out to the beautiful patio.

Lower level walk out patio

Basement bedroom

Basement bedroom

Basement full bath

Huge storage room in the basement!

Deck

The deck has a beautiful sweeping view to the east of the vast open space, perfect for watching the sunrises!

Aerial View

Aerial View

Aerial View

Aerial View

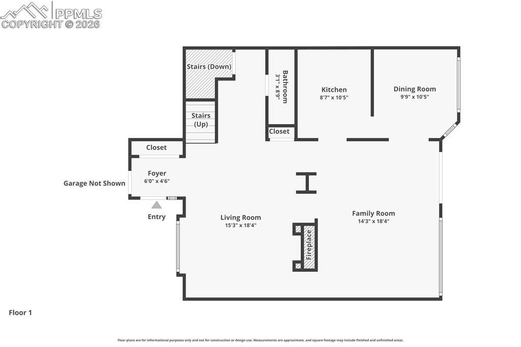
Main level

Basement level

Upper level
Disclaimer: The real estate listing information and related content displayed on this site is provided exclusively for consumers’ personal, non-commercial use and may not be used for any purpose other than to identify prospective properties consumers may be interested in purchasing.