6609 Cottonwood Grove Drive, Colorado Springs, CO, 80925

Image Count: 50

$445,000

  • Highlights
  • Single Family
  • 4 bd | 3 ba | 2,470 sqft
  • 6609 Cottonwood Grove Drive, Colorado Springs, CO, 80925 listed by Aimee Fletcher CLHMS GRI
  • Under Contract - Showing
  • MLS#: 5097353
  • Tour #1
  • View on Map
Space maker

Property Description

Welcome home to this beautifully updated ranch in Cottonwood Grove, perfectly positioned on a spacious lot with room to relax and enjoy Colorado living. From the moment you step inside, you’ll appreciate the warmth of luxury vinyl plank flooring throughout the main level and the inviting living room anchored by a cozy gas fireplace. The kitchen has been thoughtfully refreshed with new cabinet boxes and solid surface countertops, complemented by stainless steel appliances and a bright, functional layout that flows seamlessly into the dining area. The adjoining nook offers abundant natural light and easy access to the Trex deck, creating the perfect setting for indoor-outdoor entertaining. The main level features three bedrooms, including a comfortable primary suite with an attached five-piece bath. Downstairs, the finished basement expands your living space with a large family room, an additional bedroom, and flexible space for a home office, gym, or media area. Step outside to a generous backyard with plenty of space to unwind, garden, or host gatherings, all set against open views and a peaceful neighborhood setting. Additional upgrades include a radon mitigation system and major mechanical updates with a newer furnace, A/C, and hot water heater for added peace of mind. Conveniently located near parks, schools, and everyday amenities, this home has it all.

Property Listed By

Picture of REALTOR Listing Property
  • Aimee Fletcher CLHMS GRI
  • 4114-524-917  Call the Agent 
Picture of Office Listing Property
  • Exp Realty LLC
  • 4250-068-348  Call the Agent 

Property Details

    General Features

  • Property: Single Family, Ranch
  • Year Built: 1998
  • List Price: $445,000
  • County: El Paso
  • School District: Widefield-3

    Rooms

  • Master: Main Level, 12 x 16
  • Bedrooms: 4
  • Baths: 3 full bath;
  • Master Bathroom Amenities: 5-Pc Bath, Double Vanity, Free-standing Shower, Tub
  • Laundry: Main

    Structure

  • Foundation: Full Basement
  • Heating: Forced Air, Natural Gas
  • Cooling: Central Air
  • Garage/Parking #: 2 vehicle(s), Attached
  • Garage Amenities: Even with Main Level, Garage Door Opener
  • Total SqFt: 2,470
  • Finished SqFt: 2,384
  • Basement SqFt: 1,228
  • Basement % Fin: 93
  • Construction Status: Existing Home
  • Siding: Wood
  • Structure: Framed on Lot, Frame

    Features

  • Appliances: Dishwasher, Disposal, Gas in Kitchen, Microwave Oven, Oven, Range, Refrigerator
  • Floors: Carpet
  • Fireplace: Gas, Main Level, One
  • Additional Items: Washer and Dryer are negotiable.
  • Interior Features: 5-Pc Bath
  • Laundry: Main

    Taxes, Utilities, Lot

  • Tax: $1,901
  • Lot Size: 0.30 Acres, 12,980 SqFt
  • Street Description: City/Town Road, Paved
  • Landscaped: All
  • Fence: Rear
  • Driveway: Concrete
  • Lot Location: Hiking Trail, Near Fire Station, Near Park, Near Schools, Near Shopping Center
  • Lot Description: Sloping
  • Existing Utilities: Cable Available, Electricity Connected, Natural Gas Connected
  • Existing Water: Municipal

    Community

    Additional Information


      Disclaimer
      The real estate listing information and related content displayed on this site is provided exclusively for consumers’ personal, non-commercial use and may not be used for any purpose other than to identify prospective properties consumers may be interested in purchasing.
      PPAR.com Website

      6609 Cottonwood Grove Drive, Colorado Springs, CO, 80925

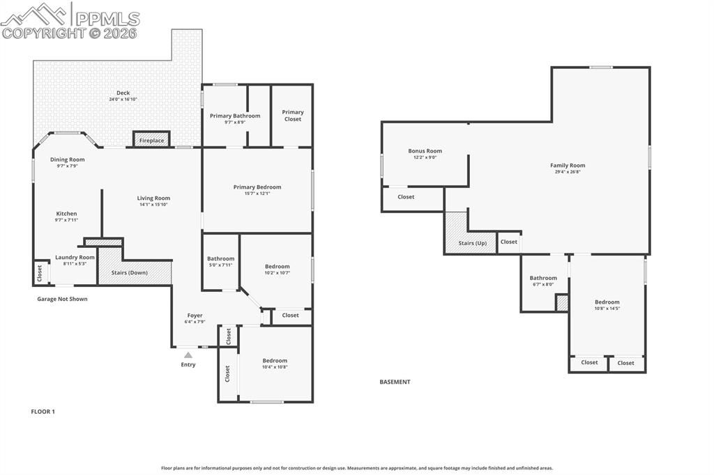
      Image 1 of 50: Floor Plan

      Floor Plan

      Image 2 of 50: Front of Structure

      Front of Structure

      Image 3 of 50: Floor Plan

      Floor Plan

      Image 4 of 50: Entry

      Entry

      Image 5 of 50: Floor Plan

      Floor Plan

      Image 6 of 50: Living Room

      Living Room

      Image 7 of 50: Living Room

      Living Room

      Image 8 of 50: Living Room

      Living Room

      Image 9 of 50: Living Room

      Living Room

      Image 10 of 50: Living Room

      Living Room

      Image 11 of 50: Dining Area

      Dining Area

      Image 12 of 50: Dining Area

      Dining Area

      Image 13 of 50: Dining Area

      Dining Area

      Image 14 of 50: Kitchen

      Kitchen

      Image 15 of 50: Kitchen

      Kitchen

      Image 16 of 50: Laundry

      Laundry

      Image 17 of 50: Deck

      Deck

      Image 18 of 50: Deck

      Deck

      Image 19 of 50: Master Bedroom

      Master Bedroom

      Image 20 of 50: Master Bathroom

      Master Bathroom

      Image 21 of 50: Master Bedroom

      Master Bedroom

      Image 22 of 50: Master Bedroom

      Master Bedroom

      Image 23 of 50: Master Bathroom

      Master Bathroom

      Image 24 of 50: Master Bathroom

      Master Bathroom

      Image 25 of 50: Bedroom

      Bedroom

      Image 26 of 50: Bedroom

      Bedroom

      Image 27 of 50: Bedroom

      Bedroom

      Image 28 of 50: Bedroom

      Bedroom

      Image 29 of 50: Basement

      Basement

      Image 30 of 50: Basement

      Basement

      Image 31 of 50: Basement

      Basement

      Image 32 of 50: Basement

      Basement

      Image 33 of 50: Basement

      Basement

      Image 34 of 50: Storage

      Storage

      Image 35 of 50: Bedroom

      Bedroom

      Image 36 of 50: Bedroom

      Bedroom

      Image 37 of 50: Bathroom

      Bathroom

      Image 38 of 50: Yard

      Yard

      Image 39 of 50: Yard

      Yard

      Image 40 of 50: Yard

      Yard

      Image 41 of 50: Back of Structure

      Back of Structure

      Image 42 of 50: Back of Structure

      Back of Structure

      Image 43 of 50: Back of Structure

      Back of Structure

      Image 44 of 50: Back of Structure

      Back of Structure

      Image 45 of 50: Front of Structure

      Front of Structure

      Image 46 of 50: Front of Structure

      Front of Structure

      Image 47 of 50: Front of Structure

      Front of Structure

      Image 48 of 50: Front of Structure

      Front of Structure

      Image 49 of 50: Aerial View

      Aerial View

      Image 50 of 50: Aerial View

      Aerial View

      Disclaimer: The real estate listing information and related content displayed on this site is provided exclusively for consumers’ personal, non-commercial use and may not be used for any purpose other than to identify prospective properties consumers may be interested in purchasing.