5344 Sunday Gulch Drive, Colorado Springs, CO, 80925

Image Count: 50

$475,000

  • Highlights
  • Single Family
  • 5 bd | 3 ba | 3,033 sqft
  • 5344 Sunday Gulch Drive, Colorado Springs, CO, 80925 listed by Jonathan Dickey
  • Active
  • MLS#: 4222290
  • Tour #1
  • View on Map
Space maker

Property Description

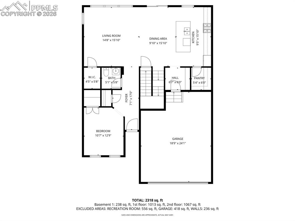
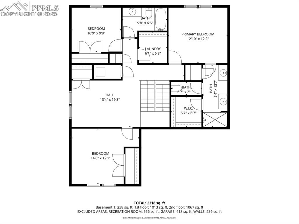
Completed 2021 and thoughtfully designed for modern living, this contemporary home in The Trails at Aspen Ridge offers a balance of space, function, and elevated design. A welcoming exterior introduces a home where clean architectural lines and intentional materials create a sense of sophistication. Inside, natural light moves through an open, inviting floorplan that encourages connection while maintaining purposeful spaces. Wood look plank tile grounds the main level with warmth + durability, complemented by a neutral palette that allows architecture and light to take center stage. At the heart of the home, the kitchen merges style and practicality with quartz counters, stainless steel appliances, espresso cabinetry, and a generous island that offers ample space for preparation and gathering. A walk-in pantry adds convenience while preserving the streamlined aesthetic. Just beyond the entry, a flex room creates an ideal setting for a quiet workspace, library, or studio. Nearby, a well appointed mudroom with built in storage introduces thoughtful organization. Upstairs, the home continues to unfold with a spacious loft that provides additional living space suited for study or relaxation. Three secondary bedrooms are well proportioned, while the primary suite offers a peaceful retreat complete with dual vanities, walk in closet, and a spa-inspired shower. The unfinished basement presents exceptional potential with two framed bedrooms, storage space, and an expansive open area ready to evolve. Outdoors, the backyard offers a curated space for gathering. Artificial turf creates year-round ease while multiple seating areas and a dedicated fire pit setting invite conversation beneath open skies. Modern construction, a spacious 4 bedroom layout, and contemporary design sensibility come together to create a home that is both beautifully composed and highly functional, offering a lifestyle defined by comfort, versatility, and enduring style.

Property Listed By

Picture of REALTOR Listing Property
  • Jonathan Dickey
  • 0567-885-504  Call the Agent 
Picture of Office Listing Property
  • Real Broker, LLC DBA Real
  • 0982-708-027  Call the Agent 

Property Details

    General Features

  • Property: Single Family, 2 Story
  • Year Built: 2021
  • List Price: $475,000
  • County: El Paso
  • School District: Widefield-3

    Rooms

  • Bedrooms: 5
  • Baths: 1 full bath; 1 1/2 bath; 1 3/4 bath;
  • Master Bathroom Amenities: Ceramic Tile, Double Vanity, Free-standing Shower
  • Laundry: Gas Hook-up, Upper

    Structure

  • Foundation: Partial Basement
  • Heating: Forced Air
  • Cooling: Ceiling Fan, Central Air
  • Garage/Parking #: 2 vehicle(s), Attached
  • Garage Amenities: Even with Main Level, Garage Door Opener
  • Patio Description: Concrete
  • Total SqFt: 3,033
  • Finished SqFt: 2,449
  • Basement SqFt: 897
  • Basement % Fin: 35
  • Construction Status: Existing Home
  • Siding: Fiber Cement, Shingle, Stone, Wood
  • Structure: Framed on Lot, Frame

    Features

  • Appliances: Dishwasher, Disposal, Dryer, Microwave Oven, Range, Refrigerator, Washer
  • Floors: Carpet, Tile, Wood Laminate
  • Entry: Tile
  • Interior Features: 9Ft + Ceilings, Great Room
  • Laundry: Gas Hook-up, Upper

    Taxes, Utilities, Lot

  • Tax: $4,625
  • Lot Size: 0.15 Acres, 6,506 SqFt
  • Street Description: City/Town Road
  • Landscaped: All
  • Fence: Rear
  • Driveway: Concrete
  • Lot Description: Level
  • Existing Utilities: Cable Available, Electricity Available, Natural Gas Available
  • Existing Water: Municipal

    Community

  • Commmunity Features: Hiking or Biking Trails, Parks or Open Space, Playground Area

    Additional Information


      Disclaimer
      The real estate listing information and related content displayed on this site is provided exclusively for consumers’ personal, non-commercial use and may not be used for any purpose other than to identify prospective properties consumers may be interested in purchasing.
      PPAR.com Website

      5344 Sunday Gulch Drive, Colorado Springs, CO, 80925

      Image 1 of 50: Front of Structure

      Front of Structure

      Image 2 of 50: Entry

      Entry

      Image 3 of 50: Entry

      Entry

      Image 4 of 50: Other

      Other

      Image 5 of 50: Other

      Other

      Image 6 of 50: Other

      Other

      Image 7 of 50: Living Room

      Living Room

      Image 8 of 50: Living Room

      Living Room

      Image 9 of 50: Dining Area

      Dining Area

      Image 10 of 50: Kitchen

      Kitchen

      Image 11 of 50: Kitchen

      Kitchen

      Image 12 of 50: Kitchen

      Kitchen

      Image 13 of 50: Kitchen

      Kitchen

      Image 14 of 50: Other

      Other

      Image 15 of 50: Mud Room

      Mud Room

      Image 16 of 50: Bathroom

      Bathroom

      Image 17 of 50: Other

      Other

      Image 18 of 50: Other

      Other

      Image 19 of 50: Bathroom

      Bathroom

      Image 20 of 50: Bathroom

      Bathroom

      Image 21 of 50: Closet

      Closet

      Image 22 of 50: Bathroom

      Bathroom

      Image 23 of 50: Other

      Other

      Image 24 of 50: Bedroom

      Bedroom

      Image 25 of 50: Other

      Other

      Image 26 of 50: Bedroom

      Bedroom

      Image 27 of 50: Other

      Other

      Image 28 of 50: Bathroom

      Bathroom

      Image 29 of 50: Bathroom

      Bathroom

      Image 30 of 50: Other

      Other

      Image 31 of 50: Bedroom

      Bedroom

      Image 32 of 50: Other

      Other

      Image 33 of 50: Bedroom

      Bedroom

      Image 34 of 50: Other

      Other

      Image 35 of 50: Bathroom

      Bathroom

      Image 36 of 50: Other

      Other

      Image 37 of 50: Other

      Other

      Image 38 of 50: Other

      Other

      Image 39 of 50: Other

      Other

      Image 40 of 50: Basement

      Basement

      Image 41 of 50: Basement

      Basement

      Image 42 of 50: Basement

      Basement

      Image 43 of 50: Laundry

      Laundry

      Image 44 of 50: Yard

      Yard

      Image 45 of 50: Back of Structure

      Back of Structure

      Image 46 of 50: Back of Structure

      Back of Structure

      Image 47 of 50: Floor Plan

      Floor Plan

      Image 48 of 50: Floor Plan

      Floor Plan

      Image 49 of 50: Floor Plan

      Floor Plan

      Image 50 of 50: Floor Plan

      Floor Plan

      Disclaimer: The real estate listing information and related content displayed on this site is provided exclusively for consumers’ personal, non-commercial use and may not be used for any purpose other than to identify prospective properties consumers may be interested in purchasing.