7527 Potomac Drive, Colorado Springs, CO, 80920

View of front of property featuring a porch, driveway, and an attached garage

View of front of property with driveway, a porch, a garage, roof with shingles, and brick siding

Foyer featuring stairs and dark wood finished floors

Doorway featuring wood finished floors and stairs

Stairway featuring carpet flooring and arched walkways

Carpeted living area featuring vaulted ceiling

Dining area featuring vaulted ceiling, carpet floors, and arched walkways

Kitchen with open floor plan, light countertops, dark wood-type flooring, wood finish cabinets, and a stone fireplace

Kitchen featuring light countertops, a kitchen island, and dark wood-type flooring

Carpeted living room with a ceiling fan and a stone fireplace

Living area with a ceiling fan, recessed lighting, and dark wood-style flooring

Living room with a ceiling fan, recessed lighting, and dark colored carpet

Kitchen with stainless steel appliances, dark wood-style floors, light countertops, and recessed lighting

Kitchen with stainless steel appliances, light countertops, a center island, dark wood finished floors, and recessed lighting

View of fenced backyard

Fenced backyard with a patio area

Fenced backyard featuring a patio

Rear view of property with a storage unit and a fenced backyard

Back of house with a fenced backyard and stucco siding

Bedroom with dark colored carpet and ceiling fan

Bedroom with dark carpet and a ceiling fan

Bathroom featuring vanity, a shower with curtain, and light tile patterned floors

Bedroom featuring dark carpet

Home office with a ceiling fan and dark carpet

Bathroom with vanity and a shower with shower curtain

Bathroom with dark wood finished floors and baseboards

Living room with carpet flooring and stairway

Living room featuring light colored carpet and stairs

Bathroom with vanity, a stall shower, and light tile patterned flooring

Laundry area with washing machine and dryer

View of walk in closet

View of road featuring sidewalks, a residential view, curbs, and a mountain view

View of front facade with covered porch, concrete driveway, a front lawn, a garage, and roof with shingles

View of front facade with concrete driveway, covered porch, a garage, brick siding, and roof with shingles

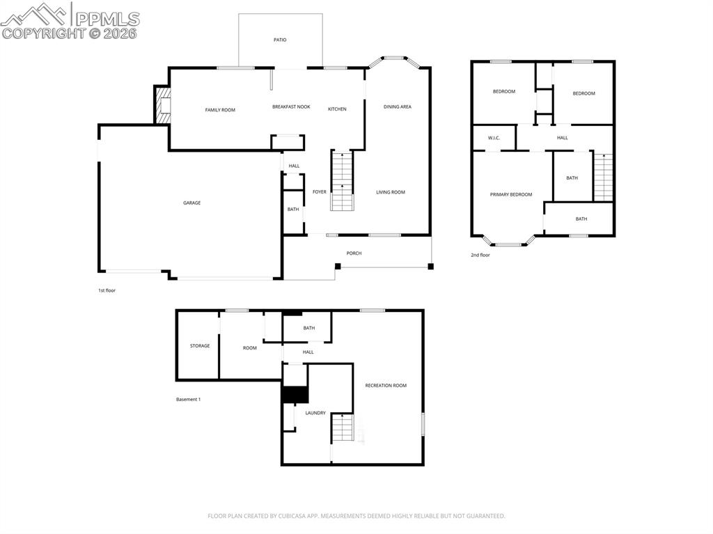
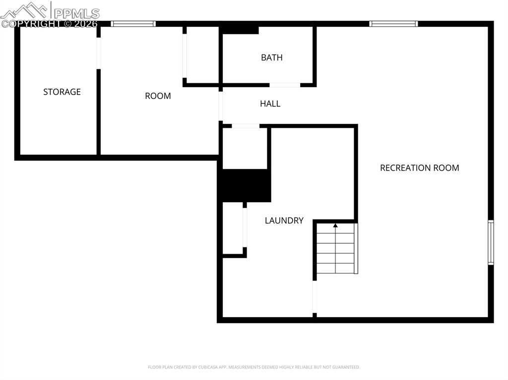
Floor Plan

Floor Plan

Floor Plan

Floor Plan
Disclaimer: The real estate listing information and related content displayed on this site is provided exclusively for consumers’ personal, non-commercial use and may not be used for any purpose other than to identify prospective properties consumers may be interested in purchasing.