2120 Rimwood Drive, Colorado Springs, CO, 80918

Home backs to serene open space!

Miles of natural beauty & trails

Stucco & brick exterior

Front with garden and bay windows

Living room from front door

Living Room

Light & bright living room with ample natural light from bay window

Living room with view towards kitchen and dining area

Living room with view into dining area

Living Room

Kitchen with tile floors and stainless steel appliances

Kitchen with tiled backsplash and garden window

Kitchen

Kitchen

Kitchen sink with garden window

View into dining area from kitchen

Dining area with ample natural light

Dining Area

Family room with view into dining area

Family room with built-in shelving

Primary bedroom with view into adjoining bathroom

Primary bedroom

Bright primary bathroom with enclosed shower

Upper level bedroom with ample natural light

Upper level full bathroom

Lower level light and bright bedroom

Lower level bedroom

Lower level bathroom with tiled shower

Lower level laundry room

Garage with work bench and cabinetry

View of deck from backyard

View of storage shed

Spacious backyard with gate to Open Space

Backyard showing RV space to the right

Great family neighborhood

Backs to open space

Aerial View

Aerial View

Double wide gate to access RV parking

Front of Structure

Front of Structure

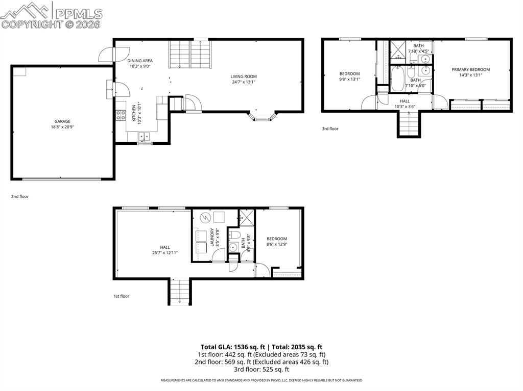
Floor Plan
Disclaimer: The real estate listing information and related content displayed on this site is provided exclusively for consumers’ personal, non-commercial use and may not be used for any purpose other than to identify prospective properties consumers may be interested in purchasing.