11376 Berry Farm Road, Fountain, CO, 80817

Front of home

Front entry with garden bed

Front entry

Open concept living room and dining room with gas fireplace

Living room with gas fireplace and plenty of natural light

Open concept dining room and living room

Dining room going into kitchen

Kitchen with stainless sleet appliances, plenty of cabinet space, butcher block countertops and a walk out

Kitchen with stainless sleet appliances, plenty of cabinet space, butcher block countertops and a walk out

Kitchen with stainless sleet appliances, plenty of cabinet space, butcher block countertops and a walk out

Kitchen with stainless sleet appliances, plenty of cabinet space, butcher block countertops and a walk out

Walk out from kitchen to back patio

Walk out from kitchen to back patio

Back patio

Primary bedroom with en suite 5 piece bathroom

Primary bedroom with en suite 5 piece bathroom

5 piece primary bathroom highlighting the soaking tub

Stand in shower in the 5 piece primary bathroom

Bedroom 2

Bedroom 2

Full bathroom near bedroom 2 and 3

Bedroom 3

Bedroom 3

Unfinished basement being used as workout area

Unfinished basement with laundry

Unfinished basement with potential to customize as you wish

Back patio and backyard

Fully fenced backyard

Fully fenced backyard

Fully fenced backyard

Front of home

Front of home

2 car garage

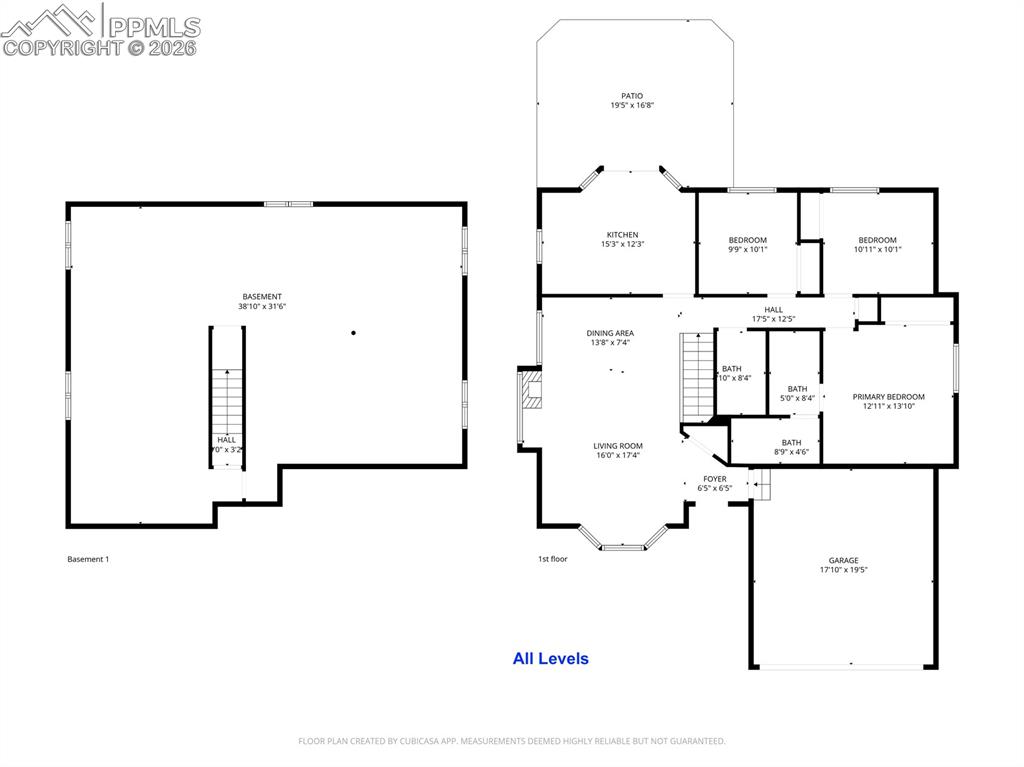
Main level floor plan

Lower level floor plan

All level floor plan
Disclaimer: The real estate listing information and related content displayed on this site is provided exclusively for consumers’ personal, non-commercial use and may not be used for any purpose other than to identify prospective properties consumers may be interested in purchasing.