3160 Wesley Place, Colorado Springs, CO, 80917

Front of Structure

Front of Structure

Front of Structure

Front of Structure

Storage tuff shed

Deck

Deck

Great room, amazing for entertaining.

Living Room

Other

Living Room

Living Room

Other

Dining Area

Dining Area

Living Room

Kitchen

Granite counters

Kitchen

Kitchen

Kitchen

Bathroom

Bedroom

Bedroom

Bedroom

Bathroom

Bathroom

Bathroom

Closet

Living Room

Other

Walkout to the backyard, bedroom 1 downstairs

Bedroom 2

Full Bath

bedroom, studio, office, workout room w/ cork floor

Deck

Large composite deck

louvered covered patio

Back of Structure

huge lot

Yard

Yard

Large lot!

walking trails

Yard

Yard

Front of Structure

When the yard was green!

When yard was green!

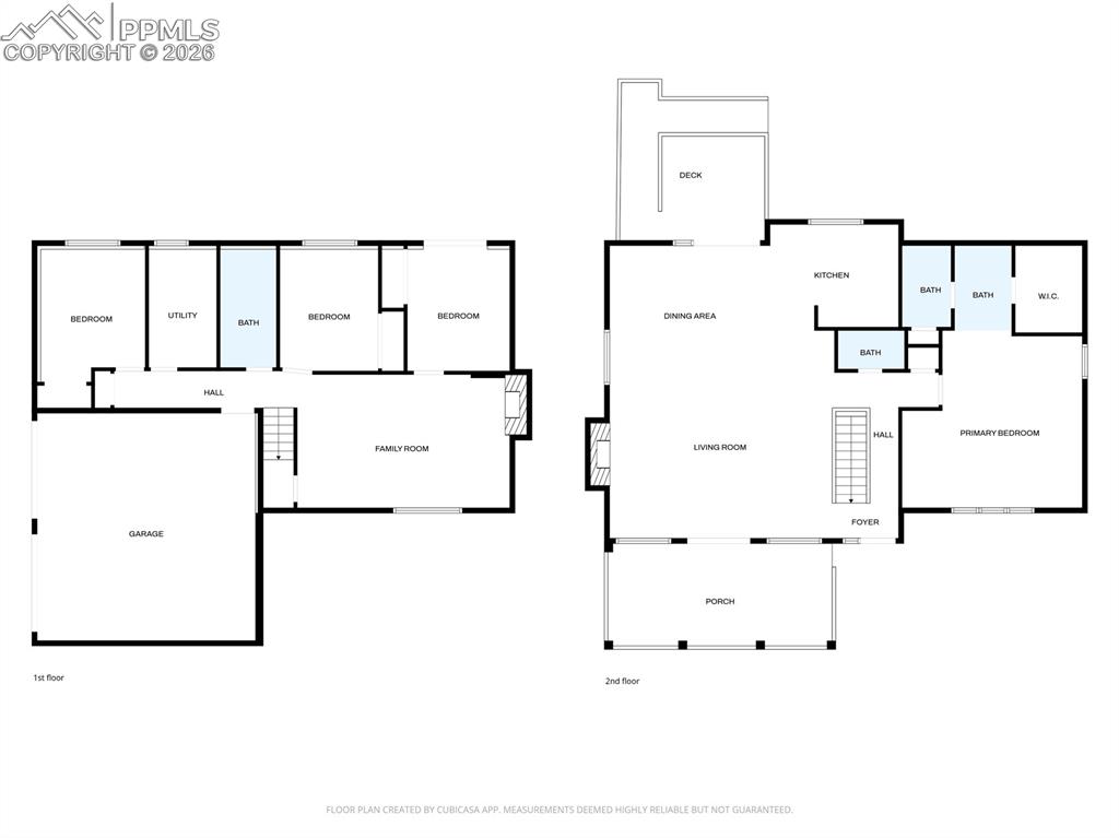
Floor Plan
Disclaimer: The real estate listing information and related content displayed on this site is provided exclusively for consumers’ personal, non-commercial use and may not be used for any purpose other than to identify prospective properties consumers may be interested in purchasing.