7138 Yampa River Heights, Fountain, CO, 80817

Image Count: 47

$330,000

  • Highlights
  • Townhouse
  • 2 bd | 3 ba | 1,625 sqft
  • 7138 Yampa River Heights, Fountain, CO, 80817 listed by Thomas Enck MRP SFR
  • Active
  • MLS#: 2313656
  • Tour #1
  • View on Map
Space maker

Property Description

Stunning end unit townhome in the highly sought after Heights at Cross Creek, a rare find nestled in a prime location near Fort Carson, Peterson Space Force Base, and walking distance to convenient shopping and dining! This home combines modern efficiency with an inviting, light filled atmosphere throughout. Step inside to a bright and airy layout with luxury vinyl plank flooring throughout the main level and abundant natural light flooding through oversized windows. The spacious kitchen features a breakfast bar, perfect for casual dining and entertaining. The upper level features a versatile loft overlooking open space and fields, ideal as a home office, reading nook, or flex space. This home offers exceptional comfort with two spacious primary suite bedrooms, each complete with its own en suite bathroom and walk in closet Everyday convenience is covered with main level laundry, an attached two car garage, and a top of the line heat pump that provides ultra efficient heating and doubles as central air conditioning for Colorado's warmer months. Enjoy a low maintenance lifestyle with the HOA covering trash removal, lawn and open space maintenance, and structure insurance. This home is a must see!!!

Property Listed By

Picture of REALTOR Listing Property
  • Thomas Enck MRP SFR
  • 9793-063-917  Call the Agent 
Picture of Office Listing Property
  • Great Colorado Homes, Inc.
  • 6637-753-917  Call the Agent 

Property Details

    General Features

  • Property: Townhouse, 2 Story
  • Attached: Yes
  • Year Built: 2007
  • List Price: $330,000
  • County: El Paso
  • School District: Widefield-3

    Rooms

  • Master: Upper Level, 13 x 17
  • Bedrooms: 2
  • Baths: 2 full bath; 1 1/2 bath;
  • Master Bathroom Amenities: Double Vanity, Tub/Shower
  • Laundry: Main

    Structure

  • Unit Description: End Unit
  • Foundation: Crawl Space
  • Heating: Forced Air, Heat Pump
  • Garage/Parking #: 2 vehicle(s), Attached
  • Patio Description: Covered
  • Total SqFt: 1,625
  • Finished SqFt: 1,625
  • Construction Status: Existing Home
  • Siding: Alum/Vinyl/Steel
  • Structure: Frame

    Features

  • Appliances: 220v in Kitchen, Dishwasher, Disposal, Dryer, Microwave Oven, Refrigerator, Washer
  • Floors: Carpet
  • Laundry: Main

    Taxes, Utilities, Lot

  • Tax: $1,580
  • Lot Size: 0.05 Acres, 2,106 SqFt
  • Existing Utilities: Cable Available, Electricity Connected, Natural Gas Connected
  • Existing Water: Municipal

    Community

  • Covenants: Yes
  • HOA Dues: $370
  • HOA Frequency: Monthly
  • HOA Fee Includes: Common Utilities, Covenant Enforcement, Insurance, Lawn, Maintenance Grounds, Maintenance Structure, Trash Removal

    Additional Information


      Disclaimer
      The real estate listing information and related content displayed on this site is provided exclusively for consumers’ personal, non-commercial use and may not be used for any purpose other than to identify prospective properties consumers may be interested in purchasing.
      PPAR.com Website

      7138 Yampa River Heights, Fountain, CO, 80817

      Image 1 of 47: Front of Structure

      Front of Structure

      Image 2 of 47: Front of Structure

      Front of Structure

      Image 3 of 47: Other

      Other

      Image 4 of 47: Entry

      Entry

      Image 5 of 47: Living Room

      Living Room

      Image 6 of 47: Sitting Room

      Sitting Room

      Image 7 of 47: Living Room

      Living Room

      Image 8 of 47: Living Room

      Living Room

      Image 9 of 47: Living Room

      Living Room

      Image 10 of 47: Kitchen

      Kitchen

      Image 11 of 47: Kitchen

      Kitchen

      Image 12 of 47: Kitchen

      Kitchen

      Image 13 of 47: Kitchen

      Kitchen

      Image 14 of 47: Laundry

      Laundry

      Image 15 of 47: Living Room

      Living Room

      Image 16 of 47: Dining Area

      Dining Area

      Image 17 of 47: Dining Area

      Dining Area

      Image 18 of 47: Dining Area

      Dining Area

      Image 19 of 47: Dining Area

      Dining Area

      Image 20 of 47: Bathroom

      Bathroom

      Image 21 of 47: Other

      Other

      Image 22 of 47: Other

      Other

      Image 23 of 47: Bedroom

      Bedroom

      Image 24 of 47: Bedroom

      Bedroom

      Image 25 of 47: Bedroom

      Bedroom

      Image 26 of 47: Bedroom

      Bedroom

      Image 27 of 47: Bedroom

      Bedroom

      Image 28 of 47: Bathroom

      Bathroom

      Image 29 of 47: Bathroom

      Bathroom

      Image 30 of 47: Closet

      Closet

      Image 31 of 47: Other

      Other

      Image 32 of 47: Bedroom

      Bedroom

      Image 33 of 47: Bathroom

      Bathroom

      Image 34 of 47: Closet

      Closet

      Image 35 of 47: Garage

      Garage

      Image 36 of 47: Other

      Other

      Image 37 of 47: Side of Structure

      Side of Structure

      Image 38 of 47: Front of Structure

      Front of Structure

      Image 39 of 47: Aerial View

      Aerial View

      Image 40 of 47: Aerial View

      Aerial View

      Image 41 of 47: Aerial View

      Aerial View

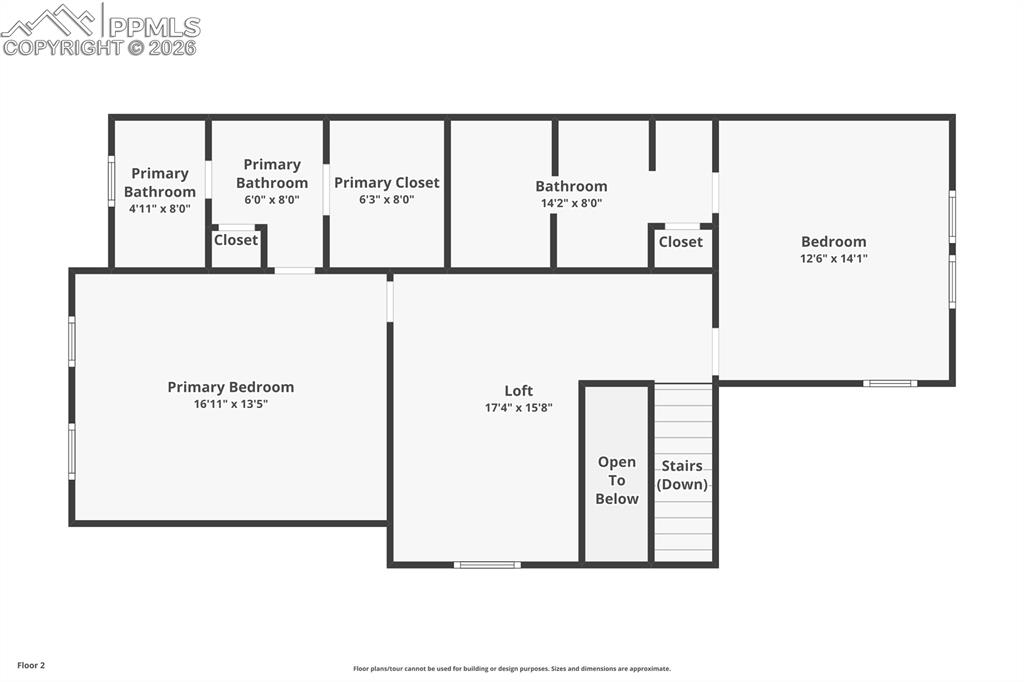
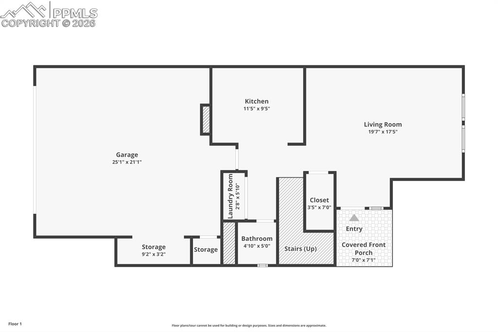
      Image 42 of 47: Floor Plan

      Floor Plan

      Image 43 of 47: Floor Plan

      Floor Plan

      Image 44 of 47: Floor Plan

      Floor Plan

      Image 45 of 47: Front of Structure

      Front of Structure

      Image 46 of 47: Balcony

      Balcony

      Image 47 of 47: Balcony

      Balcony

      Disclaimer: The real estate listing information and related content displayed on this site is provided exclusively for consumers’ personal, non-commercial use and may not be used for any purpose other than to identify prospective properties consumers may be interested in purchasing.