1041 Market Street, Colorado Springs, CO, 80904

Back of property with a patio area

Back of house featuring a chimney

Traditional home with a chimney and concrete driveway

View of sunroom / solarium

Living area with wood finished floors, a barn door, and built in shelves

Dining area with arched walkways, dark wood-style floors, plenty of natural light, and a barn door

Dining room featuring light wood-type flooring

Other

Kitchen with wooden counters, tasteful backsplash, electric stove, and white cabinets

Kitchen with wooden counters, decorative backsplash, white cabinetry, and stainless steel appliances

Kitchen featuring wooden counters, backsplash, stainless steel appliances, and light wood-type flooring

Kitchen featuring decorative backsplash, butcher block countertops, stainless steel appliances, and white cabinetry

Bedroom with multiple closets and wood finished floors

Bedroom featuring arched walkways, dark wood finished floors, and a closet

Bathroom featuring vanity and a shower stall

Bedroom with light carpet and baseboards

Home office featuring light colored carpet, ceiling fan, and french doors

Living area with built in shelves, carpet flooring, ceiling fan, and french doors

Carpeted living room with ceiling fan, washing machine and clothes dryer, and a barn door

Bedroom featuring carpet floors, access to outside, beam ceiling, and a ceiling fan

Bedroom with a spacious closet, light colored carpet, access to outside, a ceiling fan, and ensuite bath

Bathroom featuring vaulted ceiling, dark wood-type flooring, two vanities, a bath, and a stall shower

Full bathroom featuring vaulted ceiling, two vanities, a stall shower, dark wood finished floors, and ensuite bathroom

Full bath featuring vanity and dark wood-style flooring

View of storage

Back of house with a patio and french doors

View of ADU property exterior featuring stairway and asphalt driveway

ADU Rec room with light wood-style flooring

ADU- downstairs.
Office/Playroom featuring wood finished floors

ADU Living area featuring light colored carpet and ceiling fan

ADU Living area with a ceiling fan and light carpet

ADU Laundry area featuring light tile patterned floors and stacked washer and dryer

ADU Office space/Bedroom 1 featuring carpet and a ceiling fan

ADU Bedroom 2 with ceiling fan and dark colored carpet

ADU Carpeted bedroom with ceiling fan and baseboards

Rear view of house featuring a fenced backyard and a patio area

View of grassy yard with stairway and a deck

View of ADU property exterior featuring a patio, an attached garage, and asphalt driveway

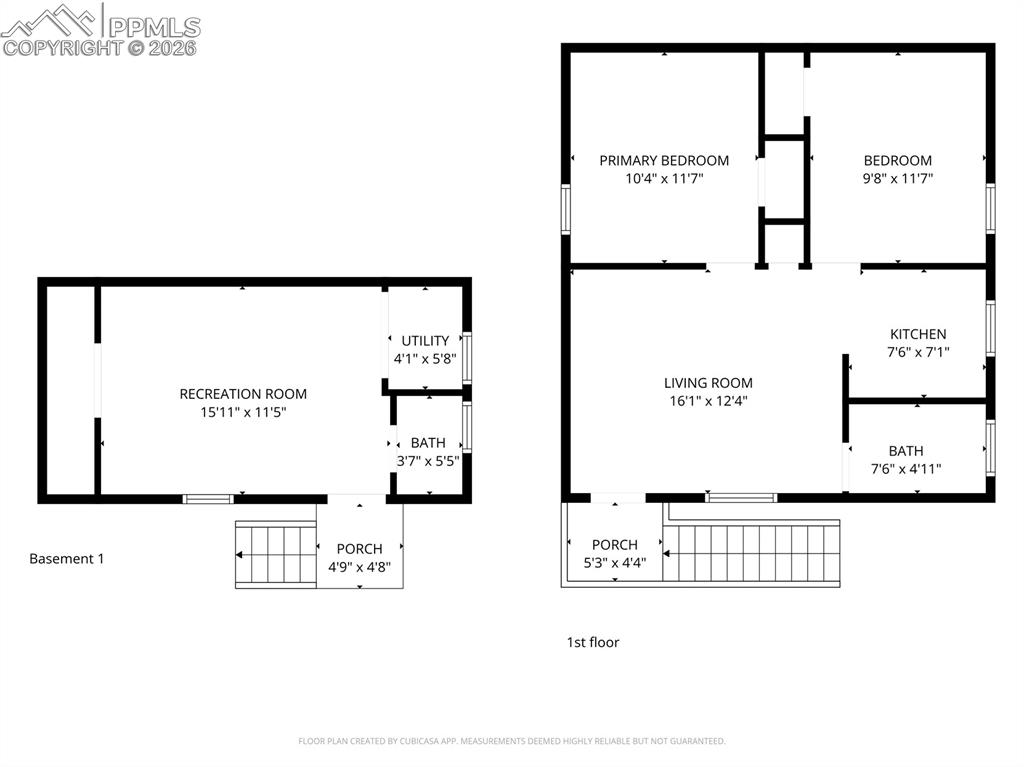
View of room layout

View of property floor plan

View of room layout
Disclaimer: The real estate listing information and related content displayed on this site is provided exclusively for consumers’ personal, non-commercial use and may not be used for any purpose other than to identify prospective properties consumers may be interested in purchasing.