8876 Briar Brush Lane, Colorado Springs, CO, 80927

Image Count: 50

$500,000

  • Highlights
  • Single Family
  • 3 bd | 3 ba | 2,001 sqft
  • 8876 Briar Brush Lane, Colorado Springs, CO, 80927 listed by Nathan Rains
  • Active
  • MLS#: 3606146
  • Tour #1 | Tour #2
  • View on Map
Space maker

Property Description

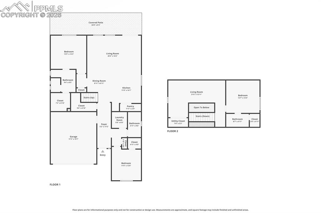
Darling home in the heart of Banning Lewis Ranch offering stunning Pikes Peak views and direct access to the community walking trail. A charming 6x13 covered front porch welcomes you into a bright, open layout featuring 9’ ceilings and beautiful hardwood floors. Just off the entry, a front bedroom with a spacious walk-in closet sits adjacent to a full bath with a deep soaking tub—ideal for guests or a home office. The hardwood floors continue into the expansive kitchen, thoughtfully designed with a large island with bar seating and under-cabinet storage, 3x8 walk-in pantry, JennAir induction range, built-in microwave, newer refrigerator, under-mount composite sink, pull-out drawers, and pendant lighting. The adjoining dining area showcases a tray ceiling and opens via sliding glass doors to a custom 8x30 covered patio—perfect for entertaining or relaxing year-round. Outdoor features shine with composite steps and iron railing, low-maintenance turf, roll-down winter blinds, honeysuckle vines, and a sprinkler-connected birdbath. Enjoy sweeping views of Pikes Peak and the Front Range from your private retreat. Main-level living includes a spacious primary suite with barn-door entry to a beautifully appointed ¾ bath featuring dual sinks, dual medicine cabinets, floor-to-ceiling tiled step-in shower with natural light, private water closet, and a 7x7 walk-in closet. Laundry room with built-in shelving is conveniently located on the main level. Upstairs offers a flexible loft space ideal for a gym, office, or second living area, along with a third bedroom featuring its own full bath and walk-in closet. Additional highlights include generous storage, crawl space access, and a garage faucet for added convenience. Thoughtfully designed, beautifully maintained, and perfectly positioned—this is Colorado living at its best. **MUST SEE PROPERTY!**

Property Listed By

Picture of REALTOR Listing Property
  • Nathan Rains
  • 9042-033-917  Call the Agent 
Picture of Office Listing Property
  • Exp Realty LLC
  • 4250-068-348  Call the Agent 

Property Details

    General Features

  • Property: Single Family, 1.5 Story
  • Year Built: 2016
  • List Price: $500,000
  • County: El Paso
  • School District: District 49

    Rooms

  • Master: Main Level, 13 x 13
  • Bedrooms: 3
  • Baths: 2 full bath; 1 3/4 bath;
  • Master Bathroom Amenities: Double Vanity, Free-standing Shower
  • Laundry: Electric Hook-up, Main

    Structure

  • Foundation: Crawl Space
  • Heating: Forced Air, Natural Gas
  • Cooling: Ceiling Fan, Central Air
  • Garage/Parking #: 2 vehicle(s), Attached
  • Garage Amenities: Garage Door Opener
  • Patio Description: Concrete, Covered
  • Total SqFt: 2,001
  • Finished SqFt: 2,001
  • Construction Status: Existing Home
  • Siding: Alum/Vinyl/Steel
  • Structure: Framed on Lot, Frame

    Features

  • Appliances: 220v in Kitchen, Dishwasher, Disposal, Dryer, Microwave Oven, Range, Refrigerator, Washer
  • Floors: Carpet, Vinyl/Linoleum, Wood
  • Entry: Closet, Covered, Natural Wood
  • Additional Items: Kitchen Refrigerator, Front Loader Washer and Dryer, Garage Racks, New 50 Gallon Water Heater (January 2026).
  • Interior Features: 6-Panel Doors, Great Room
  • Handicap: Hand Rails
  • Laundry: Electric Hook-up, Main

    Taxes, Utilities, Lot

  • Tax: $3,136
  • Lot Size: 0.10 Acres, 4,500 SqFt
  • Street Description: City/Town Road
  • Landscaped: All
  • Fence: Rear
  • Driveway: Concrete
  • Lot Location: Hiking Trail, Near Fire Station, Near Hospital, Near Park, Near Schools, Near Shopping Center
  • Lot Description: Backs to Open Space, Level, Mountain View, View of Pikes Peak
  • Restrictions: Architectural Control
  • Existing Utilities: Electricity Available, Electricity Connected, Natural Gas Available, Natural Gas Connected
  • Existing Water: Municipal

    Community

  • Covenants: Yes
  • Commmunity Features: Club House, Dog Park, Fitness Center, Parks or Open Space, Playground Area, Pool

    Additional Information


      Disclaimer
      The real estate listing information and related content displayed on this site is provided exclusively for consumers’ personal, non-commercial use and may not be used for any purpose other than to identify prospective properties consumers may be interested in purchasing.
      PPAR.com Website

      8876 Briar Brush Lane, Colorado Springs, CO, 80927

      Image 1 of 50: Front of Structure

      Front of Structure

      Image 2 of 50: Front of Structure

      Front of Structure

      Image 3 of 50: Front of Structure

      Front of Structure

      Image 4 of 50: Entry

      Entry

      Image 5 of 50: Bedroom

      Bedroom

      Image 6 of 50: Bedroom

      Bedroom

      Image 7 of 50: Closet

      Closet

      Image 8 of 50: Bathroom

      Bathroom

      Image 9 of 50: Laundry

      Laundry

      Image 10 of 50: Living Room

      Living Room

      Image 11 of 50: Living Room

      Living Room

      Image 12 of 50: Living Room

      Living Room

      Image 13 of 50: Dining Area

      Dining Area

      Image 14 of 50: Kitchen

      Kitchen

      Image 15 of 50: Kitchen

      Kitchen

      Image 16 of 50: Kitchen

      Kitchen

      Image 17 of 50: Kitchen

      Kitchen

      Image 18 of 50: Kitchen

      Kitchen

      Image 19 of 50: Bedroom

      Bedroom

      Image 20 of 50: Bedroom

      Bedroom

      Image 21 of 50: Bathroom

      Bathroom

      Image 22 of 50: Bathroom

      Bathroom

      Image 23 of 50: Bathroom

      Bathroom

      Image 24 of 50: Bathroom

      Bathroom

      Image 25 of 50: Closet

      Closet

      Image 26 of 50: Loft

      Loft

      Image 27 of 50: Loft

      Loft

      Image 28 of 50: Loft

      Loft

      Image 29 of 50: Bedroom

      Bedroom

      Image 30 of 50: Bedroom

      Bedroom

      Image 31 of 50: Closet

      Closet

      Image 32 of 50: Bathroom

      Bathroom

      Image 33 of 50: Floor Plan

      Floor Plan

      Image 34 of 50: Patio

      Patio

      Image 35 of 50: Other

      Other

      Image 36 of 50: Yard

      Yard

      Image 37 of 50: Community

      Community

      Image 38 of 50: Back of Structure

      Back of Structure

      Image 39 of 50: Back of Structure

      Back of Structure

      Image 40 of 50: Aerial View

      Aerial View

      Image 41 of 50: Aerial View

      Aerial View

      Image 42 of 50: Front of Structure

      Front of Structure

      Image 43 of 50: Community

      Community

      Image 44 of 50: Aerial View

      Aerial View

      Image 45 of 50: Aerial View

      Aerial View

      Image 46 of 50: Aerial View

      Aerial View

      Image 47 of 50: Aerial View

      Aerial View

      Image 48 of 50: Aerial View

      Aerial View

      Image 49 of 50: Aerial View

      Aerial View

      Image 50 of 50: Aerial View

      Aerial View

      Disclaimer: The real estate listing information and related content displayed on this site is provided exclusively for consumers’ personal, non-commercial use and may not be used for any purpose other than to identify prospective properties consumers may be interested in purchasing.