870 Point Of The Pines Drive, Colorado Springs, CO, 80919

Stucco exterior, 2 car garage and fully enclosed courtyard,

Additional off street parking.

Courtyard and covered front porch.

Just off the entry is a seating area. Large picture window and tons of natural light.

Front entry

Main level 1/2 bath with stackable washer and dryer.

Living room with vaulted ceilings, hardwood flooring, wood burning fireplace and stunning views!

Image 8 of 46

Open concept main level living.

Kitchen with gas range, large island, quartz countertops and tons of cabinetry.

Walk out to huge deck and amazing views.

NEW back deck overlooks the back yard and boasts stunning views.

Image 13 of 46

Image 14 of 46

Image 15 of 46

Image 16 of 46

Formal dining room, hardwood flooring and large picture window.

Main level bedroom suite. Currently being used as an office.

Attached and fully updated full bath with free standing shower and large soaking tub. There is a large walk-in closet behind the bookshelf that opens.

Image 20 of 46

Soaking tub

2nd main level bedroom suite with walk out to back deck.

Hardwood flooring and attached 3/4 bath

Updated 3/4 attached bath.

Free standing shower

Walkout basement with laminate flooring family room area and plenty of rec space.

Wood burning fireplace in the basement.

Family room space in the basement.

Utility and laundry located in the basement.

Basement bedroom with carpet and large closet.

Update basement 3/4 bath.

Basement bedroom with carpet.

Image 33 of 46

Fully fenced back yard, shed and tons of entertaining space.

Image 35 of 46

Image 36 of 46

Huge backyard

Image 38 of 46

Image 39 of 46

Image 40 of 46

Image 41 of 46

Image 42 of 46

Image 43 of 46

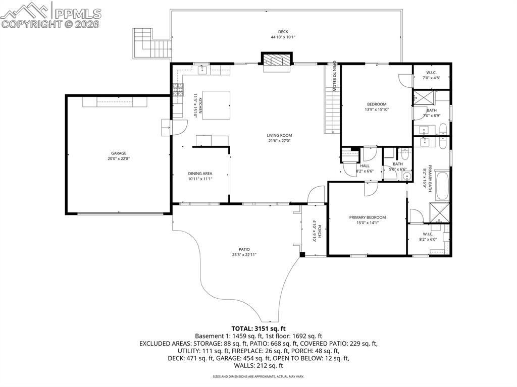
Main level

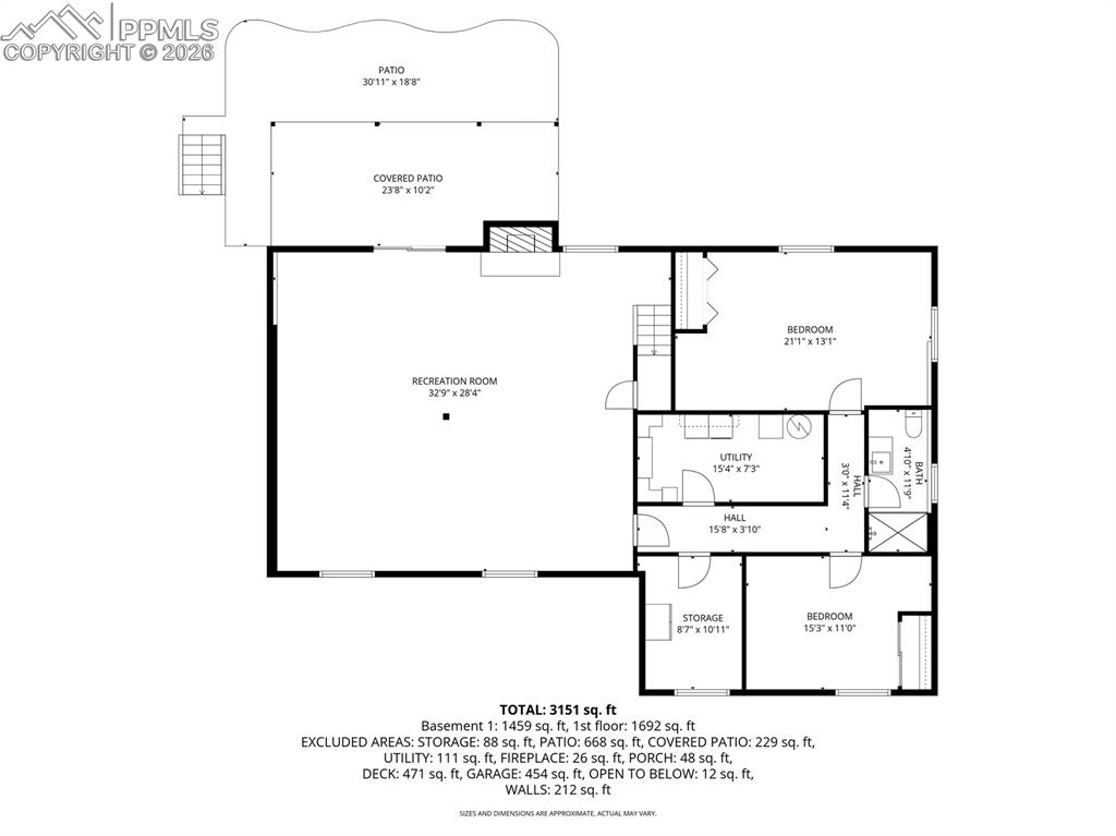
Basement

Image 46 of 46
Disclaimer: The real estate listing information and related content displayed on this site is provided exclusively for consumers’ personal, non-commercial use and may not be used for any purpose other than to identify prospective properties consumers may be interested in purchasing.