3550 Conecrest Lane, Colorado Springs, CO, 80908

Beautiful 1 owner custom-built ranch style home

Desirable Walden Pines offering true main level living

Paved driveway provides RV parking, guest parking, and access to the oversized 3 car garage

Drone / aerial view

Entrance foyer featuring vaulted ceiling, and a grand central staircase w/wrought iron baluster

Wonderful open main level floor plan is perfect for entertaining

Great room includes a stone surround wood burning FP, skylights, and floor to ceiling windows that fill the space w/natural light and walk out to the back patio

Cooks delight Kitchen

Kitchen offers granite slab counters, breakfast bar, 42” uppers w/crown, recessed lighting, wood floors, and all appliances including gas range/oven; slide out drawers in lowers

Kitchen featuring knotty alder cabinets and hickory wood floor

Dining space with light hickory floors

Dining space is a great gathering place for family and friends

Half bath on main level

Home office is the perfect work at home space

Owners' suite on the main floor

Primary suite features vaulted ceilings, and adjoining 5-piece bath

Primary suite 5pc bathroom featuring double vanity and radiant floor heat

Primary bath also features jetted soaking tub and large shower

Main level Jr Suite features WIC and full bath w/radiant heated floors.

Jr suite main level full bath featuring vanity, shower / tub combo, and light tile patterned heated floors

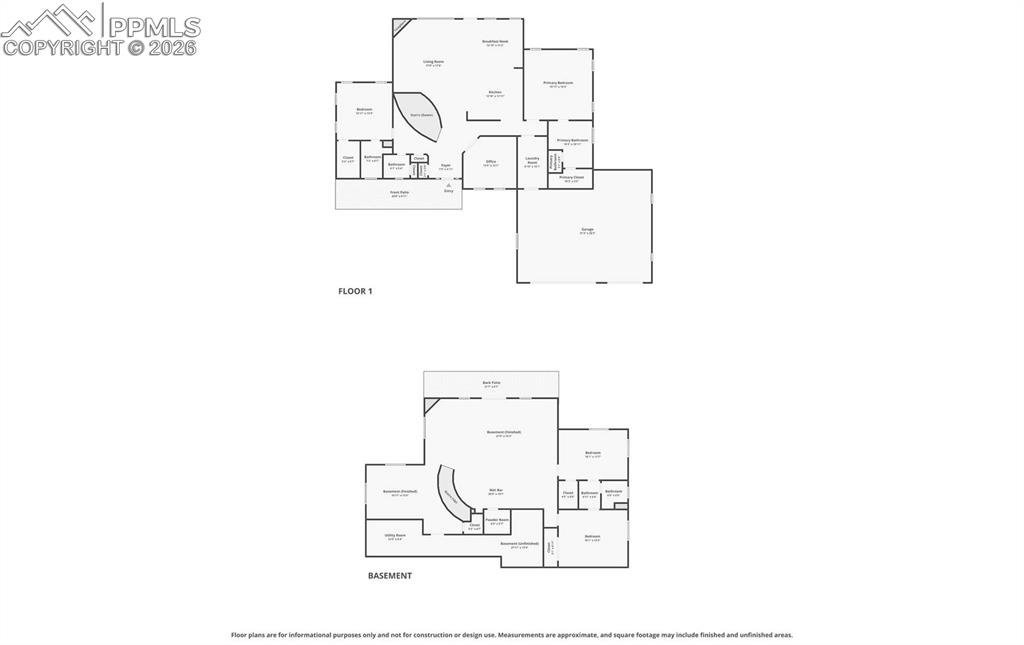
View of main Level room layout

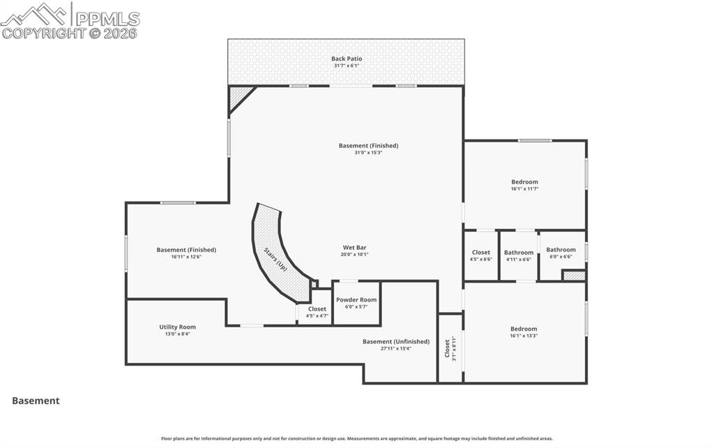
Fully finished basement has 9’ ceilings, large family room w/gas fireplace, workout area, wet bar w/beverage fridge, powder room, and 2 additional bedrooms connected by Jack and Jill full bath w/double vanity.

Family room wet bar

Basement walkout leads to serene, tree filled yard

Basement work out flex room

Basement half bathroom

Exercise room

Basement bedroom with Jack & Jill full bath

Jack and Jill basement full bath

Basement bedroom with Jack & Jill full bath

View of Basement floor plan / room layout

Back of house featuring a patio area

Wooden deck featuring outdoor dining area

View of wooden terrace

View of grassy yard featuring a shed, a patio, and a balcony

Rear view of house

View of green lawn with a storage shed and view of trees- over 1 acre lot

Back of house

View of front with plenty of guest parking

Ranch-style custom built house featuring a shingled roof, stone siding, an attached 3 car garage, stucco siding, and covered front porch

View of front of house with stone siding, driveway, and stucco siding

View of front of home featuring stone siding, an attached garage, roof with shingles, stucco siding, and a front yard

Bird's eye view of home and forest

Aerial view of home & mountains

Aerial view of a water and mountain view

Aerial view of mountains

Bird's eye view of a water and mountain view

Aerial view of a forest

View of property floor plan
Disclaimer: The real estate listing information and related content displayed on this site is provided exclusively for consumers’ personal, non-commercial use and may not be used for any purpose other than to identify prospective properties consumers may be interested in purchasing.