20320 Roaming Drive, Colorado Springs, CO, 80908

Welcome to your new home!

Heated 40 x 60 detached garage with two 10-foot doors.

Enjoy your morning coffee from the front porch!

Entry you have a space for your grand piano and music area or you can use it as a formal dining area!

Front entrance looking at the beautiful staircase leading to the basement and the hallway!

From the living room you can see the entry and music area and the beautiful 5" wood plank flooring.

Enjoy the 12' ceilings with the stacked stone fireplace with the stylish lighting.

Very large open Living Room with lots of windows and door to enjoy the back deck.

Gourmet kitchen with granite countertops and stainless steel appliances.

Lots of cabinets and storage in the kitchen for ease.

Large dining area off the kitchen with lots of windows for natural lighting.

Fabulous main level office with double doors that could be used as a bedroom.

Looking into Office from Primary bedroom.

Custom full main level bathroom.

Looking from the Office into the Primary bedroom.

Primary bedroom with vaulted ceilings and wood floors.

Primary bedroom with sliding door accessing back covered deck.

Sitting area off Primary bedroom with gas fireplace.

Sitting area conveniently located off the Primary bedroom.

Beautiful primary bathroom.

Large soaking tub and walk in shower with corner windows.

Tongue-and-groove wood ceilings over 30x12 deck.

Entertain on the large wood deck. Easy access from kitchen, living room and primary bedroom.

Beautifully landscaped fenced backyard.

Conveniently located laundry room with great storage and laundry sink.

Den in the large open basement.

Great dry bar with wood ceiling.

Gas fireplace in the den and enjoy the walk-out basement.

Great entertaining in this open space.

This bonus room located in the basement is currently being used as a second office.

Bedroom has double doors.

Enjoy your views of the backyard from the bedroom.

Custom half-bath in basement.

Large basement bedroom.

Bedroom has its own private vanity and sink area

Connecting bathroom and shared shower and toilet area.

Another great basement bedroom.

Hallway connects the two bedrooms.

Large basement patio off the walk-out. Great landscaping that is complete for you.

Fenced backyard that is landscaped and has a sprinkler system for convenience.

Picture taken during the summer.

Picture from the summer time

Great treed 2.51 acres.

Beautiful lot with a new Class 4 roof.

Part of the circular driveway showing the walking path to the detached structure.

Oversized detached 40x60 structure.

Inside the detached structure, two heaters and workspace to the right.

Beautiful entry to the front door with tongue-and-groove wood porch ceilings!

Enter the driveway of your new home!

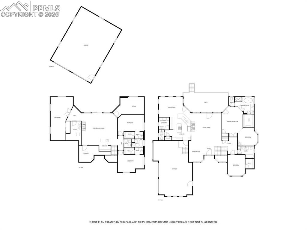
Floor Plan
Disclaimer: The real estate listing information and related content displayed on this site is provided exclusively for consumers’ personal, non-commercial use and may not be used for any purpose other than to identify prospective properties consumers may be interested in purchasing.