806 Red Thistle View, Colorado Springs, CO, 80916

Image Count: 32

$310,000

  • Highlights
  • Townhouse
  • 2 bd | 3 ba | 1,508 sqft
  • 806 Red Thistle View, Colorado Springs, CO, 80916 listed by Jennifer Montoya
  • Active
  • MLS#: 7786100
  • Tour #1 | Tour #3
  • View on Map
Space maker

Property Description

Move-in ready townhome, in one of the best locations in the Brant Hollow complex! NO backyard neighbors or tiny driveway! This bright, open 2-story has 9' ceilings and newer LVP throughout most of the main level and features...sunny 12'x17' living room with ceiling fan...adjacent dining area that opens to the fully fenced, shaded back patio...kitchen with ample freshly painted cabinets, coffee bar area, granite counters, glass backsplash tile, SS sink, new decorator light fixture, full wall pantry and all SS appliances including smooth top range...powder bath with pedestal sink...and entry closet with full under-stair storage. Walk upstairs to the cheery 2nd level, and you'll find the...5'x7' loft...12'x14' primary bedroom overlooking the serene trees and peek-a-boo Pikes Peak view beyond; arched entry to the ensuite 5-pc bath with shower with easy-care enclosure, garden tub, double vanity with granite counters, glass tile backsplash, upgraded mirror and new faucets; and 6'x10' walk-in closet...2nd bedroom with ceiling fan and full wall closet...spacious 3/4 hall bath, also with granite counters and glass tile backsplash...and laundry room with included W/D and storage shelf. Outside, you'll enjoy relaxing on the 7'x17' back patio, surrounded by mature trees...garage with overhead storage...and actually being able to park on the full size driveway. Easy access to Powers corridor, Peterson SFB and Shriever AFB. 40 gallon water heater, kitchen cabinets painted ('26); dishwasher, disposal ('25); main level LVP, furnace blower motor ('23), 2" window blinds throughout and 2 window AC units included too!

Property Listed By

Picture of REALTOR Listing Property
  • Jennifer Montoya
  • 7933-232-917  Call the Agent 
Picture of Office Listing Property
  • Coldwell Banker Realty
  • 0052-055-917  Call the Agent 
Jennifer Montoya is a Working By Referral, top producing broker associate with Coldwell Banker Realty. She serves the greater Colorado Springs area and beyond. She began her real estate practice with M&M Realty in 1993 and earned her broker’s license three years later. She became Vice President of the company in 2001. In 2005 M&M Realty sold to Coldwell Banker, and Jennifer’s been here ever since. Over 99% of Jennifer’s annual business is with repeat and referred buyer and seller clients. Av...

Property Details

    General Features

  • Property: Townhouse, 2 Story
  • Attached: Yes
  • Year Built: 2012
  • List Price: $310,000
  • County: El Paso
  • School District: Harrison-2

    Rooms

  • Master: Upper Level, 14 x 11
  • Bedrooms: 2
  • Baths: 1 full bath; 1 1/2 bath; 1 3/4 bath;
  • Master Bathroom Amenities: 5-Pc Bath, Ceramic Tile, Double Vanity
  • Laundry: Electric Hook-up, Upper

    Structure

  • Unit Description: Ground Floor, Inside Unit
  • Foundation: Slab
  • Heating: Forced Air, Natural Gas
  • Cooling: Ceiling Fan
  • Garage/Parking #: 1 vehicle(s), Attached
  • Garage Amenities: Even with Main Level, Garage Door Opener
  • Patio Description: Concrete
  • Total SqFt: 1,508
  • Finished SqFt: 1,508
  • Construction Status: Existing Home
  • Siding: Masonite Type
  • Structure: Framed on Lot, Frame

    Features

  • Appliances: Dishwasher, Disposal, Dryer, Microwave Oven, Range, Refrigerator, Self Cleaning Oven, Washer
  • Floors: Carpet, Vinyl/Linoleum
  • Entry: Closet, Covered, Vinyl/Linoleum
  • Additional Items: 40 gallon water heater, kitchen cabinets painted ('26); dishwasher, disposal ('25); main level LVP, furnace blower motor ('23). 2 window AC units included.
  • Interior Features: 5-Pc Bath, 6-Panel Doors, 9Ft + Ceilings
  • Laundry: Electric Hook-up, Upper

    Taxes, Utilities, Lot

  • Tax: $1,154
  • Lot Size: 0.03 Acres, 1,297 SqFt
  • Street Description: Private Road
  • Landscaped: All
  • Fence: Rear
  • Driveway: Concrete
  • Lot Description: Level, View of Pikes Peak
  • Restrictions: Architectural Control
  • Existing Utilities: Cable Available, Electricity Connected, Natural Gas Connected
  • Existing Water: Municipal

    Community

  • Covenants: Yes
  • HOA Dues: $170
  • HOA Frequency: Monthly
  • HOA Fee Includes: Covenant Enforcement, Insurance, Maintenance Grounds, Maintenance Structure, Snow Removal, Trash Removal
  • Pet Type: Bird, Cat, Dog, Fish

    Additional Information


      Disclaimer
      The real estate listing information and related content displayed on this site is provided exclusively for consumers’ personal, non-commercial use and may not be used for any purpose other than to identify prospective properties consumers may be interested in purchasing.
      PPAR.com Website

      806 Red Thistle View, Colorado Springs, CO, 80916

      Image 1 of 32: Front of Townhouse

      Front of Townhouse

      Image 2 of 32: Front of Townhouse.

      Front of Townhouse.

      Image 3 of 32: View of living room from kitchen.

      View of living room from kitchen.

      Image 4 of 32: Living Room

      Living Room

      Image 5 of 32: Dining Area

      Dining Area

      Image 6 of 32: Dining Area

      Dining Area

      Image 7 of 32: Patio

      Patio

      Image 8 of 32: Patio

      Patio

      Image 9 of 32: Living Room

      Living Room

      Image 10 of 32: Living Room

      Living Room

      Image 11 of 32: Living Room

      Living Room

      Image 12 of 32: Living Room

      Living Room

      Image 13 of 32: Kitchen

      Kitchen

      Image 14 of 32: Kitchen

      Kitchen

      Image 15 of 32: Kitchen

      Kitchen

      Image 16 of 32: Kitchen

      Kitchen

      Image 17 of 32: Main Level Powder Bath

      Main Level Powder Bath

      Image 18 of 32: View of Loft from 2nd Bedroom

      View of Loft from 2nd Bedroom

      Image 19 of 32: View of Loft from Primary Bedroom

      View of Loft from Primary Bedroom

      Image 20 of 32: Primary Bedroom

      Primary Bedroom

      Image 21 of 32: Primary Bedroom

      Primary Bedroom

      Image 22 of 32: Primary Bedroom

      Primary Bedroom

      Image 23 of 32: Primary Bedroom

      Primary Bedroom

      Image 24 of 32: Ensuite Primary Bathroom

      Ensuite Primary Bathroom

      Image 25 of 32: Ensuite Primary Bathroom and Walk-in Closet Beyond

      Ensuite Primary Bathroom and Walk-in Closet Beyond

      Image 26 of 32: 2nd Bedroom

      2nd Bedroom

      Image 27 of 32: 2nd Bedroom

      2nd Bedroom

      Image 28 of 32: Upper Level Hall Bath

      Upper Level Hall Bath

      Image 29 of 32: Upper Level Laundry

      Upper Level Laundry

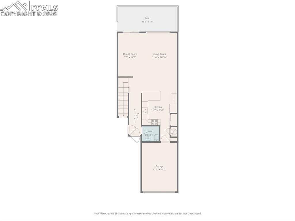
      Image 30 of 32: Floor Pan - Main level

      Floor Pan - Main level

      Image 31 of 32: Floor Plan - Upper level

      Floor Plan - Upper level

      Image 32 of 32: Floor Plan - all levels

      Floor Plan - all levels

      Disclaimer: The real estate listing information and related content displayed on this site is provided exclusively for consumers’ personal, non-commercial use and may not be used for any purpose other than to identify prospective properties consumers may be interested in purchasing.