3032 Ellesmere Drive, Colorado Springs, CO, 80922

Image Count: 47

$485,000

  • Highlights
  • Single Family
  • 5 bd | 3 ba | 2,812 sqft
  • 3032 Ellesmere Drive, Colorado Springs, CO, 80922 listed by Galen Becker NCREA
  • Under Contract - Showing
  • MLS#: 9158563
  • View on Map
Space maker

Property Description

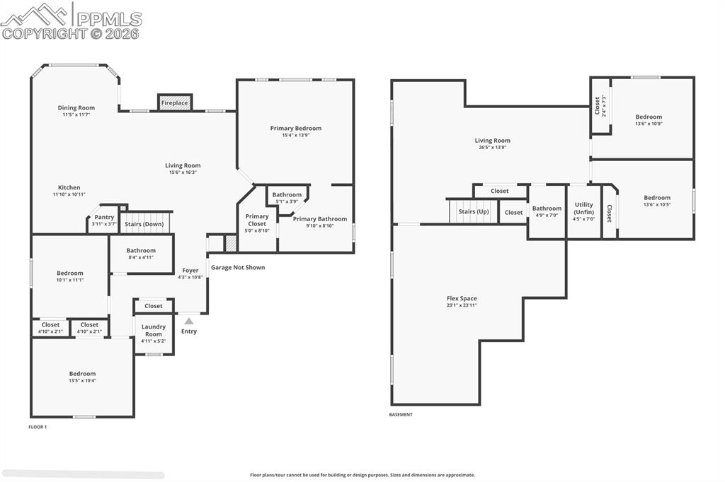
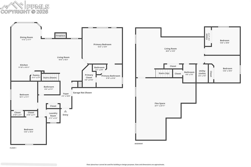
Welcome to this beautifully maintained, lovingly cared for by pet-free and child-free owners, fully furnished main floor, ranch-style home, designed for effortless main-level living. The open-concept layout features three bedrooms on the main floor, including a spacious primary suite with a luxurious five-piece bath and walk-in closet. The lower level offers two additional bedrooms and a massive unfinished space—ideal for a home gym, workshop, or custom recreation room. This second-owner home has updated appliances including dishwasher, water heater, washer, dryer, and fridge. In the warmer months, the xeriscaped front yard bursts into life with vibrant perennial flowers and hardy blooming shrubs. The spacious backyard offers minimal maintenance complete with a storage shed. Situated in a quiet neighborhood with no HOA, this home offers both freedom and convenience. The property is centrally located in the Powers Corridor, providing easy access to schools, shopping, restaurants, parks, gyms, entertainment, and Peterson SFB. The well-cared-for property combines space, comfort, and location—ready for you to move in and make it your own!

Property Listed By

Picture of REALTOR Listing Property
  • Galen Becker NCREA
  • 5601-726-917  Call the Agent 
Picture of Office Listing Property
  • LPT Realty LLC
  • 8231-445-577  Call the Agent 

Property Details

    General Features

  • Property: Single Family, Ranch
  • Year Built: 1999
  • List Price: $485,000
  • County: El Paso
  • School District: District 49

    Rooms

  • Master: Main Level, 14 x 15
  • Bedrooms: 5
  • Baths: 3 full bath;
  • Master Bathroom Amenities: 5-Pc Bath, Double Vanity, Free-standing Shower, Tub
  • Laundry: Electric Hook-up, Main

    Structure

  • Foundation: Full Basement
  • Heating: Forced Air, Natural Gas
  • Cooling: Ceiling Fan, Central Air
  • Garage/Parking #: 2 vehicle(s), Attached
  • Garage Amenities: Garage Door Opener
  • Total SqFt: 2,812
  • Finished SqFt: 2,686
  • Basement SqFt: 1,396
  • Basement % Fin: 91
  • Construction Status: Existing Home
  • Siding: Wood
  • Structure: Framed on Lot, Frame

    Features

  • Appliances: 220v in Kitchen, Dishwasher, Disposal, Dryer, Microwave Oven, Range, Refrigerator, Washer
  • Floors: Carpet, Vinyl/Linoleum, Wood Laminate
  • Entry: Wood Laminate
  • Fireplace: Gas, Main Level, One
  • Additional Items: All current furniture included, TVs, TV mounts
  • Interior Features: 5-Pc Bath, 9Ft + Ceilings
  • Laundry: Electric Hook-up, Main

    Taxes, Utilities, Lot

  • Tax: $2,091
  • Lot Size: 0.17 Acres, 7,410 SqFt
  • Landscaped: All
  • Fence: Rear
  • Driveway: Concrete
  • Lot Location: Near Fire Station, Near Schools
  • Lot Description: Level
  • Existing Utilities: Electricity Connected, Natural Gas Connected
  • Existing Water: Municipal

    Community

    Additional Information


      Disclaimer
      The real estate listing information and related content displayed on this site is provided exclusively for consumers’ personal, non-commercial use and may not be used for any purpose other than to identify prospective properties consumers may be interested in purchasing.
      PPAR.com Website

      3032 Ellesmere Drive, Colorado Springs, CO, 80922

      Image 1 of 47: Front of Structure

      Front of Structure

      Image 2 of 47: Front of Structure

      Front of Structure

      Image 3 of 47: Front of Structure

      Front of Structure

      Image 4 of 47: Living Room

      Living Room

      Image 5 of 47: Living Room

      Living Room

      Image 6 of 47: Living Room

      Living Room

      Image 7 of 47: Living Room

      Living Room

      Image 8 of 47: Living Room

      Living Room

      Image 9 of 47: Kitchen

      Kitchen

      Image 10 of 47: Dining Area

      Dining Area

      Image 11 of 47: Kitchen

      Kitchen

      Image 12 of 47: Kitchen

      Kitchen

      Image 13 of 47: Kitchen

      Kitchen

      Image 14 of 47: Kitchen

      Kitchen

      Image 15 of 47: Dining Area

      Dining Area

      Image 16 of 47: Bedroom

      Bedroom

      Image 17 of 47: Bedroom

      Bedroom

      Image 18 of 47: Bedroom

      Bedroom

      Image 19 of 47: Bathroom

      Bathroom

      Image 20 of 47: Bathroom

      Bathroom

      Image 21 of 47: Bathroom

      Bathroom

      Image 22 of 47: Bathroom

      Bathroom

      Image 23 of 47: Bathroom

      Bathroom

      Image 24 of 47: Bedroom

      Bedroom

      Image 25 of 47: Bedroom

      Bedroom

      Image 26 of 47: Bathroom

      Bathroom

      Image 27 of 47: Laundry

      Laundry

      Image 28 of 47: Other

      Other

      Image 29 of 47: Exercise Room

      Exercise Room

      Image 30 of 47: Living Room

      Living Room

      Image 31 of 47: Basement

      Basement

      Image 32 of 47: Sitting Room

      Sitting Room

      Image 33 of 47: Bathroom

      Bathroom

      Image 34 of 47: Back of Structure

      Back of Structure

      Image 35 of 47: Front of Structure

      Front of Structure

      Image 36 of 47: Back of Structure

      Back of Structure

      Image 37 of 47: Yard

      Yard

      Image 38 of 47: Front of Structure

      Front of Structure

      Image 39 of 47: Front of Structure

      Front of Structure

      Image 40 of 47: Front of Structure

      Front of Structure

      Image 41 of 47: Aerial View

      Aerial View

      Image 42 of 47: Aerial View

      Aerial View

      Image 43 of 47: Aerial View

      Aerial View

      Image 44 of 47: Aerial View

      Aerial View

      Image 45 of 47: Floor Plan

      Floor Plan

      Image 46 of 47: Floor Plan

      Floor Plan

      Image 47 of 47: Floor Plan

      Floor Plan

      Disclaimer: The real estate listing information and related content displayed on this site is provided exclusively for consumers’ personal, non-commercial use and may not be used for any purpose other than to identify prospective properties consumers may be interested in purchasing.