1033 Dancing Horse Drive, Colorado Springs, CO, 80919

Image Count: 34

$525,000

  • Highlights
  • Single Family
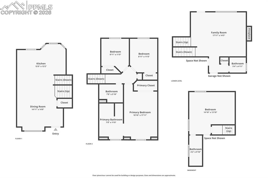
  • 3 bd | 4 ba | 1,903 sqft
  • 1033 Dancing Horse Drive, Colorado Springs, CO, 80919 listed by Dan Culbertson
  • Under Contract - Showing
  • MLS#: 3372951
  • Tour #1
  • View on Map
Space maker

Property Description

Welcome home to this beautifully updated property in the highly desirable Northwest Colorado Springs area near the foothills of the mountains. Offering 4 bedrooms and 4 bathrooms, this home has been completely renovated and thoughtfully maintained with major improvements. Recent upgrades include a Class 4 impact-resistant roof (2025), new exterior paint (2024), and new bedroom carpet (2025). The home was fully renovated in 2017 and features acacia engineered hardwood flooring throughout, granite kitchen countertops, and soft-close cabinetry in both the kitchen and bathrooms. The kitchen is equipped with a countertop gas induction range and stainless steel appliances, including refrigerator, dishwasher, oven, and microwave—perfect for everyday living and entertaining. Additional features include vinyl double-pane windows, a cozy gas fireplace, and stylish plantation shutters in the primary bedroom and en-suite, family room, and front window, with wide blinds on the remaining windows. The partial basement provides excellent flexibility with a full bathroom, storage room, and a flex space currently set up as a bedroom. Outside, enjoy a private zeroscaped backyard with a newer fence featuring hidden metal posts for durability and low maintenance. The HOA covers front yard lawn care (mowing, raking, watering, aeration) as well as snow removal and trash service, making exterior upkeep easy and predictable. Located in the highly regarded Academy School District 20, this home offers easy access to I-25, the Air Force Academy, and nearby hiking and biking trails, combining convenience with Colorado’s outdoor lifestyle. This extensively updated home in a prime northwest location offers comfort, style, and peace of mind—don’t miss your opportunity to make it yours.

Property Listed By

Picture of REALTOR Listing Property
  • Dan Culbertson
  • 3466-066-917  Call the Agent 
Picture of Office Listing Property
  • Keller Williams Partners
  • 9991-559-917  Call the Agent 

Property Details

    General Features

  • Property: Single Family, 4-Levels
  • Year Built: 1993
  • List Price: $525,000
  • County: El Paso
  • School District: Academy-20

    Rooms

  • Master: Upper Level, 11 x 14
  • Bedrooms: 3
  • Baths: 3 full bath; 1 1/2 bath;
  • Master Bathroom Amenities: Double Vanity, Free-standing Shower
  • Laundry: Electric Hook-up, Lower

    Structure

  • Foundation: Partial Basement
  • Heating: Forced Air, Natural Gas
  • Cooling: Central Air
  • Garage/Parking #: 2 vehicle(s), Attached
  • Total SqFt: 1,903
  • Finished SqFt: 1,801
  • Basement SqFt: 408
  • Basement % Fin: 75
  • Construction Status: Existing Home
  • Siding: Wood
  • Structure: Framed on Lot

    Features

  • Appliances: 220v in Kitchen, Dishwasher, Dryer, Oven, Range, Refrigerator, Washer
  • Floors: Carpet, Tile, Wood
  • Fireplace: Gas, Lower Level
  • Laundry: Electric Hook-up, Lower

    Taxes, Utilities, Lot

  • Tax: $1,830
  • Lot Size: 0.15 Acres, 6,334 SqFt
  • Fence: Rear
  • Lot Description: Corner, Level
  • Existing Utilities: Cable Available, Electricity Connected, Natural Gas Connected
  • Existing Water: Municipal

    Community

  • Covenants: Yes
  • HOA Dues: $130
  • HOA Frequency: Monthly
  • HOA Fee Includes: Lawn, Management, Snow Removal, Trash Removal

    Additional Information


      Disclaimer
      The real estate listing information and related content displayed on this site is provided exclusively for consumers’ personal, non-commercial use and may not be used for any purpose other than to identify prospective properties consumers may be interested in purchasing.
      PPAR.com Website

      1033 Dancing Horse Drive, Colorado Springs, CO, 80919

      Image 1 of 34: Front of Structure

      Front of Structure

      Image 2 of 34: Kitchen

      Kitchen

      Image 3 of 34: Dining Area

      Dining Area

      Image 4 of 34: Dining Area

      Dining Area

      Image 5 of 34: Kitchen

      Kitchen

      Image 6 of 34: Dining Area

      Dining Area

      Image 7 of 34: Kitchen

      Kitchen

      Image 8 of 34: Kitchen

      Kitchen

      Image 9 of 34: Kitchen

      Kitchen

      Image 10 of 34: Dining Area

      Dining Area

      Image 11 of 34: Dining Area

      Dining Area

      Image 12 of 34: Other

      Other

      Image 13 of 34: Bathroom

      Bathroom

      Image 14 of 34: Bedroom

      Bedroom

      Image 15 of 34: Bedroom

      Bedroom

      Image 16 of 34: Bathroom

      Bathroom

      Image 17 of 34: Bathroom

      Bathroom

      Image 18 of 34: Bedroom

      Bedroom

      Image 19 of 34: Office

      Office

      Image 20 of 34: Office

      Office

      Image 21 of 34: Bedroom

      Bedroom

      Image 22 of 34: Bedroom

      Bedroom

      Image 23 of 34: Living Room

      Living Room

      Image 24 of 34: Bathroom

      Bathroom

      Image 25 of 34: Living Room

      Living Room

      Image 26 of 34: Living Room

      Living Room

      Image 27 of 34: Bedroom

      Bedroom

      Image 28 of 34: Bedroom

      Bedroom

      Image 29 of 34: Bathroom

      Bathroom

      Image 30 of 34: Patio

      Patio

      Image 31 of 34: Yard

      Yard

      Image 32 of 34: Yard

      Yard

      Image 33 of 34: Patio

      Patio

      Image 34 of 34: Floor Plan

      Floor Plan

      Disclaimer: The real estate listing information and related content displayed on this site is provided exclusively for consumers’ personal, non-commercial use and may not be used for any purpose other than to identify prospective properties consumers may be interested in purchasing.