3725 Saints Court, Colorado Springs, CO, 80904

Twilight enhanced shot of front of home looking southwest with the Front Range in the background.

Twilight enhanced rear shot of home looking east with a view of Garden of the Gods.

Northeast view from top deck off main floor/living room.

Southeast view from top deck.

Front of home with the Front Range and Pike's Peak in the background.

Southwest view of rear patio. Stone wall and brick patio. Rear top deck visible.

Full view of main floor, living room, dining room.

Main view of open kitchen.

View of family room from kitchen.

Fireplace in family room open to kitchen.

Upstairs office/extra space overlooks main floor. Double doors lead to read top deck overlooking front range.

Northwest view from rear top deck off of upstairs office/extra space. Views of Pikes Peak and red rocks.

Upstairs office/extra space. Overlooks main floor. Skylight views of red rocks.

Master Bathroom leading to office/extra space in background.

Full master bathroom.

Master Bathroom leading to master bedroom in backrground.

Master bedroom with a view of window and red rocks outside. Skylights off to the right with views of the red rocks.

Master bedroom with bathroom and office/extra space in the background. Skylights with view of Garden of the Gods.

Master bedroom view overlooking main floor living room with a view of Garden of the Gods through skylights.

Lower floor bedroom.

Lower floor recreation room.

Sitting area within living room.

Bar & wet bar with built in kegerator system.

Reverse view of bar & wet bar with built in kegerator system.

Bathroom on the bottom floor of home, just across from the 2nd bedroom.

Workshop wing in the garage.

Floor plan of the bottom floor.

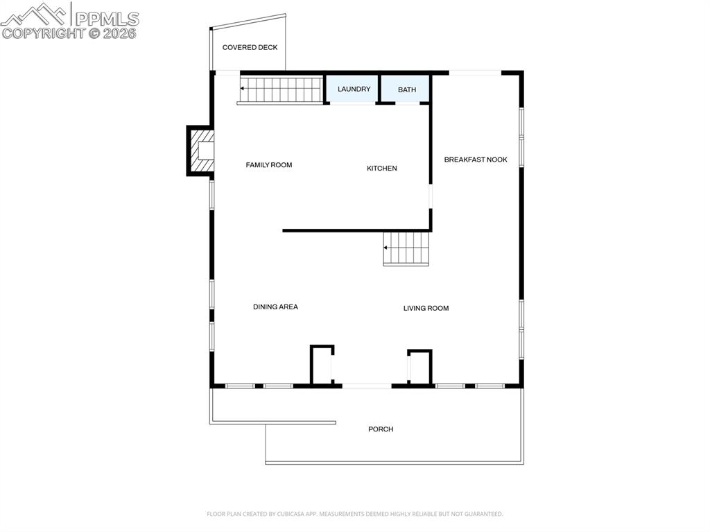
Floor plan of the main/living room floor.

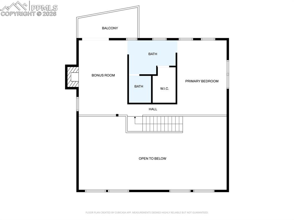
Floor plan of the upper floor bedroom and office/extra space.

View of Garden of the Gods and surrounding areas with the entrire property in the bottom hand center of photo.

Far shot of property and driveway with Front Range and Pike's Peak in the background and surrounding red rocks.

Twilight enhanced rear shot of home looking east with a view of Garden of the Gods.
Disclaimer: The real estate listing information and related content displayed on this site is provided exclusively for consumers’ personal, non-commercial use and may not be used for any purpose other than to identify prospective properties consumers may be interested in purchasing.