4031 Gray Fox Heights, Colorado Springs, CO, 80922

Front of Structure

Front of Structure

Large, open living room and entry with vaulted ceilings

Living room with wood laminate floors and great natural light

Off the entry/living room in the laundry room and hall to the bedrooms

Laundry room with electric hookups and a door to the 2 car garage

Open kitchen with vauled ceilings and walkout access

Great counter and cabinet space

Plenty of room for an eat-in dining space

Master bedroom at the end of the hall with adjoing bathroom

Master bedroom with a large window

Master bathroom with vanity and tub/shower combo

2nd bedroom

2nd bedroom

3rd bedroom

3rd bedroom

Hall bath

Hall bath with tub/shower combo

Large 2 car garage with built-in shelving

Back of the home with a wood deck to enjoy the outdoor space

Northeast corner of the home and lot

Great single level living, move-in ready home in a quiet community

Front of Structure

Community

Community

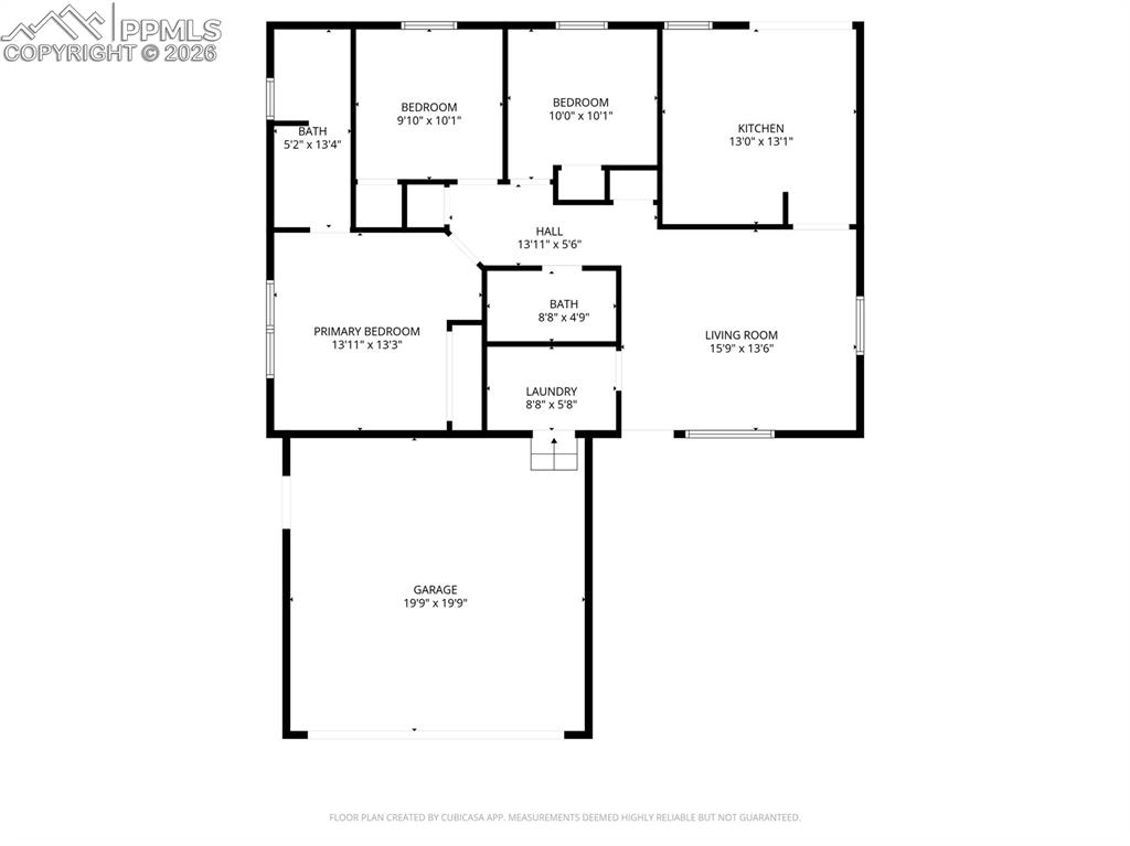
Main Level Floor Plan
Disclaimer: The real estate listing information and related content displayed on this site is provided exclusively for consumers’ personal, non-commercial use and may not be used for any purpose other than to identify prospective properties consumers may be interested in purchasing.