77 E Dante Lane, Pueblo, CO, 81007

Set at the end of a cul-de-sac, this newly constructed home enjoys a private lot with expansive open space behind and multiple outdoor living areas including front and side decks.

A generous covered wood deck spans the front of the home, offering shade, privacy, and a peaceful setting that backs to open space.

This additional living zone features natural light, neutral finishes, and an adaptable layout that can suit a variety of needs.

Virtually Staged A second living space offers flexibility for a media room, lounge, or home office setup, with modern lighting and a view into the heart of the home.

Wide plank floors and a bright, neutral palette enhance the sense of space in this open-concept living and kitchen area.

Virtually Staged This inviting living space connects beautifully to the kitchen, creating an open and functional layout that supports both everyday living and entertaining.

Clean lines and expansive floors define this versatile living space, offering ample room for various furniture layouts and direct outdoor access.

Virtually Staged A spacious and sunlit living area with large windows, modern ceiling fan, and seamless access to the backyard through sliding glass doors—ideal for gathering or relaxing.

Natural light fills the kitchen and dining area, highlighting the warm wood floors, sleek finishes, and functional layout that flows effortlessly to the outdoor deck.

Virtually This bright, open-concept kitchen and dining space features crisp white cabinetry, stainless steel appliances, and a center island with bar seating. A sliding glass door leads directly to the back deck, perfect for indoor-outdoor dining.

This bright, open-concept kitchen and dining space features crisp white cabinetry, stainless steel appliances, and a center island with bar seating. A sliding glass door leads directly to the back deck, perfect for indoor-outdoor dining.

Virtually Staged Enjoy meals by the sliding glass door in this light-filled dining area, which opens into a second living space perfect for lounging or play.

Capture the sunrise from the side deck off dining room, where open views create a peaceful setting for outdoor enjoyment.

Beautiful countertops, sleek white cabinetry, and a full suite of stainless appliances make this kitchen both stylish and practical.

Stretching along the side wall, this kitchen offers generous counter space, contemporary tile backsplash, and easy flow for cooking and entertaining.

This spacious kitchen highlights the functionality of extended countertop space, paired with bar seating, sleek white cabinetry, and stainless steel appliances for a clean, modern finish.

A closer look at the kitchen reveals a Whirlpool gas range, built-in microwave, and large sink beneath a picture window offering natural light.

This crisp white kitchen includes ample cabinet storage, stainless steel fridge, and access to the back deck—combining style with convenience.

A functional layout featuring a central island with bar seating, stainless steel appliances, and panoramic flow into surrounding living zones—ideal for entertaining or family gatherings.

The open-concept design provides clear sightlines from the kitchen into both front and rear living spaces, creating a bright and unified main living area.

Wide plank floors and abundant sunlight define this spacious layout, where the living area flows seamlessly into the modern kitchen with a central island.

Virtually Staged This flexible main room showcases potential for multiple seating zones with direct views into the kitchen and dining areas.

Enjoy the ease of a wide-open layout with contemporary lighting and durable flooring throughout the main living spaces.

Virtually Staged This versatile great room connects effortlessly to the kitchen and dining areas, creating a cohesive flow for everyday life.

Open and flexible, this front living space offers great natural light and entryway access.

Virtually Staged A welcoming front living room complete with large windows, ceiling fan, and space for media cabinet—perfect for relaxing or entertaining.

This serene bedroom retreat features soft-toned flooring, a neutral palette, and an ensuite bath access.

Virtually Staged A bright and airy primary suite with large window, ceiling fan, and ample space for a king bed and additional furniture.

Featuring a 5-piece design, this spacious bath includes a dual-sink vanity, large soaking tub, and separate shower for added functionality.

A sleek glass-enclosed shower with modern tile surround complements the built-in linen storage and clean white finishes.

The primary bath offers a spa-like retreat with a deep soaking tub, double vanity, and a large frosted window for natural light and privacy.

Blank canvas bedroom 2 with wood-look flooring and generous closet space.

Virtually Staged Spacious third bedroom with large closet and staged for comfort with sunny, playful accents.

A clean, neutral space ready to accommodate a guest room, nursery, or office.

Virtually Staged Bright and cheerful, this 3rd bedroom is styled for versatility with space for sleeping, studying, or play.

Crisp and clean with a full-size tub/shower combo, vanity with storage, and beautiful -style countertop.

Convenient side entry with washer/dryer hookups, storage shelving, and easy access to the rest of the home.

Situated at the end of a cul-de-sac, this new home features a welcoming covered front porch and plenty of space for parking and future landscaping.

The covered deck provides a shaded, private space ideal for relaxing or entertaining.

Virtually Staged This expansive covered porch offers ample room for dining and lounging, perfect for enjoying outdoor living year-round.

Unfurnished view of the covered back patio, offering open sightlines to the expansive lot and surrounding neighborhood.

Virtually Staged Enjoy outdoor living year-round on this spacious covered patio, featuring tile-look flooring, recessed lighting, and ample space for both dining and lounging.

A small wooden side deck off the sliding glass doors provides a perfect spot for morning coffee or a quiet moment outdoors.

Large sideyard with open views and multiple entry points, offering a clean slate for creating your dream outdoor retreat.

A full side view of the home’s rear showcases the red siding, two outdoor decks, and generous lot size with endless potential.

The rear of the home includes a simple back entry with steps and a modest landing, overlooking a wide open lot ready for personalization.

Located at the back of a culdesac and backs up to a lot of open space pueblo west metro district.

Front door porch located in fenced area

A private fenced back yard enclosed by a modern horizontal wood fence, offering a blank canvas for future landscaping or garden space.

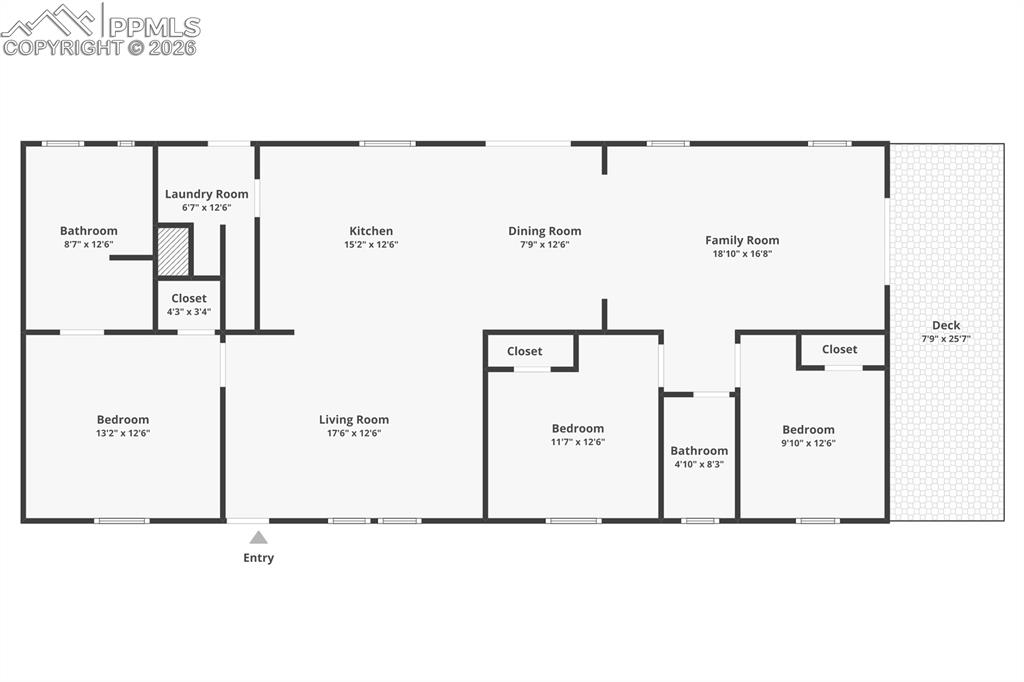
Floor Plan
Disclaimer: The real estate listing information and related content displayed on this site is provided exclusively for consumers’ personal, non-commercial use and may not be used for any purpose other than to identify prospective properties consumers may be interested in purchasing.