9334 Kathi Creek Drive, Colorado Springs, CO, 80924

Aerial View

Aerial View

Back of Structure

Aerial View

Aerial View

Aerial View

Aerial View

Aerial View

Aerial View

Aerial View

Entry

Living Room

Living Room

Main L3el with view to the gas fireplace.

Kitchen

Kitchen

Kitchen

Kitchen

With east windows and door to upper deck.

Looking to kitchen.

Bathroom

Bathroom

Bathroom

Currently used as a grandchildren's playroom.

Reflecting the builtins, currently being utilized as a grandchildrens playroom.

Laundry

Mud Room

Bedroom

Showing the recessed ceiling and barn door onsuite

Leading to the walkout basement.

Living Room

Other

Bar

Bathroom

Living Room

Living Room

Large bedrooms, currently utilized as a home office.

Back of Structure

Bedroom

Deck

Deck

View from rear deck.

Patio

Yard

View

Pool

Playground

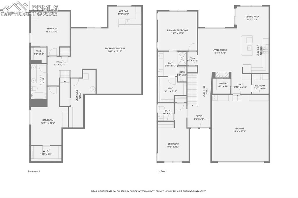
Floor Plan
Disclaimer: The real estate listing information and related content displayed on this site is provided exclusively for consumers’ personal, non-commercial use and may not be used for any purpose other than to identify prospective properties consumers may be interested in purchasing.