864 S Kline Drive, Pueblo West, CO, 81007

Front of Structure

Covered front porch

Front of Structure

Standing at entryway

Facing entryway from kitchen

Kitchen

Garage entry to the left

facing backyard entry and basement staircase

Oversized with backyard access

Backyard access left, kitchen access right door

Main level bedroom 3

Main level bedroom 3

Main level bedroom 2

Main level bedroom 2

Main level bathroom

Main level bathroom

Master Bedroom

Master Bedroom

Basement family room

Basement family room

Basement bathroom

Basement bedroom 1

Basement bedroom 1

Laundry and utility

Basement bedroom 2

Basement bedroom 2

Shed, covered patio

Large concrete covered patio

Wide side gate provides access to driveway

Yard

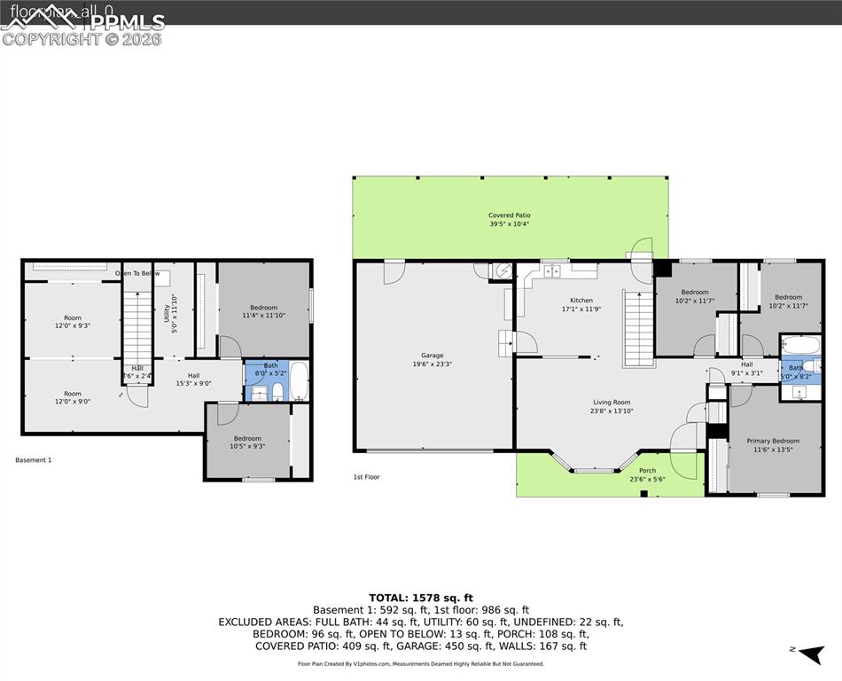
Main level

Basement

Both
Disclaimer: The real estate listing information and related content displayed on this site is provided exclusively for consumers’ personal, non-commercial use and may not be used for any purpose other than to identify prospective properties consumers may be interested in purchasing.