4759 Vista View Court, Colorado Springs, CO, 80915

This well-maintained home is in a quiet cul-de-sac yet so close to city amenities.

The ranch plan offers plenty of parking options with a long drive and roomy garage.

Enter to a foyer that offers a peek at the classic elegance of this home.

Virtually staged. The front room is a more formal receiving area for guests with a dining nook.

The formal dining nook can be as big or small as you want, this room is very open and flexible.

Virtually Staged. A huge open space with roomy kitchen and cozy living room are just off the entry.

Add eat-in dining to either side of the huge living room space.

With fireplace and walk-out to the huge deck, feel like you are part of nature.

Family Room

Walk out to this enormous deck looking over the backyard.

Deck

Deck

When you walk in, you'll yell "cool kitchen." Because it is.

Tons of counter space and breakast bar capability.

Kitchen

Kitchen

Kitchen

Laundery is on the main with laundry sink.

Virtually Staged. On one side of the main level is the primary suite.

This is a throwback to the large primary bedrooms of the past.

This one walks out to the deck.

Ensuite bathroom.

There are two secondary bedrooms also on the main level.

Bedroom

These secondary bedrooms share a full bath off the hall.

Bedroom

Bedroom

Bedroom

Bedroom

This is the downstairs bath with attached bathroom.

Bedroom

Office

Office

Virtually staged. Downstairs is another fireplace, a large living area and a sunken bar.

Family Room

Family Room

Family Room

Family Room

Family Room

Storage

Basement

Back of Structure

Patio

Yard

Back of Structure

Yard

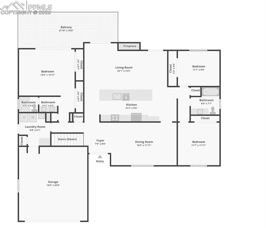
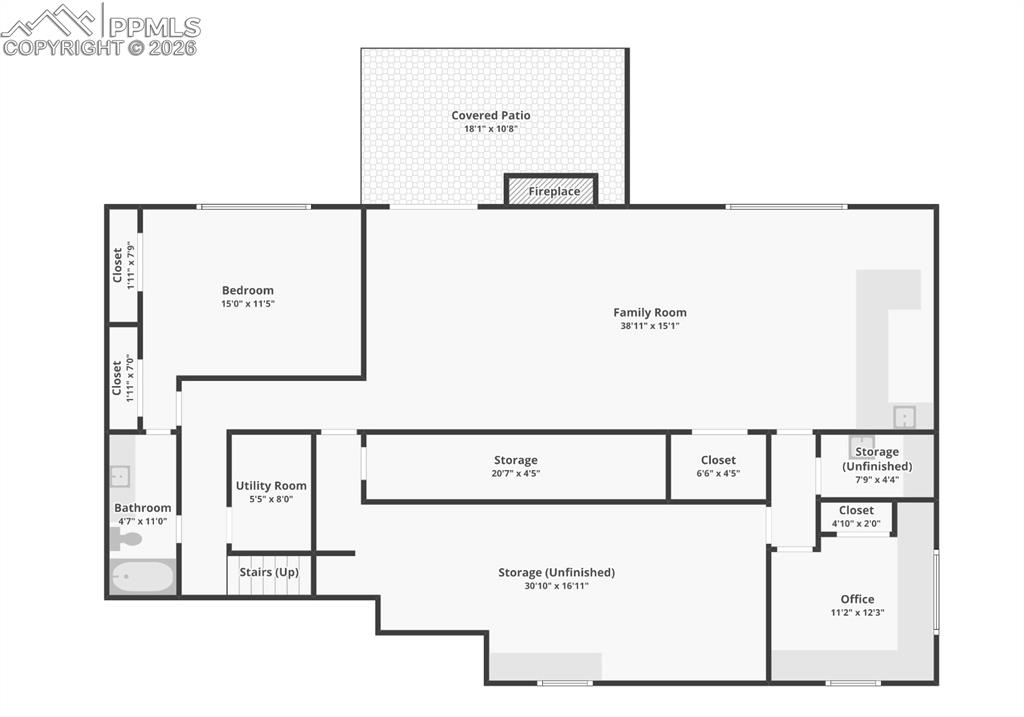
Floor Plan

Floor Plan
Disclaimer: The real estate listing information and related content displayed on this site is provided exclusively for consumers’ personal, non-commercial use and may not be used for any purpose other than to identify prospective properties consumers may be interested in purchasing.