12988 Cupcake Heights, Colorado Springs, CO, 80921

Image Count: 39

$599,900

  • Highlights
  • Townhouse
  • 4 bd | 3 ba | 2,730 sqft
  • 12988 Cupcake Heights, Colorado Springs, CO, 80921 listed by Freddi Walls ABR CRS GRI MRP RENE
  • Active
  • MLS#: 6660355
  • View on Map
Space maker

Property Description

Discover the ease and comfort of main level living in this beautifully maintained patio home, perfectly positioned within the highly sought-after Flying Horse community. Designed with both style and livability in mind, the home offers an inviting layout that feels warm, open, and effortlessly functional. The kitchen is a true gathering space with rich cabinetry, granite countertops, stainless steel appliances, and a generous island that flows seamlessly into the living area. Hardwood floors, soft natural light, and a stunning stone-accented fireplace create an atmosphere that feels refined yet relaxed. The primary suite is a calm retreat, featuring dual vanities, a frameless glass shower, and a spacious walk-in closet. A second bedroom on the main level provides flexibility for guests, a home office, or hobby space. The finished lower level adds even more room to spread out, offering a cozy family room anchored by a second fireplace, two additional bedrooms, a full bath, and abundant storage, perfect for hosting, movie nights, or simply unwinding. Step outside to the covered patio, complete with remote-controlled shades, and take in beautiful views of Pikes Peak. Whether starting your day with coffee or winding down at sunset, this outdoor space invites you to slow down and enjoy the moment. Located in the heart of Flying Horse and just minutes from I-25, the Air Force Academy, and the new King Soopers Marketplace, this home offers convenient access to dining, shopping, and local favorites while maintaining a peaceful, resort-style atmosphere. The HOA provides exterior maintenance and landscaping, making this a true lock-and-leave lifestyle. Flying Horse living offers access to golf, dining, fitness, pools, spa services, tennis, and miles of trails within one of Colorado Springs’ most desirable country club communities. Club memberships are available separately through The Club at Flying Horse, allowing you to enjoy the amenities at your own pace.

Property Listed By

Picture of REALTOR Listing Property
  • Freddi Walls ABR CRS GRI MRP RENE
  • 8391-012-917  Call the Agent 
Picture of Office Listing Property
  • The Cutting Edge
  • 7605-999-917  Call the Agent 

Property Details

    General Features

  • Property: Townhouse, Ranch
  • Attached: Yes
  • Year Built: 2015
  • List Price: $599,900
  • County: El Paso
  • School District: Academy-20

    Rooms

  • Master: Main Level, 12 x 16
  • Bedrooms: 4
  • Baths: 1 full bath; 1 1/2 bath; 1 3/4 bath;
  • Master Bathroom Amenities: Ceramic Tile, Double Vanity, Free-standing Shower
  • Laundry: Electric Hook-up, Main

    Structure

  • Unit Description: End Unit, Ground Floor
  • Foundation: Full Basement
  • Heating: Forced Air
  • Cooling: Ceiling Fan, Central Air
  • Garage/Parking #: 2 vehicle(s), Attached
  • Garage Amenities: Garage Door Opener
  • Patio Description: Concrete, Covered
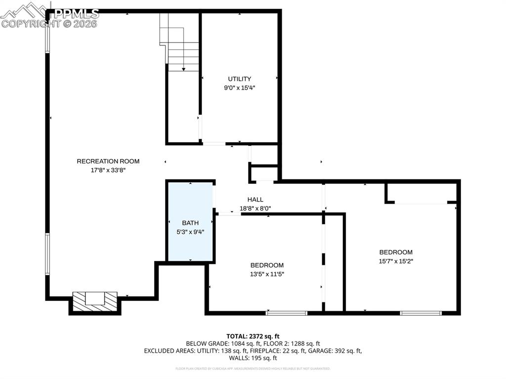
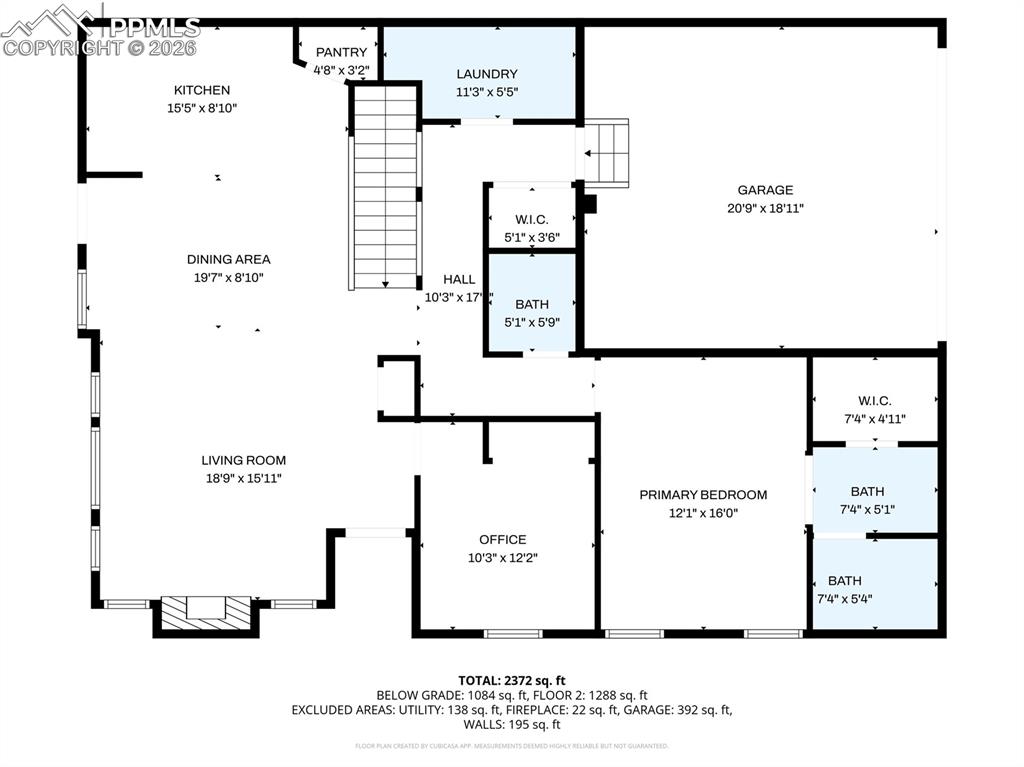
  • Total SqFt: 2,730
  • Finished SqFt: 2,553
  • Basement SqFt: 1,360
  • Basement % Fin: 87
  • Construction Status: Existing Home
  • Siding: Stone, Stucco
  • Structure: Frame

    Features

  • Appliances: 220v in Kitchen, Dishwasher, Disposal, Dryer, Microwave Oven, Range, Self Cleaning Oven, Washer
  • Floors: Carpet, Ceramic Tile, Wood
  • Entry: Natural Wood
  • Fireplace: Basement, Gas, Main Level, Two
  • Laundry: Electric Hook-up, Main

    Taxes, Utilities, Lot

  • Tax: $3,400
  • Lot Size: 0.10 Acres, 4,320 SqFt
  • Street Description: City/Town Road
  • Driveway: Concrete
  • Lot Location: Hiking Trail, Near Fire Station, Near Park, Near Schools, Near Shopping Center
  • Lot Description: Level, Mountain View, View of Pikes Peak
  • Existing Utilities: Cable Available, Electricity Connected, Natural Gas Connected
  • Existing Water: Municipal

    Community

  • Covenants: Yes
  • HOA Dues: $785
  • HOA Frequency: Quarterly
  • HOA Fee Includes: Common Utilities, Covenant Enforcement, Lawn, Maintenance Grounds, Maintenance Structure, Management, Snow Removal, Trash Removal
  • Commmunity Features: Club House, Community Center, Dining, Fitness Center, Golf Course, Hiking or Biking Trails, Hotel/Resort, Parks or Open Space, Playground Area, Pool, Spa, Tennis

    Additional Information


      Disclaimer
      The real estate listing information and related content displayed on this site is provided exclusively for consumers’ personal, non-commercial use and may not be used for any purpose other than to identify prospective properties consumers may be interested in purchasing.
      PPAR.com Website

      12988 Cupcake Heights, Colorado Springs, CO, 80921

      Image 1 of 39: Front of Structure

      Front of Structure

      Image 2 of 39: Front of Structure

      Front of Structure

      Image 3 of 39: Patio

      Patio

      Image 4 of 39: Fall view

      Fall view

      Image 5 of 39: Living Room

      Living Room

      Image 6 of 39: Living Room

      Living Room

      Image 7 of 39: Living Room

      Living Room

      Image 8 of 39: Dining Area

      Dining Area

      Image 9 of 39: Kitchen

      Kitchen

      Image 10 of 39: Kitchen

      Kitchen

      Image 11 of 39: Kitchen

      Kitchen

      Image 12 of 39: Kitchen

      Kitchen

      Image 13 of 39: Kitchen

      Kitchen

      Image 14 of 39: Master Bedroom

      Master Bedroom

      Image 15 of 39: Master Bedroom

      Master Bedroom

      Image 16 of 39: Master Bedroom

      Master Bedroom

      Image 17 of 39: Master Bathroom

      Master Bathroom

      Image 18 of 39: Master Bathroom

      Master Bathroom

      Image 19 of 39: Main level office or bedroom

      Main level office or bedroom

      Image 20 of 39: Bathroom

      Bathroom

      Image 21 of 39: Family Room

      Family Room

      Image 22 of 39: Family Room

      Family Room

      Image 23 of 39: Family Room

      Family Room

      Image 24 of 39: Family Room

      Family Room

      Image 25 of 39: Family Room

      Family Room

      Image 26 of 39: Family Room

      Family Room

      Image 27 of 39: Lower Level Bedroom

      Lower Level Bedroom

      Image 28 of 39: Lower Level Bedroom

      Lower Level Bedroom

      Image 29 of 39: Lower Level Bedroom

      Lower Level Bedroom

      Image 30 of 39: Lower Level Bathroom

      Lower Level Bathroom

      Image 31 of 39: Aerial View

      Aerial View

      Image 32 of 39: Aerial View

      Aerial View

      Image 33 of 39: Aerial View

      Aerial View

      Image 34 of 39: Other

      Other

      Image 35 of 39: Side of Structure

      Side of Structure

      Image 36 of 39: Fall View

      Fall View

      Image 37 of 39: Floor Plan

      Floor Plan

      Image 38 of 39: Floor Plan

      Floor Plan

      Image 39 of 39: Floor Plan

      Floor Plan

      Disclaimer: The real estate listing information and related content displayed on this site is provided exclusively for consumers’ personal, non-commercial use and may not be used for any purpose other than to identify prospective properties consumers may be interested in purchasing.