3715 Camel Grove, Colorado Springs, CO, 80904

Image Count: 50

$1,695,000

  • Highlights
  • Single Family
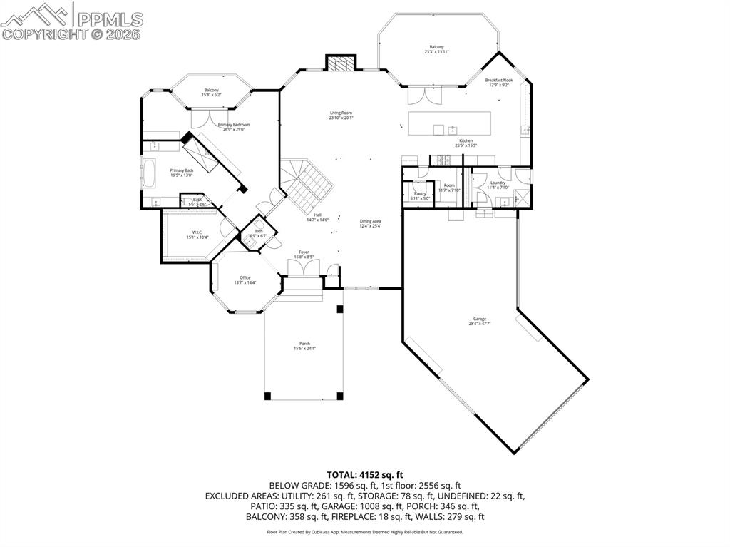
  • 3 bd | 4 ba | 4,742 sqft
  • 3715 Camel Grove, Colorado Springs, CO, 80904 listed by Kevin Patterson CRS GRI RSPS SFR
  • Active
  • MLS#: 2311938
  • Tour #1
  • View on Map
Space maker

Property Description

Totally remodeled with all the latest features this home is ready to Welcome you home. The property is set on a quiet cul de sac street, providing a secluded retreat like setting from the time you enter the custom entry door you know your in a special home.. The home features hardwood floors, a main level office/study, an expansive master/primary bedroom with sitting area, walkout to deck, stand alone master bath with double shower heads, hand wand, glass surrounds and custom subway tile. There is a double vanity with large lighted mirrors, separate cabinets spaces flanking the standalone custom tub with large picture window allowing in natural light. There is a separate makeup desk with quartzite counter. Oversize walk-in closet with custom cabinetry to enhance storage options. The office/study allows for true "work from home" with extra cabinets, built-in desk with tech space, bookshelves, printer shelf, hardwood floors, multiple windows with views offering an inviting work environment. The Great Room is expansive with multiple seating options , space for piano, vaulted soaring ceilings, lots of natural light. The dining room is partially secluded but allows for formal or casual dining options. The chefs kitchen features 2 dishwashers, massive center island, gas range with dual fuel ovens, hood, warming drawer, butlers pantry, built-ins, drop in desk, separate kitchen informal dining, walkouts from multiple areas and easy access to laundry, mud room with dog bath and oversize garages. Descending to the lower level you have walkout to private patio, lawn with room for pets, kids or entertaining, family room with built-ins, fireplace, wet bar, powder room , multiple storage areas and 2 more bedrooms with baths. There is much more to explore in this beautiful Kissing Camels golf course residence.

Property Listed By

Picture of REALTOR Listing Property
  • Kevin Patterson CRS GRI RSPS SFR
  • 0021-575-917  Call the Agent 
Picture of Office Listing Property
  • The Patterson Group
  • 0021-575-917  Call the Agent 

Property Details

    General Features

  • Property: Single Family, Ranch
  • Year Built: 1999
  • List Price: $1,695,000
  • County: El Paso
  • School District: Colorado Springs 11

    Rooms

  • Master: Main Level, 13 x 16
  • Bedrooms: 3
  • Baths: 2 full bath; 2 1/2 bath;
  • Master Bathroom Amenities: 5-Pc Bath, Ceramic Tile, Double Vanity, Free-standing Shower, Tub
  • Laundry: Basement

    Structure

  • Foundation: Walk Out
  • Heating: Forced Air, Hot Water, Natural Gas
  • Cooling: Central Air
  • Garage/Parking #: 4 vehicle(s), Attached
  • Garage Amenities: Even with Main Level, Garage Door Opener, Oversized
  • Patio Description: Covered
  • Total SqFt: 4,742
  • Finished SqFt: 4,518
  • Basement SqFt: 2,030
  • Basement % Fin: 89
  • Construction Status: Existing Home
  • Siding: Stone, Stucco
  • Structure: Frame

    Features

  • Appliances: Cook Top, Dishwasher, Disposal, Double Oven, Gas in Kitchen, Hot Tap Dispenser, Kitchen Vent Fan, Microwave Oven, Oven, Range, Refrigerator, Self Cleaning Oven
  • Floors: Carpet, Ceramic Tile, Wood
  • Fireplace: Basement, Gas, Main Level, Two
  • Interior Features: 5-Pc Bath, 9Ft + Ceilings, Great Room
  • Laundry: Basement

    Taxes, Utilities, Lot

  • Tax: $5,749
  • Lot Size: 0.63 Acres, 27,569 SqFt
  • Street Description: Paved, Private Road
  • Landscaped: All
  • Fence: Community
  • Driveway: Concrete
  • Lot Location: Hiking Trail, Near Fire Station, Near Hospital, Near Park, Near Schools, Near Shopping Center
  • Lot Description: Backs to Golf Course, Cul-de-sac, Golf Course View, Mountain View
  • Restrictions: Architectural Control
  • Existing Utilities: Cable Available, Electricity Connected, Natural Gas Available
  • Existing Water: Municipal

    Community

  • Covenants: Yes
  • HOA Dues: $640
  • HOA Frequency: Quarterly
  • HOA Fee Includes: Covenant Enforcement, Management, Security, Snow Removal, Trash Removal
  • Complex Amenities: Gated Community, Lake/Pond, Private Security

    Additional Information


      Disclaimer
      The real estate listing information and related content displayed on this site is provided exclusively for consumers’ personal, non-commercial use and may not be used for any purpose other than to identify prospective properties consumers may be interested in purchasing.
      PPAR.com Website

      3715 Camel Grove, Colorado Springs, CO, 80904

      Image 1 of 50: No Description Available

      Image 1 of 50

      Image 2 of 50: No Description Available

      Image 2 of 50

      Image 3 of 50: No Description Available

      Image 3 of 50

      Image 4 of 50: No Description Available

      Image 4 of 50

      Image 5 of 50: No Description Available

      Image 5 of 50

      Image 6 of 50: No Description Available

      Image 6 of 50

      Image 7 of 50: No Description Available

      Image 7 of 50

      Image 8 of 50: No Description Available

      Image 8 of 50

      Image 9 of 50: No Description Available

      Image 9 of 50

      Image 10 of 50: No Description Available

      Image 10 of 50

      Image 11 of 50: No Description Available

      Image 11 of 50

      Image 12 of 50: No Description Available

      Image 12 of 50

      Image 13 of 50: No Description Available

      Image 13 of 50

      Image 14 of 50: No Description Available

      Image 14 of 50

      Image 15 of 50: No Description Available

      Image 15 of 50

      Image 16 of 50: No Description Available

      Image 16 of 50

      Image 17 of 50: No Description Available

      Image 17 of 50

      Image 18 of 50: No Description Available

      Image 18 of 50

      Image 19 of 50: No Description Available

      Image 19 of 50

      Image 20 of 50: No Description Available

      Image 20 of 50

      Image 21 of 50: No Description Available

      Image 21 of 50

      Image 22 of 50: No Description Available

      Image 22 of 50

      Image 23 of 50: No Description Available

      Image 23 of 50

      Image 24 of 50: No Description Available

      Image 24 of 50

      Image 25 of 50: No Description Available

      Image 25 of 50

      Image 26 of 50: No Description Available

      Image 26 of 50

      Image 27 of 50: No Description Available

      Image 27 of 50

      Image 28 of 50: No Description Available

      Image 28 of 50

      Image 29 of 50: No Description Available

      Image 29 of 50

      Image 30 of 50: No Description Available

      Image 30 of 50

      Image 31 of 50: No Description Available

      Image 31 of 50

      Image 32 of 50: No Description Available

      Image 32 of 50

      Image 33 of 50: No Description Available

      Image 33 of 50

      Image 34 of 50: No Description Available

      Image 34 of 50

      Image 35 of 50: No Description Available

      Image 35 of 50

      Image 36 of 50: No Description Available

      Image 36 of 50

      Image 37 of 50: No Description Available

      Image 37 of 50

      Image 38 of 50: No Description Available

      Image 38 of 50

      Image 39 of 50: No Description Available

      Image 39 of 50

      Image 40 of 50: No Description Available

      Image 40 of 50

      Image 41 of 50: No Description Available

      Image 41 of 50

      Image 42 of 50: No Description Available

      Image 42 of 50

      Image 43 of 50: No Description Available

      Image 43 of 50

      Image 44 of 50: No Description Available

      Image 44 of 50

      Image 45 of 50: No Description Available

      Image 45 of 50

      Image 46 of 50: No Description Available

      Image 46 of 50

      Image 47 of 50: No Description Available

      Image 47 of 50

      Image 48 of 50: No Description Available

      Image 48 of 50

      Image 49 of 50: No Description Available

      Image 49 of 50

      Image 50 of 50: No Description Available

      Image 50 of 50

      Disclaimer: The real estate listing information and related content displayed on this site is provided exclusively for consumers’ personal, non-commercial use and may not be used for any purpose other than to identify prospective properties consumers may be interested in purchasing.