3279 Greenmoor Court, Colorado Springs, CO, 80920

Image Count: 47

$649,900

  • Highlights
  • Single Family
  • 3 bd | 3 ba | 3,189 sqft
  • 3279 Greenmoor Court, Colorado Springs, CO, 80920 listed by Dan Andrews
  • Active
  • MLS#: 4457211
  • Tour #1
  • View on Map
Space maker

Property Description

Stunning 2-story residence in coveted Pine Creek, exuding charm with beautiful wood floors, upscale stainless steel appliances, and enchanting stone fireplaces in both the main living area and master suite. Enjoy the allure of a large fenced backyard complete with an oversized patio, ideal for entertaining guests or unwinding in the hot tub. Situated in a delightful golf course community, surrounded by picturesque parks and top-notch schools in Academy School District 20. The home offers easy access to the vibrant Powers Corridor, the bustling Interquest Parkway, and the nearby I-25, making it a true haven of comfort and luxury. Embrace the enchanting ambiance of this charmer and make it your own sweet retreat.

Property Listed By

Picture of REALTOR Listing Property
  • Dan Andrews
  • 1685-102-917  Call the Agent 
Picture of Office Listing Property
  • RE/MAX Real Estate Group LLC
  • 0097-435-917  Call the Agent 

Property Details

    General Features

  • Property: Single Family, 2 Story
  • Year Built: 2000
  • List Price: $649,900
  • County: El Paso
  • School District: Academy-20

    Rooms

  • Master: Upper Level, 12 x 20
  • Bedrooms: 3
  • Baths: 2 full bath; 1 1/2 bath;
  • Master Bathroom Amenities: 5-Pc Bath, Ceramic Tile, Double Vanity
  • Laundry: Main

    Structure

  • Foundation: Full Basement
  • Heating: Forced Air
  • Cooling: Ceiling Fan, Central Air
  • Garage/Parking #: 3 vehicle(s), Attached
  • Patio Description: Concrete
  • Total SqFt: 3,189
  • Finished SqFt: 2,263
  • Basement SqFt: 926
  • Construction Status: Existing Home
  • Siding: Masonite Type
  • Structure: Frame

    Features

  • Appliances: 220v in Kitchen, Dishwasher, Disposal, Dryer, Microwave Oven, Range, Refrigerator, Self Cleaning Oven, Washer
  • Floors: Carpet, Ceramic Tile, Wood
  • Entry: Natural Wood
  • Fireplace: Gas, Main Level, Masonry, Two, Upper Level
  • Interior Features: 5-Pc Bath
  • Laundry: Main

    Taxes, Utilities, Lot

  • Tax: $2,349
  • Lot Size: 0.20 Acres, 8,732 SqFt
  • Lot Description: Level
  • Existing Utilities: Cable Connected, Electricity Connected, Natural Gas Connected
  • Existing Water: Municipal

    Community

  • Covenants: Yes
  • HOA Dues: $110
  • HOA Frequency: Monthly
  • HOA Fee Includes: Covenant Enforcement, Management, Trash Removal

    Additional Information


      Disclaimer
      The real estate listing information and related content displayed on this site is provided exclusively for consumers’ personal, non-commercial use and may not be used for any purpose other than to identify prospective properties consumers may be interested in purchasing.
      PPAR.com Website

      3279 Greenmoor Court, Colorado Springs, CO, 80920

      Image 1 of 47: Front of Structure

      Front of Structure

      Image 2 of 47: Front of Structure

      Front of Structure

      Image 3 of 47: Front of Structure

      Front of Structure

      Image 4 of 47: Back of Structure

      Back of Structure

      Image 5 of 47: Back of Structure

      Back of Structure

      Image 6 of 47: Back of Structure

      Back of Structure

      Image 7 of 47: Entry

      Entry

      Image 8 of 47: Entry

      Entry

      Image 9 of 47: Living Room

      Living Room

      Image 10 of 47: Living Room

      Living Room

      Image 11 of 47: virtually staged

      virtually staged

      Image 12 of 47: Other

      Other

      Image 13 of 47: Dining Area

      Dining Area

      Image 14 of 47: Other

      Other

      Image 15 of 47: virtually staged

      virtually staged

      Image 16 of 47: Kitchen

      Kitchen

      Image 17 of 47: Kitchen

      Kitchen

      Image 18 of 47: Kitchen

      Kitchen

      Image 19 of 47: Kitchen

      Kitchen

      Image 20 of 47: Kitchen

      Kitchen

      Image 21 of 47: Living Room

      Living Room

      Image 22 of 47: Living Room

      Living Room

      Image 23 of 47: virtually staged

      virtually staged

      Image 24 of 47: Living Room

      Living Room

      Image 25 of 47: Bathroom

      Bathroom

      Image 26 of 47: Laundry

      Laundry

      Image 27 of 47: Living Room

      Living Room

      Image 28 of 47: Living Room

      Living Room

      Image 29 of 47: Master Bedroom

      Master Bedroom

      Image 30 of 47: Virtually Staged

      Virtually Staged

      Image 31 of 47: Master Bathroom

      Master Bathroom

      Image 32 of 47: Closet

      Closet

      Image 33 of 47: Other

      Other

      Image 34 of 47: Bedroom

      Bedroom

      Image 35 of 47: Bathroom

      Bathroom

      Image 36 of 47: Other

      Other

      Image 37 of 47: Bedroom

      Bedroom

      Image 38 of 47: Basement

      Basement

      Image 39 of 47: Basement

      Basement

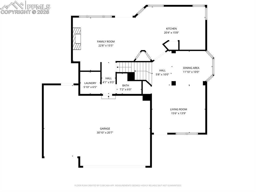
      Image 40 of 47: Floor Plan

      Floor Plan

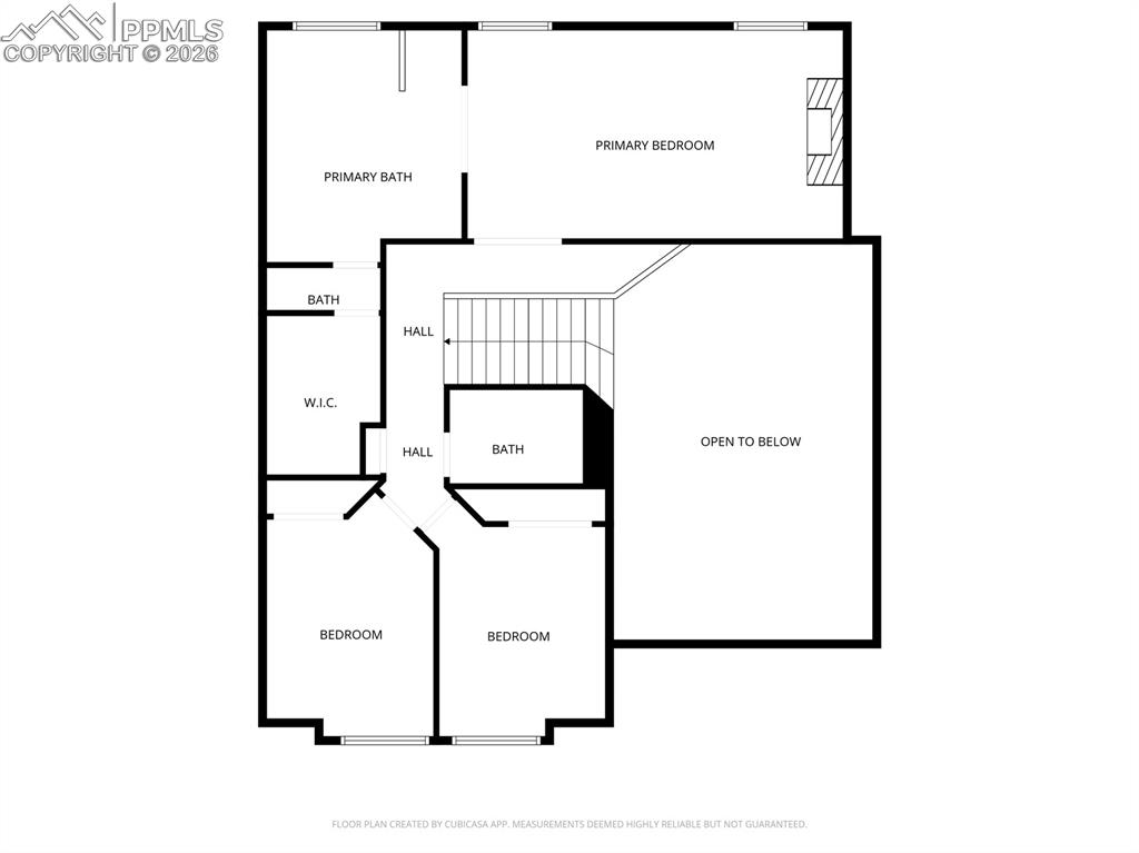
      Image 41 of 47: Floor Plan

      Floor Plan

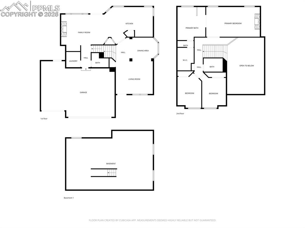
      Image 42 of 47: Floor Plan

      Floor Plan

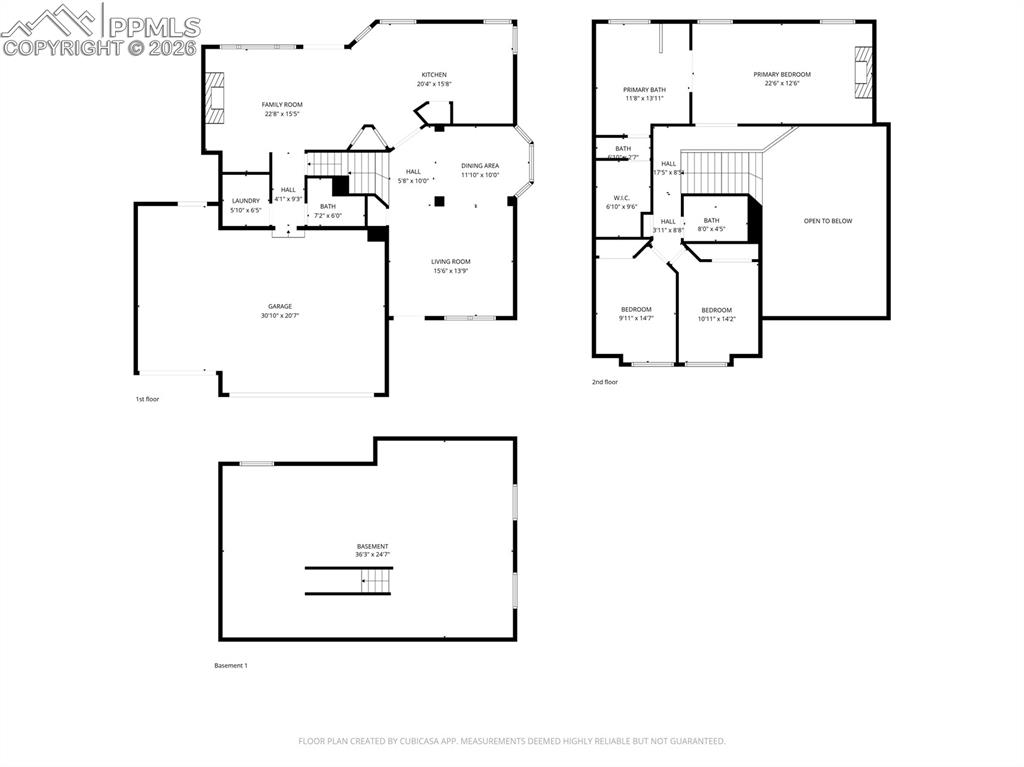
      Image 43 of 47: Floor Plan

      Floor Plan

      Image 44 of 47: Floor Plan

      Floor Plan

      Image 45 of 47: Floor Plan

      Floor Plan

      Image 46 of 47: Floor Plan

      Floor Plan

      Image 47 of 47: Floor Plan

      Floor Plan

      Disclaimer: The real estate listing information and related content displayed on this site is provided exclusively for consumers’ personal, non-commercial use and may not be used for any purpose other than to identify prospective properties consumers may be interested in purchasing.