7452 Johnsontown Heights, Colorado Springs, CO, 80908

Stone accents, lots of curb appeal

Front of Structure

Attached 2 car garage

Adjacent to open space

Entry

Living Room

Living Room

Living Room

Dining Area

Dining Area

Dining Area

Powder bath on main

Kitchen

Kitchen

Kitchen

Kitchen

Kitchen

upstairs hallway/landing

Master Bedroom

Master Bedroom

Master Bedroom

Master Bathroom

walk in primary closet

Master Bathroom

Master Bathroom

Master Bedroom

Bedroom

Bedroom

Bathroom

upstairs laundry room

Bathroom

Bedroom

Bedroom

Garage

Back of Structure

Wide views from the Front

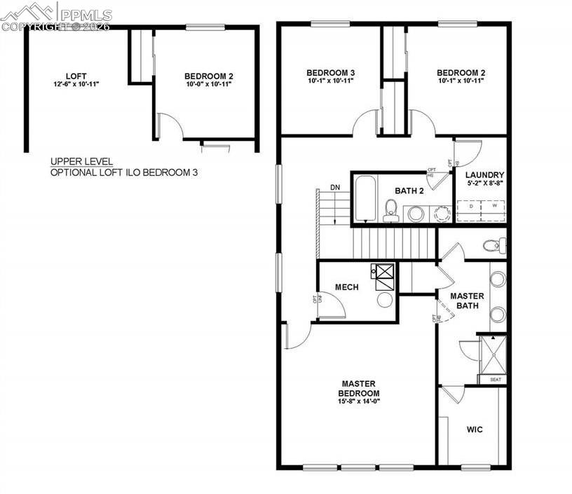
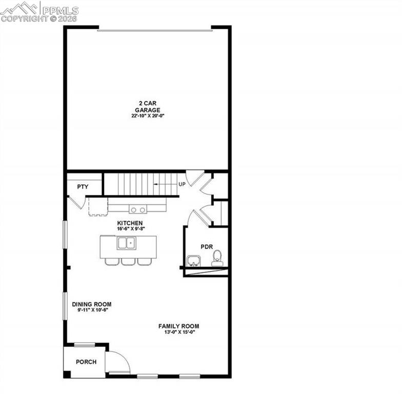
Floor Plan

Floor Plan
Disclaimer: The real estate listing information and related content displayed on this site is provided exclusively for consumers’ personal, non-commercial use and may not be used for any purpose other than to identify prospective properties consumers may be interested in purchasing.