6107 Pine Hill Drive, Colorado Springs, CO, 80918

Image Count: 38

$350,000

  • Highlights
  • Townhouse
  • 3 bd | 4 ba | 2,136 sqft
  • 6107 Pine Hill Drive, Colorado Springs, CO, 80918 listed by Jake Wade
  • Under Contract - Showing
  • MLS#: 4749798
  • Tour #1 | Tour #2
  • View on Map
Space maker

Property Description

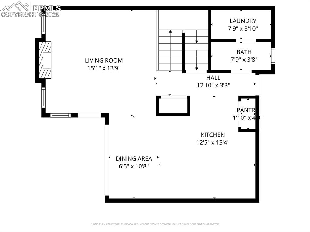
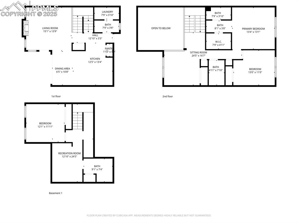
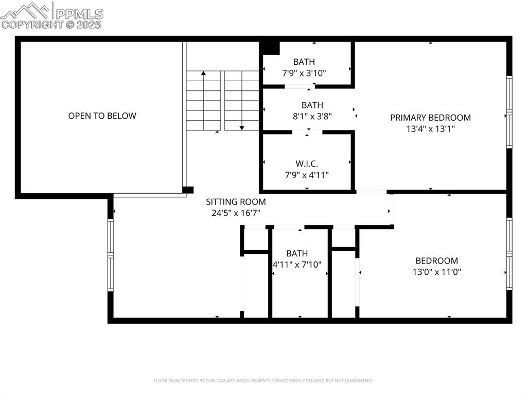
Experience refined comfort and exceptional convenience in this beautiful 3 bedroom, 4 bath townhome, ideally located near Academy Blvd, Palmer Park and Powers Corridor. Featuring brand new carpeting, fixtures, countertops, windows and shades, this residence offers a welcoming exterior leading to a bright interior with vaulted ceilings and ample natural light. The open-concept living room is centered around the fireplace, providing an inviting atmosphere for both relaxing evenings and entertaining guests. The spacious kitchen includes a generous breakfast bar, updated stainless appliances, and a large pantry all seamlessly connecting to the dining area. Upstairs, two sizable bedrooms and a versatile loft ideal for a home office or guest space. The finished basement includes a substantial second suite, an additional family room, and an updated full bath. Enjoy views of Pikes Peak and holiday fireworks from the large and private patio. Completing the home is an attached two-car garage and ample storage throughout. This property stands out as a rare opportunity in a highly desirable central location only minutes from shopping, parks and entertainment.

Property Listed By

Picture of REALTOR Listing Property
  • Jake Wade
  • 2730-502-917  Call the Agent 
Picture of Office Listing Property
  • RE/MAX Real Estate Group LLC
  • 0097-435-917  Call the Agent 

Property Details

    General Features

  • Property: Townhouse, 2 Story
  • Attached: Yes
  • Year Built: 1983
  • List Price: $350,000
  • County: El Paso
  • School District: Colorado Springs 11

    Rooms

  • Master: Upper Level, 14 x 13
  • Bedrooms: 3
  • Baths: 2 full bath; 1 1/2 bath; 1 3/4 bath;
  • Laundry: Main

    Structure

  • Unit Description: Inside Unit
  • Foundation: Full Basement
  • Heating: Forced Air
  • Cooling: Ceiling Fan, Central Air
  • Garage/Parking #: 2 vehicle(s), Attached
  • Garage Amenities: Even with Main Level, Garage Door Opener
  • Total SqFt: 2,136
  • Finished SqFt: 2,051
  • Basement SqFt: 649
  • Basement % Fin: 87
  • Construction Status: Existing Home
  • Siding: Stucco
  • Structure: Framed on Lot, Frame

    Features

  • Appliances: Cook Top, Dishwasher, Disposal, Oven, Refrigerator
  • Fireplace: Main Level, One
  • Laundry: Main

    Taxes, Utilities, Lot

  • Tax: $1,164
  • Lot Size: 0.04 Acres, 1,585 SqFt
  • Landscaped: All
  • Fence: Rear
  • Driveway: Paved
  • Lot Location: Near Fire Station, Near Hospital, Near Park, Near Public Transit, Near Schools, Near Shopping Center
  • Lot Description: Level
  • Existing Utilities: Electricity Connected
  • Existing Water: Municipal

    Community

  • Covenants: Yes
  • HOA Dues: $359
  • HOA Frequency: Monthly
  • HOA Fee Includes: Common Utilities, Covenant Enforcement, Lawn, Maintenance Grounds, Maintenance Structure, Snow Removal, Trash Removal

    Additional Information


      Disclaimer
      The real estate listing information and related content displayed on this site is provided exclusively for consumers’ personal, non-commercial use and may not be used for any purpose other than to identify prospective properties consumers may be interested in purchasing.
      PPAR.com Website

      6107 Pine Hill Drive, Colorado Springs, CO, 80918

      Image 1 of 38: Other

      Other

      Image 2 of 38: Front of Structure

      Front of Structure

      Image 3 of 38: Front of Structure

      Front of Structure

      Image 4 of 38: Deck

      Deck

      Image 5 of 38: Deck

      Deck

      Image 6 of 38: Entry

      Entry

      Image 7 of 38: Living Room

      Living Room

      Image 8 of 38: Living Room

      Living Room

      Image 9 of 38: Other

      Other

      Image 10 of 38: Dining Area

      Dining Area

      Image 11 of 38: Dining Area

      Dining Area

      Image 12 of 38: Kitchen

      Kitchen

      Image 13 of 38: Kitchen

      Kitchen

      Image 14 of 38: Kitchen

      Kitchen

      Image 15 of 38: Bathroom

      Bathroom

      Image 16 of 38: Bathroom

      Bathroom

      Image 17 of 38: Bedroom

      Bedroom

      Image 18 of 38: Bathroom

      Bathroom

      Image 19 of 38: Bathroom

      Bathroom

      Image 20 of 38: Closet

      Closet

      Image 21 of 38: Bedroom

      Bedroom

      Image 22 of 38: Bedroom

      Bedroom

      Image 23 of 38: Bathroom

      Bathroom

      Image 24 of 38: Bedroom

      Bedroom

      Image 25 of 38: Bedroom

      Bedroom

      Image 26 of 38: Bedroom

      Bedroom

      Image 27 of 38: Sitting Room

      Sitting Room

      Image 28 of 38: Sitting Room

      Sitting Room

      Image 29 of 38: Bathroom

      Bathroom

      Image 30 of 38: Exercise Room

      Exercise Room

      Image 31 of 38: Exercise Room

      Exercise Room

      Image 32 of 38: Aerial View

      Aerial View

      Image 33 of 38: Other

      Other

      Image 34 of 38: Aerial View

      Aerial View

      Image 35 of 38: Floor Plan

      Floor Plan

      Image 36 of 38: Floor Plan

      Floor Plan

      Image 37 of 38: Floor Plan

      Floor Plan

      Image 38 of 38: Floor Plan

      Floor Plan

      Disclaimer: The real estate listing information and related content displayed on this site is provided exclusively for consumers’ personal, non-commercial use and may not be used for any purpose other than to identify prospective properties consumers may be interested in purchasing.