9 Swallow Drive, Colorado Springs, CO, 80904

Front of Structure

Patio

Patio

Patio

Garage

Front of Structure

View from the backyard

Beautiful landscaping

Family Room with built-in shelving and entertainment center opens to one of the patios

Living Room and Solarium

Living Room, Dining Room, and Solarium

Look at that gorgeous stone fireplace!

Solarium lets the light in from the multiple skylights

Dining, Kitchen, Living, and a greenhouse room

The updated kitchen is a cook's dream!

Kitchen

Breakfast bar looking out to the Great Room

Sun Room

Guest Bathroom on the main floor

Laundry

Primary Bedroom adjoins one of the greenhouse rooms

Master Bedroom

Master Bathroom

Upstairs bedroom opens to a private patio

Part of the bedroom is used as office space

Upstairs bathroom

Upstairs bedroom has mountain views

Upstairs bathroom

Greenhouse room off the Dining Room

Epoxy floor in the garage

Garage

View from one of the five patios

Front of house from one of the patios

Patio

View from the yard

Gorgeous autumn landscaping colors!

Gorgeous autumn landscaping colors!

Gorgeous autumn landscaping colors!

Gorgeous autumn landscaping colors!

Gorgeous autumn landscaping colors!

Gorgeous autumn landscaping colors!

Gorgeous autumn landscaping colors!

View from the yard

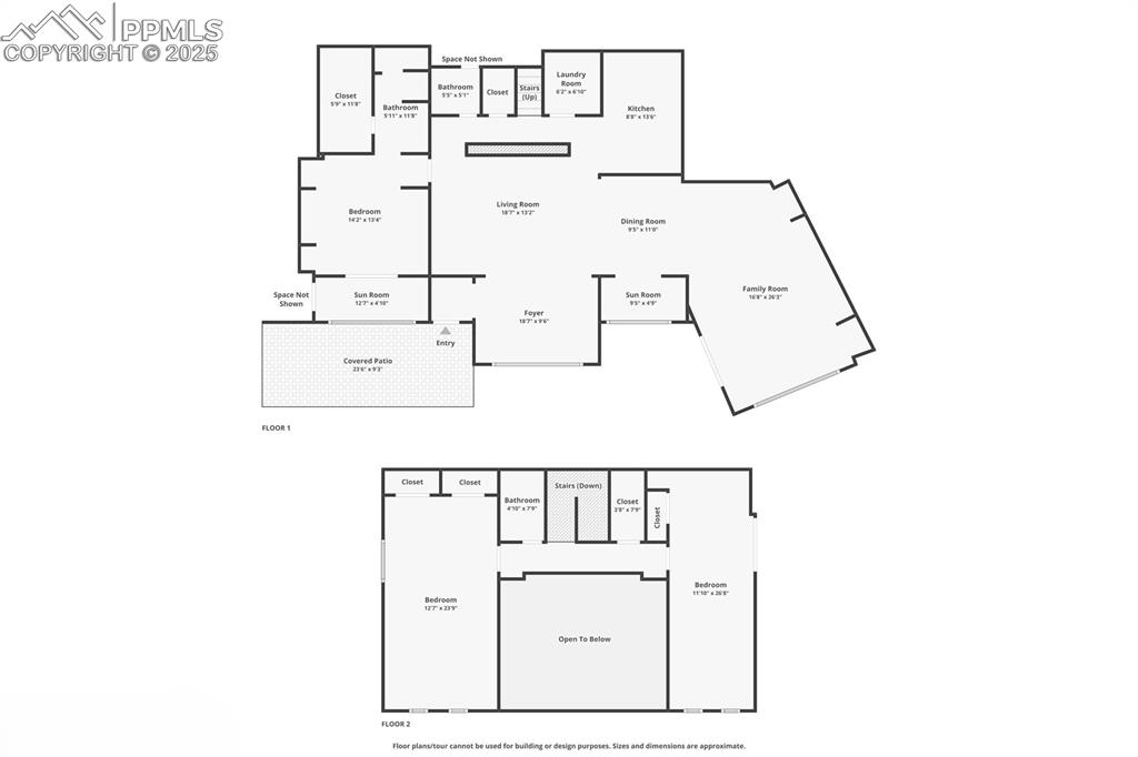
Combined floor plan

Main level floor plan

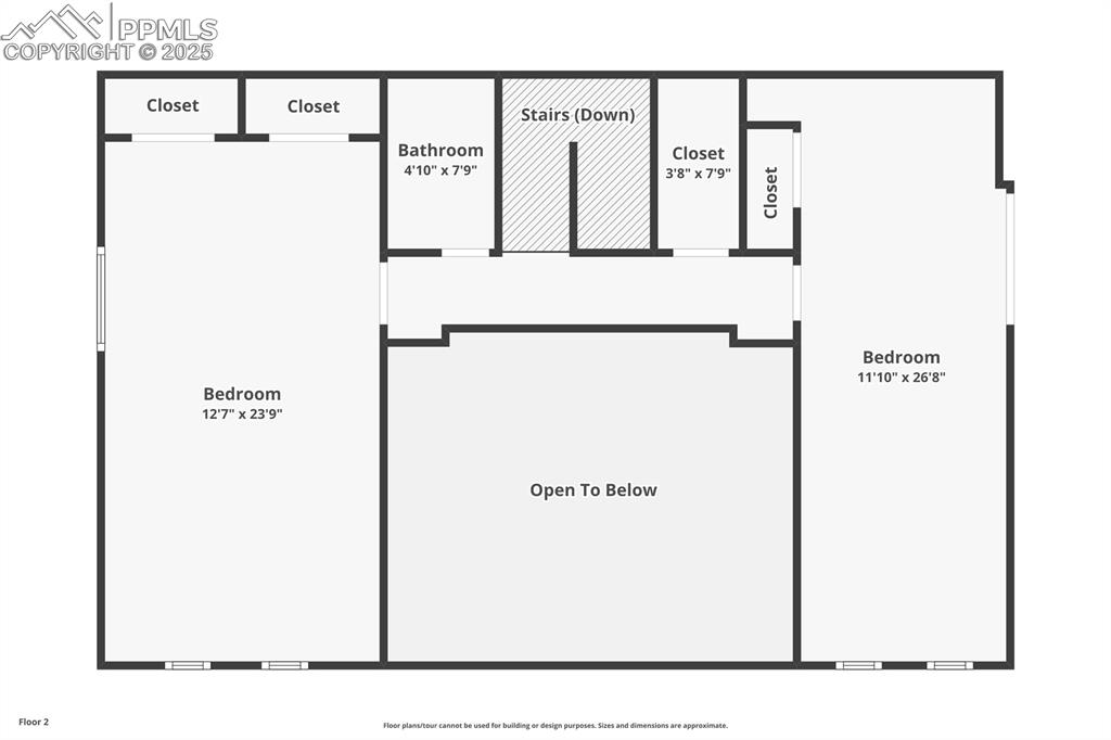
Upstairs floor plan
Disclaimer: The real estate listing information and related content displayed on this site is provided exclusively for consumers’ personal, non-commercial use and may not be used for any purpose other than to identify prospective properties consumers may be interested in purchasing.