6742 Golden Briar Lane, Colorado Springs, CO, 80927

Front of Structure

stucco exterior

fully paid solar panels

programmable exterior holiday lighting

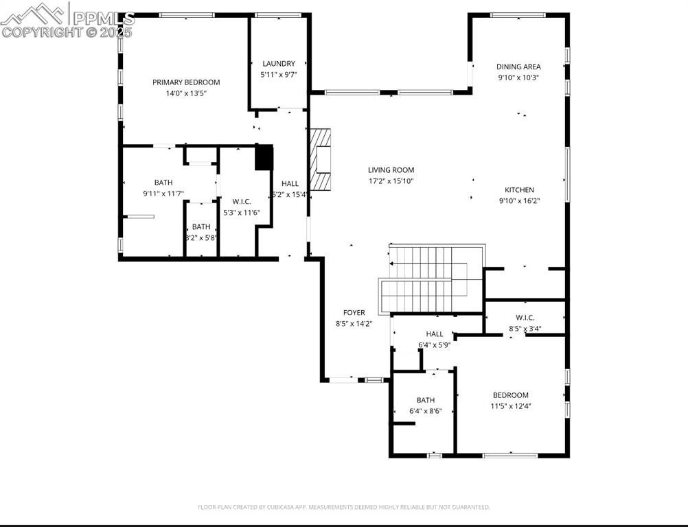
open floor plan

large storge area or future 4th bedroom

Living Room

Kitchen

Kitchen

gas range

whole house water treatment system

large pantry with wooden shelves

extra tall entry with storm door and screen

Master Bedroom

shown with queen sized bed. very roomy

attached spa like bathroom

attached walk in closet

roll in shower

shower seat

dual vanities

primary bedroom -
walk in closet

secondary bedroom on main floor

secondary bathroom on main level

laundry room with cabinets and sink on main level

extra deep laundry sink

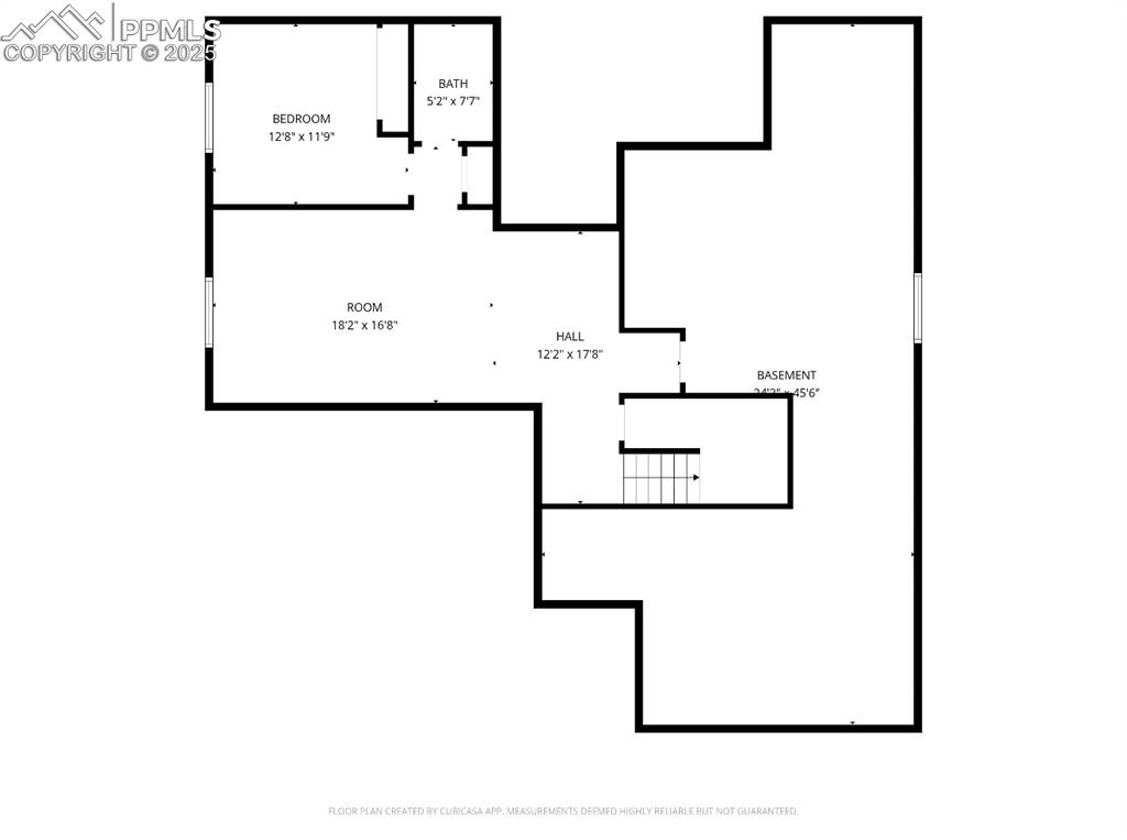
Recreation Room

Recreation Room

Basement Bedroom

Basement Bathroom

large storage or future bedrooms

covered

low maintenance

Beautiful in Fall

Beautiful in fall

whole house water treatment system

whole house water treatment system

community park across the street

locked / private community park

community gardens

fire pit for your enjoyment

community grills - host gatherings
Disclaimer: The real estate listing information and related content displayed on this site is provided exclusively for consumers’ personal, non-commercial use and may not be used for any purpose other than to identify prospective properties consumers may be interested in purchasing.