1515 Parkway Drive, Colorado Springs, CO, 80905

Cute 1950's rancher with 1,155 square feet. 2 bedrooms, 1 bath and attached oversized 1 car garage. Large 12,300 square foot lot and fenced backyard.

Front of Structure

Front of Structure

12,300 square foot lot features a large fenced backyard.

Huge 12,300 square foot lot - very rare to find at this price and location!

The yard is the gem of this property - features a large, fenced lot complete with gazebo, garden, shed and a dog run. Covered back and front patios make this perfect for entertaining!

Large yard complete with a dog run.

Rear covered concrete patio

Covered concrete patio.

Large fenced yard

Gazebo

This home situated in the coveted southwest side of Colorado Springs, features a large 12,300 square foot lot.

Spacious yard

Desirable southwest neighborhood

Aerial View

VIRTUALLY STAGED - living room

Living Room

Entry

Living Room

Living Room

Living Room

DR/LR

Dining room off of the kitchen - open to the living room

Kitchen

Kitchen

Kitchen

Dining Room

Primary bedroom

Master Bedroom

Master Bedroom

Master Bedroom

Bedroom #2

Bedroom #2

Bedroom #2

Bedroom #2

Spacious family room

Spacious family room

Family Room

Aerial View

Aerial View

Aerial View

Bathroom

Laundry

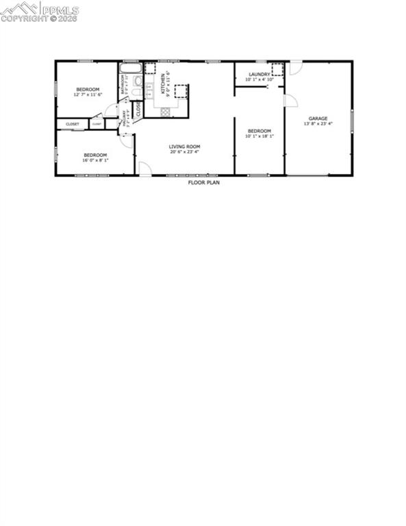
Floor Plan
Disclaimer: The real estate listing information and related content displayed on this site is provided exclusively for consumers’ personal, non-commercial use and may not be used for any purpose other than to identify prospective properties consumers may be interested in purchasing.