13815 Woodlake Road, Elbert, CO, 80106

Ranch-style home featuring a wooden deck, driveway, and an attached garage

View of front of home with a garage and a wooden deck

Single story home with a gate, driveway, and a garage

Entrance to property featuring a garage, driveway, and a deck

Kitchen featuring white cabinetry, appliances with stainless steel finishes, butcher block countertops, a kitchen island, and light wood-style floors

Kitchen featuring glass insert cabinets, white cabinets, appliances with stainless steel finishes, pendant lighting, and lofted ceiling

Kitchen featuring white cabinetry, butcher block counters, appliances with stainless steel finishes, glass insert cabinets, and decorative light fixtures

Kitchen with white cabinetry, glass insert cabinets, wooden counters, ceiling fan, and light wood-style flooring

Dining space featuring lofted ceiling, light wood-style floors, a textured ceiling, and a ceiling fan

Living room with a wood stove, ceiling fan, light wood finished floors, lofted ceiling, and a textured ceiling

Living room with vaulted ceiling, light wood-type flooring, a wood stove, and a ceiling fan

Living area with a wood stove, vaulted ceiling, light wood-type flooring, and a ceiling fan

Full bathroom with a marble finish shower and vanity

Bedroom featuring a textured ceiling and wood finished floors

Bedroom with a textured ceiling, light wood-type flooring, and wallpapered walls

Bedroom featuring light wood-style flooring, a textured ceiling, and a ceiling fan

Bathroom featuring a stall shower, vanity, and light wood-type flooring

Ensuite bathroom with vanity, light wood-type flooring, and a textured ceiling

Bedroom with light wood finished floors, ceiling fan, and a textured ceiling

Indoor dry bar featuring finished concrete flooring and recessed lighting

Indoor dry bar featuring concrete floors and recessed lighting

Playroom with baseboards

Office area with light colored carpet and plenty of natural light

Bathroom featuring vanity, a shower stall, and light tile patterned floors

Bedroom with carpet and multiple windows

Pantry featuring washer / dryer

Laundry area with washer / clothes dryer and light tile patterned floors

Back of house

Back of property with a patio

Back of house

Aerial view of sparsely populated area

Aerial view of sparsely populated area

Aerial view of sparsely populated area featuring a desert landscape

Overview of rural landscape with a desert landscape and a mountain backdrop

Overview of rural landscape featuring a desert landscape and mountains

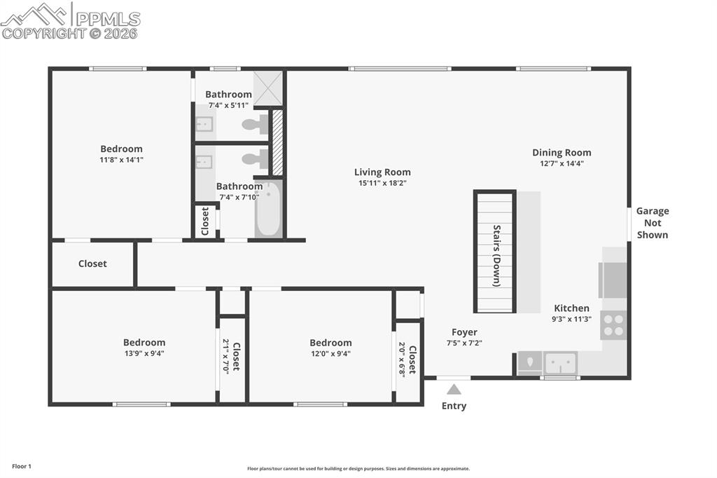
View of floor plan / room layout

View of property floor plan
Disclaimer: The real estate listing information and related content displayed on this site is provided exclusively for consumers’ personal, non-commercial use and may not be used for any purpose other than to identify prospective properties consumers may be interested in purchasing.