4058 Star View, Colorado Springs, CO, 80907

Front of Structure

Front of Structure

Front of property with a 2 car garage

Balcony

Front of Structure

Front of Structure

Front of Structure

Entry

Virtually staged

Living looks out onto open space

Living room with laminate flooring and lots of natural light

Living room is open to the dining area and kitchen

Living room with a gas fireplace

Virtually staged

Dining area opens to balcony overlooking park

Balcony

Kitchen

Half bathroom on main floor

Laundry upstairs

Primary bedroom

Primary walk in closet

Primary bathroom

Virtually staged

Bedroom #2

Bedroom #3

Bedroom #3

Bathroom #2 upstairs

Front of Structure

Front of Structure

Walking path

Back of Structure

Aerial View

Upstairs full bath

Aerial View

Front of property

Aerial View

Aerial View

Awesome trail behind townhouse

Aerial View

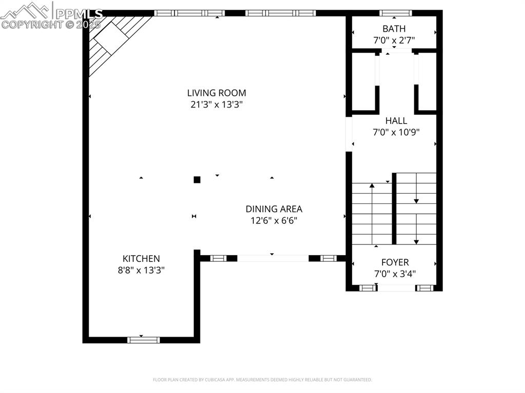
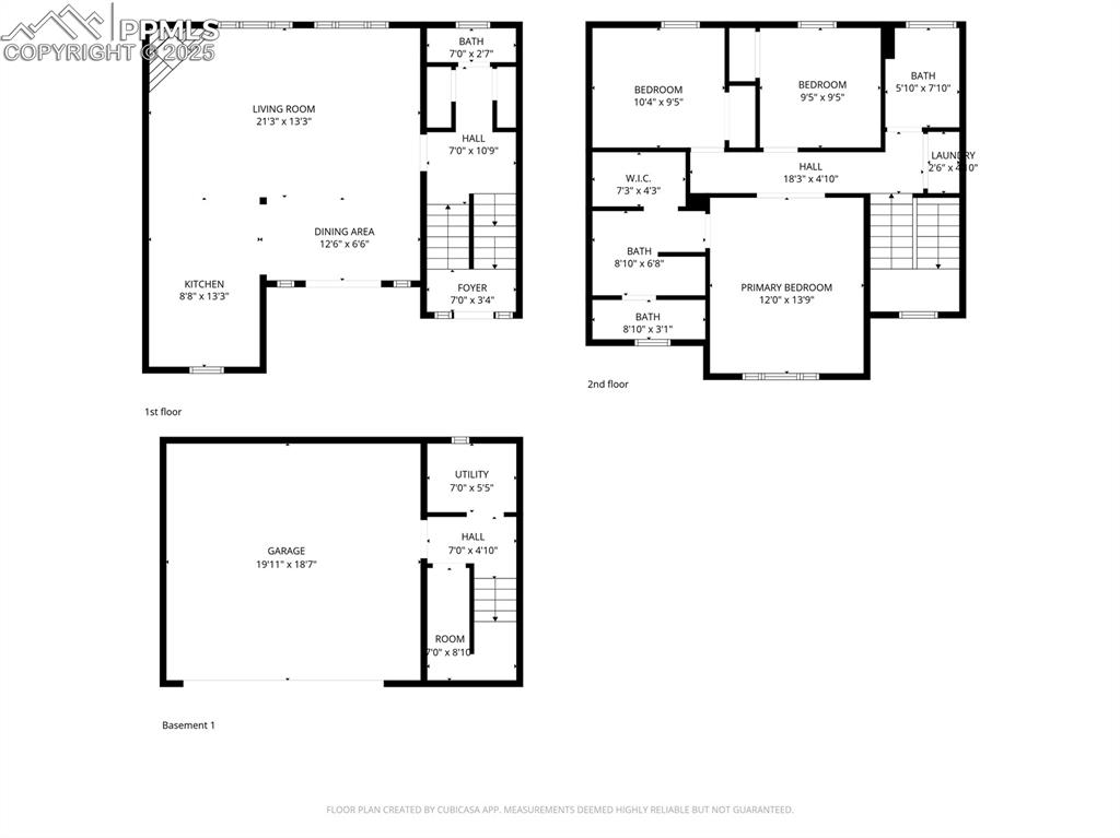
Floor 1

Floor 2

Floor 3

All 3 floors
Disclaimer: The real estate listing information and related content displayed on this site is provided exclusively for consumers’ personal, non-commercial use and may not be used for any purpose other than to identify prospective properties consumers may be interested in purchasing.