4222 Friar Lane, Colorado Springs, CO, 80907

Image Count: 50

$440,000

  • Highlights
  • Single Family
  • 4 bd | 2 ba | 1,609 sqft
  • 4222 Friar Lane, Colorado Springs, CO, 80907 listed by Lucas Tl Jensen
  • Under Contract - Showing
  • MLS#: 2398138
  • View on Map
Space maker

Property Description

Introducing a delightful property nestled in the heart of the city, within in a well established, friendly, quiet neighborhood. This beautifully updated home boasts a modern and inviting atmosphere, featuring four bedrooms and two well-appointed bathrooms, perfect for those seeking extra room to breathe. The residence includes a convenient oversized one-car garage, providing secure parking and additional storage options, along with extra space for parking on the driveway. Upon entering, you’ll be greeted by fresh updates that enhance the home’s charm and functionality. The open-concept layout creates a seamless flow between the living areas, making it ideal for both entertaining guests and enjoying quiet family evenings. Natural light floods the interior, accentuating the contemporary finishes and thoughtful design elements throughout. The kitchen is a highlight, equipped with modern appliances and ample counter space, making meal preparation a pleasure. The bathrooms have also been tastefully updated, adding a touch of luxury to your daily routine. But wait, there's more! The home also boasts a new roof (2024), new electrical, including outlets and switches (2024), new flooring on the main, new interior paint, new carpet up and down and new kitchen appliances. The large fenced back yard offers a safe space for family and friends to relax and enjoy the Colorado sunshine. With its fresh updates, spacious layout, and prime location, this property is sure to impress. Location is key, and this property does not disappoint. Situated close to a variety of amenities, including an elementary school, shopping centers, parks, and dining options, you’ll have everything you need right at your fingertips. Experience the best of life in this charming home that combines comfort, style, and convenience. Schedule a visit today and discover all that this wonderful home has to offer!

Property Listed By

Picture of REALTOR Listing Property
  • Lucas Tl Jensen
  • 3585-167-917  Call the Agent 
Picture of Office Listing Property
  • REMAX PROPERTIES
  • 0068-845-917  Call the Agent 
Lucas is a Colorado native. He was born in Leadville Co. and moved to Colorado Springs in 1986. Spending most of his life in Colorado Springs, he has seen this once small town grow. His knowledge and expertise in the area has helped him service his clients. Both buyers and sellers can lean on Lucas for sound advice and wise council.

Property Details

    General Features

  • Property: Single Family, Tri-Level
  • Year Built: 1969
  • List Price: $440,000
  • County: El Paso
  • School District: Colorado Springs 11

    Rooms

  • Master: Upper Level, 12 x 13
  • Bedrooms: 4
  • Baths: 1 full bath; 1 3/4 bath;
  • Laundry: Lower

    Structure

  • Heating: Forced Air
  • Cooling: Ceiling Fan
  • Garage/Parking #: 1 vehicle(s), Attached
  • Garage Amenities: Oversized
  • Patio Description: Concrete, Covered
  • Total SqFt: 1,609
  • Finished SqFt: 1,609
  • Construction Status: Existing Home
  • Siding: Brick, Stucco
  • Structure: Frame

    Features

  • Appliances: Dishwasher, Disposal, Oven, Refrigerator
  • Floors: Carpet, Wood, Wood Laminate
  • Fireplace: Electric, One
  • Laundry: Lower

    Taxes, Utilities, Lot

  • Tax: $1,255
  • Lot Size: 0.16 Acres, 7,000 SqFt
  • Fence: Rear
  • Driveway: Concrete
  • Lot Location: Near Fire Station, Near Hospital, Near Park, Near Public Transit, Near Schools, Near Shopping Center
  • Lot Description: Level
  • Existing Utilities: Cable Connected, Electricity Connected, Natural Gas Connected
  • Existing Water: Municipal

    Community

    Additional Information


      Disclaimer
      The real estate listing information and related content displayed on this site is provided exclusively for consumers’ personal, non-commercial use and may not be used for any purpose other than to identify prospective properties consumers may be interested in purchasing.
      PPAR.com Website

      4222 Friar Lane, Colorado Springs, CO, 80907

      Image 1 of 50: Front of Structure

      Front of Structure

      Image 2 of 50: Front of Structure

      Front of Structure

      Image 3 of 50: Living Room

      Living Room

      Image 4 of 50: Living Room

      Living Room

      Image 5 of 50: Dining Area

      Dining Area

      Image 6 of 50: Living Room

      Living Room

      Image 7 of 50: Living Room

      Living Room

      Image 8 of 50: Dining Area

      Dining Area

      Image 9 of 50: Kitchen

      Kitchen

      Image 10 of 50: Kitchen

      Kitchen

      Image 11 of 50: Kitchen

      Kitchen

      Image 12 of 50: Kitchen

      Kitchen

      Image 13 of 50: Bedroom

      Bedroom

      Image 14 of 50: Bedroom

      Bedroom

      Image 15 of 50: Bathroom

      Bathroom

      Image 16 of 50: Bedroom

      Bedroom

      Image 17 of 50: Bathroom

      Bathroom

      Image 18 of 50: Bonus Room

      Bonus Room

      Image 19 of 50: Living Room

      Living Room

      Image 20 of 50: Sitting Room

      Sitting Room

      Image 21 of 50: Living Room

      Living Room

      Image 22 of 50: Bathroom

      Bathroom

      Image 23 of 50: Dining Area

      Dining Area

      Image 24 of 50: Dining Area

      Dining Area

      Image 25 of 50: Front of Structure

      Front of Structure

      Image 26 of 50: Patio

      Patio

      Image 27 of 50: Yard

      Yard

      Image 28 of 50: Back of Structure

      Back of Structure

      Image 29 of 50: Patio

      Patio

      Image 30 of 50: Back of Structure

      Back of Structure

      Image 31 of 50: Other

      Other

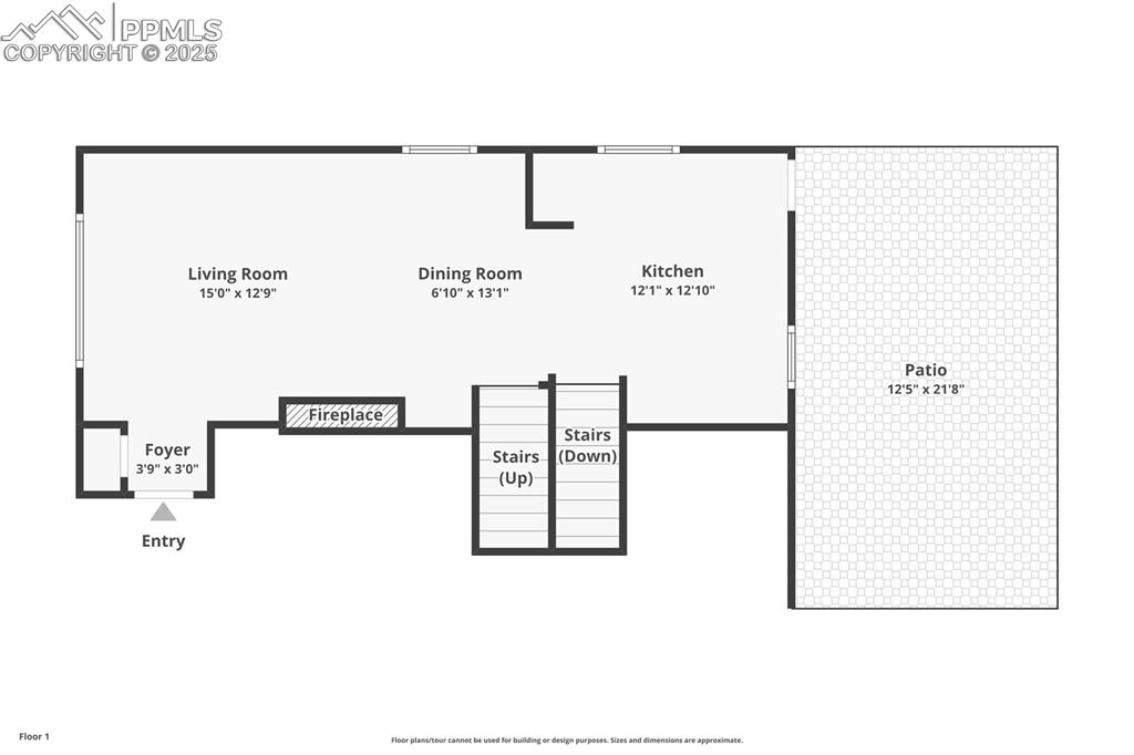
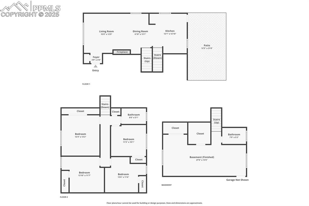
      Image 32 of 50: Floor Plan

      Floor Plan

      Image 33 of 50: Floor Plan

      Floor Plan

      Image 34 of 50: Floor Plan

      Floor Plan

      Image 35 of 50: Floor Plan

      Floor Plan

      Image 36 of 50: Living Room

      Living Room

      Image 37 of 50: Living Room

      Living Room

      Image 38 of 50: Living Room

      Living Room

      Image 39 of 50: Dining Area

      Dining Area

      Image 40 of 50: Kitchen

      Kitchen

      Image 41 of 50: Kitchen

      Kitchen

      Image 42 of 50: Kitchen

      Kitchen

      Image 43 of 50: Kitchen

      Kitchen

      Image 44 of 50: Bedroom

      Bedroom

      Image 45 of 50: Bedroom

      Bedroom

      Image 46 of 50: Bathroom

      Bathroom

      Image 47 of 50: Bedroom

      Bedroom

      Image 48 of 50: Bathroom

      Bathroom

      Image 49 of 50: Bonus Room

      Bonus Room

      Image 50 of 50: Living Room

      Living Room

      Disclaimer: The real estate listing information and related content displayed on this site is provided exclusively for consumers’ personal, non-commercial use and may not be used for any purpose other than to identify prospective properties consumers may be interested in purchasing.