5758 Callan Drive, Colorado Springs, CO, 80927

Welcome Home!

Beautiful modern kitchen.

Very open floor plan.

Beautiful deck off the kitchen.

Great patio area in the backyard.

Aerial view.

Aerial view.

Lower level flex room.

Lower level flex room.

Lower level flex room and garage entrance.

Upper level office area.

Upper level office area.

Upper level 1st bedroom.

Upper level 1st bedroom.

Upper level full bathroom.

Upper level 2nd bedroom.

Upper level 2nd bedroom.

Main level primary bedroom.

Main level primary suite with attached bathroom.

Primary bathroom.

Primary bathroom.

Main level guest bathroom.

Beautiful modern kitchen.

Large granite island.

Sliding door to deck.

Living room with tray ceiling.

Very open main level.

Patio area.

Raised deck.

Lower level walkout.

Beautiful modern home.

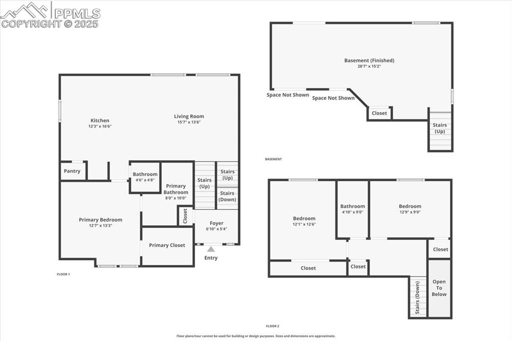
View of room layout

View of property floor plan

View of home floor plan

View of floor plan / room layout
Disclaimer: The real estate listing information and related content displayed on this site is provided exclusively for consumers’ personal, non-commercial use and may not be used for any purpose other than to identify prospective properties consumers may be interested in purchasing.