3801 Inspiration Drive, Colorado Springs, CO, 80917

Front of Structure

Front of Structure

Front of Structure

Front of Structure

Front of Structure

Entry

With wood burning fireplace and walk-out to deck

Family Room

Family Room

Family Room

Waterfall quartz counter tops, 40 in cabinets, stainless steel applainces

Kitchen

Kitchen

Kitchen

Kitchen

Living Room

Living Room

Living Room

Master Bedroom

Master Bedroom

Master Bathroom

Bedroom

Bedroom

Bathroom

Bathroom

Laundry

Bathroom

NEW 3/4 Bathroom to be installed in the basement

In basement

In basement

Bedroom

Bedroom

Bedroom

Office

Other

Deck

Deck

Including grill!

16 person fire pit

Including hot tub!

Yard

Back of Structure

Back of Structure

Aerial View

Back of Structure

Back of Structure

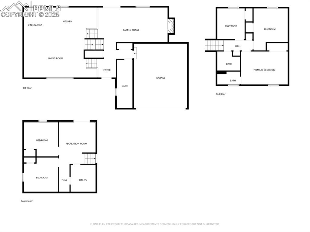
Floor Plan

Main Level

Floor Plan
Disclaimer: The real estate listing information and related content displayed on this site is provided exclusively for consumers’ personal, non-commercial use and may not be used for any purpose other than to identify prospective properties consumers may be interested in purchasing.