6365 Delmonico Drive, Colorado Springs, CO, 80919

Image Count: 20

$490,000

  • Highlights
  • Single Family
  • 4 bd | 3 ba | 2,210 sqft
  • 6365 Delmonico Drive, Colorado Springs, CO, 80919 listed by Julia Gillis
  • Under Contract - Showing
  • MLS#: 2088572
  • View on Map
Space maker

Property Description

Welcome to Rockrimmon living at its best in the sought-after Golden Hills neighborhood. This 4-bed, 3-bath home offers 2,210 sq ft of well-designed living space surrounded by mature, established landscaping. The upper level is filled with natural light thanks to large picture windows, creating a warm and inviting flow between the spacious living room and dining area. The updated kitchen features included stainless steel appliances, gas stove and plenty of room to cook, gather, and entertain. The upper level also includes the primary bedroom with ensuite bath, plus two additional bedrooms and a full hall bathroom. The lower level adds versatility and comfort with a second living area, wood-burning stove, bedroom, bathroom, laundry with included washer & dryer, NEW FURNACE, and direct walk-out access to the oversized 2-car garage. Outside, enjoy a fully fenced backyard, mature trees, a front deck, and multiple spaces to relax, garden, grill, or play. All of this in one of Rockrimmon’s most desirable pockets—close to parks, schools, shopping, trails, and with quick access to I-25. A wonderful opportunity to own in Golden Hills.

Property Listed By

Picture of REALTOR Listing Property
  • Julia Gillis
  • 5621-312-917  Call the Agent 
Picture of Office Listing Property
  • Pikes Peak Dream Homes Realty
  • 0091-482-917  Call the Agent 
I believe that you deserve an agent who is not only highly involved in every aspect of the buying or selling process, but who also has a high quality professional network to help you navigate all aspects of the process. You can count on me to be available and communicate regularly. I have the skills of utilizing creative marketing and of being an expert negotiator. I know the local market and how changes will impact you and most importantly I operate my business with integrity. As an added benef...

Property Details

    General Features

  • Property: Single Family, Bi-level
  • Year Built: 1974
  • List Price: $490,000
  • County: El Paso
  • School District: Academy-20

    Rooms

  • Bedrooms: 4
  • Baths: 1 full bath; 2 3/4 bath;
  • Laundry: Lower

    Structure

  • Foundation: Garden Level, Walk Out
  • Heating: Forced Air, Natural Gas
  • Garage/Parking #: 2 vehicle(s), Attached
  • Total SqFt: 2,210
  • Finished SqFt: 2,210
  • Construction Status: Existing Home
  • Siding: Brick, Wood
  • Structure: Frame

    Features

  • Appliances: Dishwasher, Dryer, Gas in Kitchen, Microwave Oven, Range, Refrigerator, Washer
  • Fireplace: Lower Level, Wood Burning Stove
  • Additional Items: ***NEW FURNACE***
  • Laundry: Lower

    Taxes, Utilities, Lot

  • Tax: $1,952
  • Lot Size: 0.22 Acres, 9,500 SqFt
  • Lot Description: Corner, Cul-de-sac
  • Existing Utilities: Electricity Connected, Natural Gas Connected
  • Existing Water: Municipal

    Community

  • Covenants: Yes
  • HOA Dues: $403
  • HOA Frequency: Annual
  • HOA Fee Includes: Management, Trash Removal

    Additional Information

  • Notices: Sold As Is

      Disclaimer
      The real estate listing information and related content displayed on this site is provided exclusively for consumers’ personal, non-commercial use and may not be used for any purpose other than to identify prospective properties consumers may be interested in purchasing.
      PPAR.com Website

      6365 Delmonico Drive, Colorado Springs, CO, 80919

      Image 1 of 20: Front of Structure

      Front of Structure

      Image 2 of 20: Front of Structure

      Front of Structure

      Image 3 of 20: Living Room

      Living Room

      Image 4 of 20: Dining Room

      Dining Room

      Image 5 of 20: Dining Room

      Dining Room

      Image 6 of 20: Kitchen

      Kitchen

      Image 7 of 20: Kitchen

      Kitchen

      Image 8 of 20: Upper Level Primary Bedroom- with ensuite bathroom

      Upper Level Primary Bedroom- with ensuite bathroom

      Image 9 of 20: Upper Level Primary Bedroom- with ensuite bathroom

      Upper Level Primary Bedroom- with ensuite bathroom

      Image 10 of 20: Master Bathroom

      Master Bathroom

      Image 11 of 20: Upper Level Bedroom 1

      Upper Level Bedroom 1

      Image 12 of 20: Upper Level Bedroom 2

      Upper Level Bedroom 2

      Image 13 of 20: Upper Level Full Bathroom

      Upper Level Full Bathroom

      Image 14 of 20: Lower Level Rec Room

      Lower Level Rec Room

      Image 15 of 20: Lower Level Rec Room

      Lower Level Rec Room

      Image 16 of 20: Lower Level Rec Room

      Lower Level Rec Room

      Image 17 of 20: Lower Level Bedroom

      Lower Level Bedroom

      Image 18 of 20: Yard

      Yard

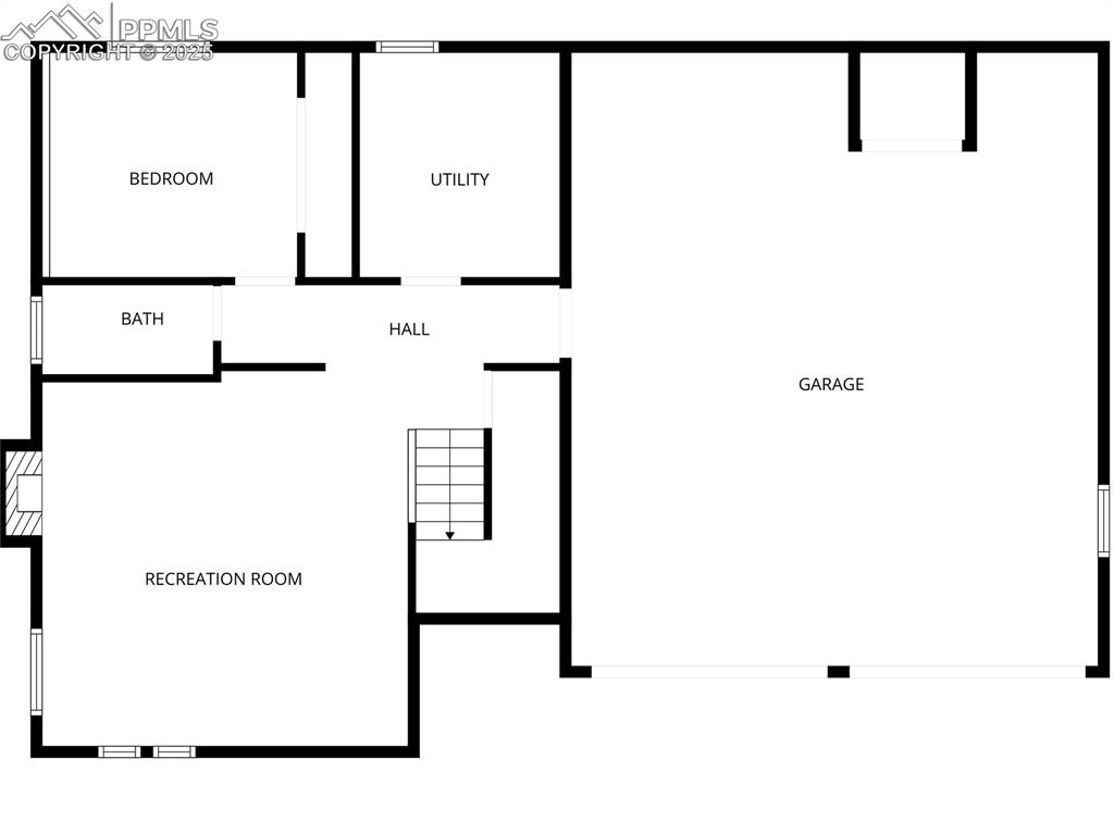
      Image 19 of 20: Floor Plan

      Floor Plan

      Image 20 of 20: Floor Plan

      Floor Plan

      Disclaimer: The real estate listing information and related content displayed on this site is provided exclusively for consumers’ personal, non-commercial use and may not be used for any purpose other than to identify prospective properties consumers may be interested in purchasing.