7973 Pinfeather Drive, Fountain, CO, 80817

Image Count: 46

$470,000

  • Highlights
  • Single Family
  • 3 bd | 3 ba | 2,336 sqft
  • 7973 Pinfeather Drive, Fountain, CO, 80817 listed by Melissa Romolton
  • Under Contract - Showing
  • MLS#: 2672687
  • Tour #1 | Tour #2
  • View on Map
Space maker

Property Description

Check out this lovely home nestled in a peaceful Fountain community, just minutes from Fort Carson, shopping, scenic trails, and schools. This home features a spacious 3-car tandem garage and sits on a premium lot that backs and sides to green space—offering unmatched privacy, serenity and mountain views. Step onto the expansive front porch and into a sun-drenched main level with soaring ceilings, gleaming hardwood floors, and a stylish dine-in kitchen equipped with recessed lighting and stainless-steel appliances. Upstairs, you'll find all three bedrooms, including a owner's suite with a spa-inspired 5-piece ensuite bath. The additional bedrooms are generously sized and connected by a convenient Jack & Jill bathroom. The lower level opens to a versatile second living area with french doors leading to an entertainer’s paradise: an oversized backyard with extended concrete patio and more of those breathtaking views of the Front Range. An unfinished basement awaits your vision—already pre-plumbed for a future bathroom and offering space for two additional bedrooms or a custom retreat. Don’t miss your chance to own this beautiful Colorado home. Schedule your showing today and experience the perfect blend of comfort, style, and location!

Property Listed By

Picture of REALTOR Listing Property
  • Melissa Romolton
  • 3935-487-529  Call the Agent 
Picture of Office Listing Property
  • HomeSmart
  • 1678-436-917  Call the Agent 

Property Details

    General Features

  • Property: Single Family, 3 Story
  • Year Built: 2013
  • List Price: $470,000
  • County: El Paso
  • School District: Widefield-3

    Rooms

  • Bedrooms: 3
  • Baths: 2 full bath; 1 1/2 bath;

    Structure

  • Foundation: Full Basement
  • Heating: Forced Air
  • Cooling: Ceiling Fan, Central Air
  • Garage/Parking #: 3 vehicle(s), Tandem
  • Total SqFt: 2,336
  • Finished SqFt: 1,752
  • Basement SqFt: 584
  • Construction Status: Existing Home
  • Structure: Frame

    Features

  • Appliances: Dishwasher, Disposal, Microwave Oven, Oven, Refrigerator

    Taxes, Utilities, Lot

  • Tax: $3,592
  • Lot Size: 0.18 Acres, 7,951 SqFt
  • Lot Description: Backs to Open Space, Corner, Mountain View
  • Existing Utilities: Electricity Connected
  • Existing Water: Municipal

    Community

  • Covenants: Yes

    Additional Information


      Disclaimer
      The real estate listing information and related content displayed on this site is provided exclusively for consumers’ personal, non-commercial use and may not be used for any purpose other than to identify prospective properties consumers may be interested in purchasing.
      PPAR.com Website

      7973 Pinfeather Drive, Fountain, CO, 80817

      Image 1 of 46: Front of Structure

      Front of Structure

      Image 2 of 46: Front of Structure

      Front of Structure

      Image 3 of 46: Front of Structure

      Front of Structure

      Image 4 of 46: Balcony

      Balcony

      Image 5 of 46: Living Room

      Living Room

      Image 6 of 46: Living Room

      Living Room

      Image 7 of 46: Living Room

      Living Room

      Image 8 of 46: Kitchen

      Kitchen

      Image 9 of 46: Kitchen

      Kitchen

      Image 10 of 46: Kitchen

      Kitchen

      Image 11 of 46: Dining Area

      Dining Area

      Image 12 of 46: Dining Area

      Dining Area

      Image 13 of 46: Living Room

      Living Room

      Image 14 of 46: Office

      Office

      Image 15 of 46: Bathroom

      Bathroom

      Image 16 of 46: Laundry

      Laundry

      Image 17 of 46: Other

      Other

      Image 18 of 46: Bedroom

      Bedroom

      Image 19 of 46: Bedroom

      Bedroom

      Image 20 of 46: Bathroom

      Bathroom

      Image 21 of 46: Bathroom

      Bathroom

      Image 22 of 46: Closet

      Closet

      Image 23 of 46: Bedroom

      Bedroom

      Image 24 of 46: Bedroom

      Bedroom

      Image 25 of 46: Bathroom

      Bathroom

      Image 26 of 46: Bedroom

      Bedroom

      Image 27 of 46: Bedroom

      Bedroom

      Image 28 of 46: Office

      Office

      Image 29 of 46: Exercise Room

      Exercise Room

      Image 30 of 46: Exercise Room

      Exercise Room

      Image 31 of 46: Office

      Office

      Image 32 of 46: Back of Structure

      Back of Structure

      Image 33 of 46: Back of Structure

      Back of Structure

      Image 34 of 46: Patio

      Patio

      Image 35 of 46: Patio

      Patio

      Image 36 of 46: Front of Structure

      Front of Structure

      Image 37 of 46: Front of Structure

      Front of Structure

      Image 38 of 46: Aerial View

      Aerial View

      Image 39 of 46: Back of Structure

      Back of Structure

      Image 40 of 46: Back of Structure

      Back of Structure

      Image 41 of 46: Back of Structure

      Back of Structure

      Image 42 of 46: Front of Structure

      Front of Structure

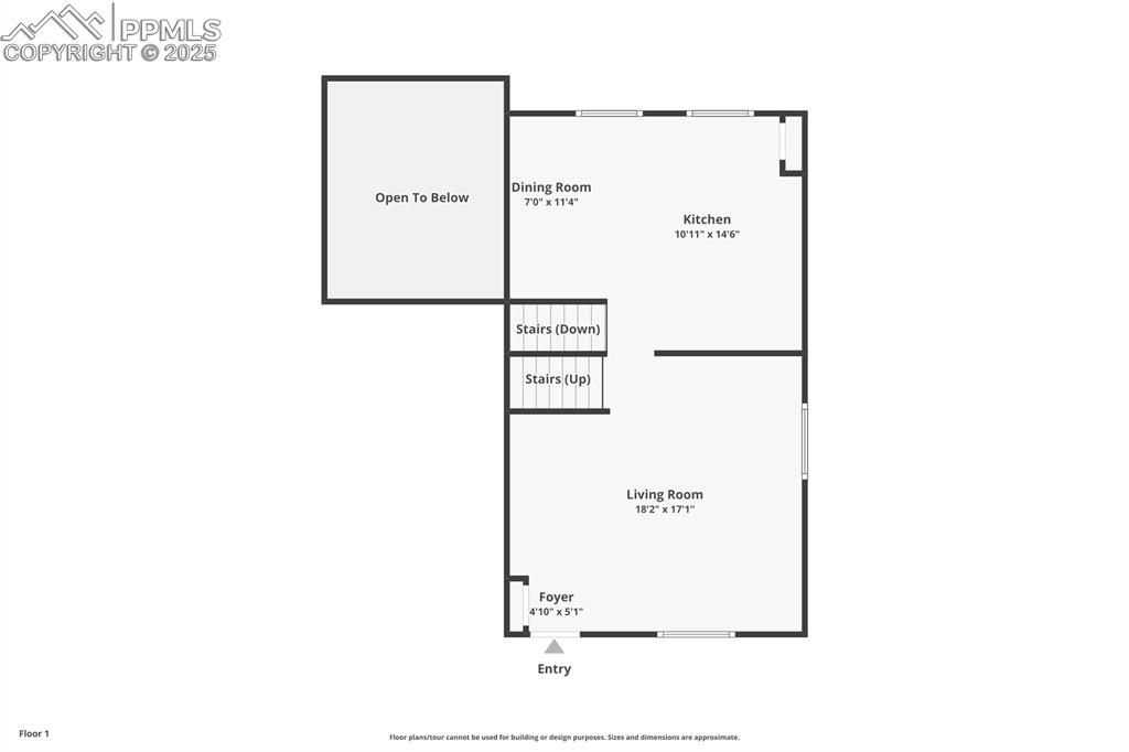
      Image 43 of 46: Floor Plan

      Floor Plan

      Image 44 of 46: Floor Plan

      Floor Plan

      Image 45 of 46: Floor Plan

      Floor Plan

      Image 46 of 46: Floor Plan

      Floor Plan

      Disclaimer: The real estate listing information and related content displayed on this site is provided exclusively for consumers’ personal, non-commercial use and may not be used for any purpose other than to identify prospective properties consumers may be interested in purchasing.