6417 Cabana Circle, Colorado Springs, CO, 80923

Image Count: 40

$562,500

  • Highlights
  • Single Family
  • 6 bd | 4 ba | 3,304 sqft
  • 6417 Cabana Circle, Colorado Springs, CO, 80923 listed by Michael Dale Bottenfield
  • Active
  • MLS#: 5214750
  • Tour #1
  • View on Map
Space maker

Property Description

You will be picking your jaw off the perfectly refinished hardwood floors as you walk into this renovated, stunning home! Six bedroom, four bath, three car attached garage with an open floor plan, massive vaulted ceilings and main level primary bedroom suite. Fresh paint, refinished cabinetry, brand new matching hardware fixtures and lighting, newer stainless steel appliances, granite countertops, brand new carpet with upgraded pad and meticulously refinished hardwood floors have this home looking gorgeous! But don't worry, this home doesn't just have the looks, after all, it's what's on the inside that really counts. Rheem furnace and air conditioner professionally installed last year and water heater is only two years old. Fenced backyard with artificial turf, storage shed and brand-new professionally installed, no maintenance Trex deck! Finished basement includes a walk-out entrance, 3/4 bath and two bedrooms, one of which has capped plumbing ready for an easy wet bar or kitchenette sink install. All of this glory in the desirable Ridgeview at Stetson Hills neighborhood with easy access to schools, parks and everything the Powers corridor has to offer. Come take a look and feel what true pride of ownership means!

Property Listed By

Picture of REALTOR Listing Property
  • Michael Dale Bottenfield
  • 8401-233-917  Call the Agent 
Picture of Office Listing Property
  • Manchester Properties, LLC
  • 3023-833-917  Call the Agent 

Property Details

    General Features

  • Property: Single Family, 2 Story
  • Year Built: 2005
  • List Price: $562,500
  • County: El Paso
  • School District: District 49

    Rooms

  • Master: Main Level, 16 x 14
  • Bedrooms: 6
  • Baths: 2 full bath; 1 1/2 bath; 1 3/4 bath;
  • Master Bathroom Amenities: 5-Pc Bath, Double Vanity, Free-standing Shower, Tub
  • Laundry: Electric Hook-up, Main

    Structure

  • Foundation: Walk Out
  • Heating: Forced Air, Natural Gas
  • Cooling: Ceiling Fan, Central Air
  • Garage/Parking #: 3 vehicle(s), Attached
  • Garage Amenities: Garage Door Opener
  • Patio Description: Composite
  • Total SqFt: 3,304
  • Finished SqFt: 3,240
  • Basement SqFt: 1,267
  • Basement % Fin: 95
  • Construction Status: Existing Home
  • Siding: Masonite Type
  • Structure: Frame

    Features

  • Appliances: 220v in Kitchen, Dishwasher, Disposal, Microwave Oven, Oven, Range, Refrigerator
  • Floors: Carpet, Vinyl/Linoleum, Wood
  • Fireplace: Gas, Main Level, One
  • Additional Items: Refrigerator, range/oven, dishwasher, mounted microwave.
  • Interior Features: 5-Pc Bath, 9Ft + Ceilings, French Doors, Vaulted Ceilings
  • Laundry: Electric Hook-up, Main

    Taxes, Utilities, Lot

  • Tax: $1,957
  • Lot Size: 0.16 Acres, 6,820 SqFt
  • Landscaped: All
  • Fence: Rear
  • Driveway: Concrete
  • Lot Location: Near Park, Near Schools
  • Lot Description: Sloping
  • Existing Utilities: Electricity Connected, Natural Gas Connected
  • Existing Water: Municipal

    Community

  • Covenants: Yes
  • HOA Dues: $55
  • HOA Frequency: Quarterly
  • HOA Fee Includes: Covenant Enforcement, Management
  • Commmunity Features: Hiking or Biking Trails, Parks or Open Space, Playground Area

    Additional Information


      Disclaimer
      The real estate listing information and related content displayed on this site is provided exclusively for consumers’ personal, non-commercial use and may not be used for any purpose other than to identify prospective properties consumers may be interested in purchasing.
      PPAR.com Website

      6417 Cabana Circle, Colorado Springs, CO, 80923

      Image 1 of 40: Front of Structure

      Front of Structure

      Image 2 of 40: Front of Structure

      Front of Structure

      Image 3 of 40: Front of Structure

      Front of Structure

      Image 4 of 40: Aerial View

      Aerial View

      Image 5 of 40: Aerial View

      Aerial View

      Image 6 of 40: Other

      Other

      Image 7 of 40: Other

      Other

      Image 8 of 40: Other

      Other

      Image 9 of 40: Dining Area

      Dining Area

      Image 10 of 40: Kitchen

      Kitchen

      Image 11 of 40: Kitchen

      Kitchen

      Image 12 of 40: Kitchen

      Kitchen

      Image 13 of 40: Living Room

      Living Room

      Image 14 of 40: Kitchen

      Kitchen

      Image 15 of 40: Bathroom

      Bathroom

      Image 16 of 40: Other

      Other

      Image 17 of 40: Bedroom

      Bedroom

      Image 18 of 40: Bathroom

      Bathroom

      Image 19 of 40: Other

      Other

      Image 20 of 40: Other

      Other

      Image 21 of 40: Other

      Other

      Image 22 of 40: Bedroom

      Bedroom

      Image 23 of 40: Bathroom

      Bathroom

      Image 24 of 40: Other

      Other

      Image 25 of 40: Bedroom

      Bedroom

      Image 26 of 40: Other

      Other

      Image 27 of 40: Bedroom

      Bedroom

      Image 28 of 40: Game Room

      Game Room

      Image 29 of 40: Game Room

      Game Room

      Image 30 of 40: Living Room

      Living Room

      Image 31 of 40: Bedroom

      Bedroom

      Image 32 of 40: Bedroom

      Bedroom

      Image 33 of 40: Bathroom

      Bathroom

      Image 34 of 40: Game Room

      Game Room

      Image 35 of 40: Deck

      Deck

      Image 36 of 40: Patio

      Patio

      Image 37 of 40: Yard

      Yard

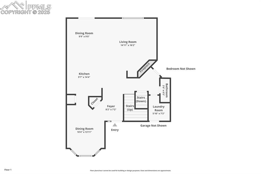
      Image 38 of 40: Floor Plan

      Floor Plan

      Image 39 of 40: Floor Plan

      Floor Plan

      Image 40 of 40: Floor Plan

      Floor Plan

      Disclaimer: The real estate listing information and related content displayed on this site is provided exclusively for consumers’ personal, non-commercial use and may not be used for any purpose other than to identify prospective properties consumers may be interested in purchasing.