6770 Dublin Terrace, Colorado Springs, CO, 80918

Image Count: 45

$430,000

  • Highlights
  • Single Family
  • 3 bd | 3 ba | 1,951 sqft
  • 6770 Dublin Terrace, Colorado Springs, CO, 80918 listed by Tanya Walter C2EX MRP RENE SRES
  • Active
  • MLS#: 9171984
  • View on Map
Space maker

Property Description

Welcome to 6770 Dublin Terrace, a beautifully cared-for bi-level family home tucked away on a peaceful cul-de-sac in the heart of Colorado Springs! With 3 bedrooms, 1 full bath, and 2 convenient half baths, this 1,951 sq. ft. gem perfectly balances comfort, style, and functionality — ideal for anyone who loves a spacious, inviting home in a great location and WITH POSSIBLE SELLER CONCESSIONS! Step inside to find a warm, open layout that flows effortlessly between levels. The main floor features a bright living area, cozy dining space, and a kitchen with direct walkout access to the wooden deck — perfect for morning coffee or sunset dinners overlooking the large fenced backyard with mountain views. The primary suite includes a private attached half bath, offering comfort and privacy. Downstairs, enjoy a welcoming family room with a fireplace, a perfect retreat for movie nights or gatherings. The lower-level walkout opens to a patio and backyard—a dream setup for kids, pets, or summer barbecues. The home also includes: central A/C, a two-car attached garage, and paid-off solar panels at closing, providing eco-friendly savings and peace of mind. Outside, the 0.23-acre lot offers space to play, garden, or entertain — all within a quiet cul-de-sac. Location-wise, you’ll love being situated between I25 and Powers for ease of access and near Cottonwood Creek Trail, Academy District 20 and District 11 schools, and a wide selection of restaurants, shops, and parks along the Powers Corridor. Whether you’re taking a weekend hike, dining out, or simply enjoying your deck under Colorado’s blue skies, 6770 Dublin Terrace delivers the best of both comfort and convenience. Move-in ready, energy-efficient, and perfectly positioned for family living — this is the one you’ve been waiting for!

Property Listed By

Picture of REALTOR Listing Property
  • Tanya Walter C2EX MRP RENE SRES
  • 7265-166-917  Call the Agent 
Picture of Office Listing Property
  • ERA Shields Real Estate
  • 0001-395-917  Call the Agent 

Property Details

    General Features

  • Property: Single Family, Bi-level
  • Year Built: 1979
  • List Price: $430,000
  • County: El Paso
  • School District: Academy-20

    Rooms

  • Master: Upper Level, 14 x 14
  • Bedrooms: 3
  • Baths: 1 full bath; 2 3/4 bath;
  • Master Bathroom Amenities: Free-standing Shower
  • Laundry: Basement

    Structure

  • Foundation: Slab
  • Heating: Forced Air
  • Cooling: Ceiling Fan, Central Air
  • Garage/Parking #: 2 vehicle(s), Attached
  • Garage Amenities: Garage Door Opener, Oversized, Workshop
  • Patio Description: Concrete, Wood Deck
  • Total SqFt: 1,951
  • Finished SqFt: 1,939
  • Construction Status: Existing Home
  • Siding: Brick, Wood
  • Structure: Frame

    Features

  • Appliances: Dishwasher, Dryer, Kitchen Vent Fan, Microwave Oven, Range, Refrigerator, Washer
  • Floors: Carpet, Vinyl/Linoleum, Wood Laminate
  • Entry: Vinyl/Linoleum
  • Fireplace: Basement, Gas
  • Laundry: Basement

    Taxes, Utilities, Lot

  • Tax: $1,616
  • Lot Size: 0.23 Acres, 10,192 SqFt
  • Street Description: City/Town Road, Driveway
  • Fence: Rear
  • Driveway: Concrete
  • Lot Location: Hiking Trail, Near Fire Station, Near Hospital, Near Park, Near Public Transit, Near Schools, Near Shopping Center
  • Lot Description: Cul-de-sac, Level, Mountain View
  • Existing Utilities: Cable Available, Electricity Available, Natural Gas Available, Solar
  • Existing Water: Municipal

    Community

    Additional Information


      Disclaimer
      The real estate listing information and related content displayed on this site is provided exclusively for consumers’ personal, non-commercial use and may not be used for any purpose other than to identify prospective properties consumers may be interested in purchasing.
      PPAR.com Website

      6770 Dublin Terrace, Colorado Springs, CO, 80918

      Image 1 of 45: Front of Structure

      Front of Structure

      Image 2 of 45: Aerial View

      Aerial View

      Image 3 of 45: Front of Structure

      Front of Structure

      Image 4 of 45: Living Room

      Living Room

      Image 5 of 45: Living Room

      Living Room

      Image 6 of 45: Living Room

      Living Room

      Image 7 of 45: Living Room

      Living Room

      Image 8 of 45: Dining Room

      Dining Room

      Image 9 of 45: Dining Area

      Dining Area

      Image 10 of 45: Deck

      Deck

      Image 11 of 45: Deck

      Deck

      Image 12 of 45: Kitchen

      Kitchen

      Image 13 of 45: Kitchen

      Kitchen

      Image 14 of 45: Kitchen

      Kitchen

      Image 15 of 45: Kitchen

      Kitchen

      Image 16 of 45: Master Bedroom

      Master Bedroom

      Image 17 of 45: Master Bedroom

      Master Bedroom

      Image 18 of 45: Master Bathroom

      Master Bathroom

      Image 19 of 45: Master Bedroom

      Master Bedroom

      Image 20 of 45: Bedroom

      Bedroom

      Image 21 of 45: Bedroom

      Bedroom

      Image 22 of 45: Bathroom

      Bathroom

      Image 23 of 45: Bedroom

      Bedroom

      Image 24 of 45: Bedroom

      Bedroom

      Image 25 of 45: Family Room

      Family Room

      Image 26 of 45: Family Room

      Family Room

      Image 27 of 45: Family Room

      Family Room

      Image 28 of 45: Patio

      Patio

      Image 29 of 45: Family Room

      Family Room

      Image 30 of 45: Bathroom

      Bathroom

      Image 31 of 45: Laundry

      Laundry

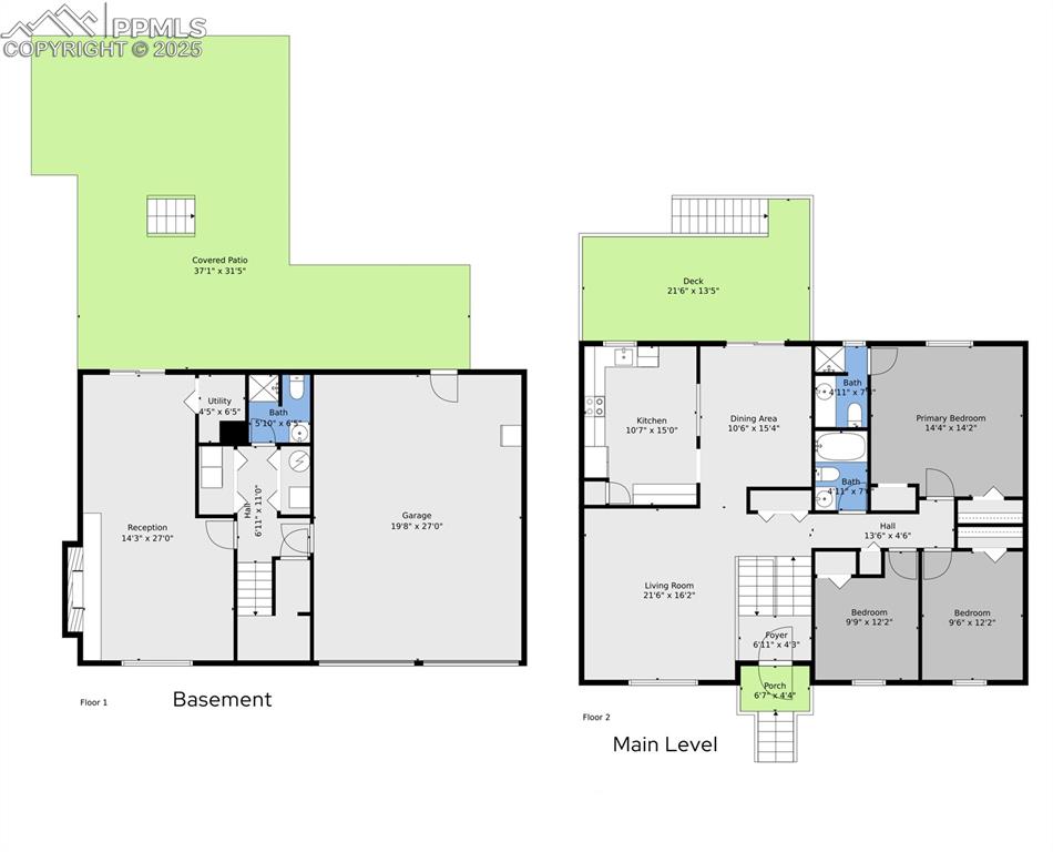
      Image 32 of 45: Floor Plan

      Floor Plan

      Image 33 of 45: Back of Structure

      Back of Structure

      Image 34 of 45: Aerial View

      Aerial View

      Image 35 of 45: Patio

      Patio

      Image 36 of 45: Yard

      Yard

      Image 37 of 45: Yard

      Yard

      Image 38 of 45: Yard

      Yard

      Image 39 of 45: Yard

      Yard

      Image 40 of 45: Front of Structure

      Front of Structure

      Image 41 of 45: Aerial View

      Aerial View

      Image 42 of 45: Aerial View

      Aerial View

      Image 43 of 45: Aerial View

      Aerial View

      Image 44 of 45: Aerial View

      Aerial View

      Image 45 of 45: Front of Structure

      Front of Structure

      Disclaimer: The real estate listing information and related content displayed on this site is provided exclusively for consumers’ personal, non-commercial use and may not be used for any purpose other than to identify prospective properties consumers may be interested in purchasing.